+11 fotó
Hirdetéskód: 8911988
Referenciaszám: M323678
Frissítve: 15 napja
Budapest X. kerület eladó ikerház 4+1 fél szobás: 134,9 millió Ft
134,9 millió Ft
1,11 millió Ft/m² *
* A m² árat a hirdető adta meg.
122 m²
463 m²
4+1 fél szoba
Leírás
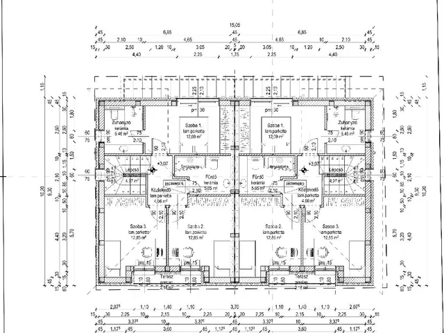
Eladó Kőbányán a 10. kerületben, új építésű ikerházban, egy 122 nm területű lakás tetőtéri beépítéssel. A 3 százalékos Otthon Start programnak megfelel! A két ikerházban összesen 4 lakás kerül kialakításra. A lakáshoz garázs is készül, kertkapcsolattal és terasszal. A lakás teljes mértékben családbarát kialakítású, ahogy az alaprajzokból is kitűnik. Az alsó szinten amerikai konyhás, tágas terű nappalival és étkezővel a család komfort érzetének megfelelően. A felső szinten 2 gyerekszoba és külön hálószoba a családi nyugalom érdekében. Az ikerházak az egyik legmodernebb hőszivattyús rendszerrel épülnek a gazdaságos energia ellátás céljából. A lakásban a beépített bútor külön megbeszélés kérdése. A nappaliban lesz fan-coil és az emeleten mennyezet hűtés-fűtés kerül kialakításra. Padlófűtés az egész lakásban lesz mindenhol. A garázs temperált fűtést kap, de a belső falon lesz 5 cm szigetelés. Szellőztető rendszer csak a garázs és az előszobában kerül kiépítésre, nem kap az ingatlan külön légtechnikát. A lakások között nem lesz közös fal. A kivitelező 2026. év végére tervezi befejezni az egész ingatlan projektet. Az ikerházak és a lakások a valóságban úgy fognak kinézni, mint a látványterveken. Jöjjön el és szeressen bele ebbe a családbarát ingatlanba! Az OTP Ingatlanpont teljes körű ügyintézéssel áll az eladók és a vevők rendelkezésére. A kínálatunkból választott ingatlan finanszírozásához kedvezményes hitelkonstrukciókat kínálunk. További információkért keressen bizalommal!
Tulajdonságok
Ikerház
2
Új építésű
2026
Nem adta meg a hirdető
Vedd fel a kapcsolatot a hirdetővel

Dr. Lukovszki János
Budapest II. kerület Ganz utca 5-7 - OTP Ingatlanpont Iroda
Az iroda összes hirdetése +36 30 464 0
Hitelkalkulátor
Második évtől
580 548 Ft A 13. hónaptól
7,99% 8,49%
Végig fix Futamidő: 20 év Banki visszahívás
Az OTP Bank munkatársai a neked megfelelő napszakban veszik fel veled a kapcsolatot. A becslés a hirdető által megadott adatokon alapul. A jelen tájékoztatás nem minősül ajánlattételnek és nem teljes körű, az egyes feltételek a hitelbírálat eredményétől függően változhatnak. Kérjük, a részletekről tájékozódj az OTP Bank fiókjaiban vagy az OTP Bank honlapján közzétett vonatkozó Üzletszabályzatokból és Hirdetményekből.
Vedd fel a kapcsolatot a hirdetővel

Dr. Lukovszki János
Budapest II. kerület Ganz utca 5-7 - OTP Ingatlanpont Iroda
Az iroda összes hirdetése +36 30 464 0
Vedd fel a kapcsolatot a hirdetővel

Dr. Lukovszki János
Budapest II. kerület Ganz utca 5-7 - OTP Ingatlanpont Iroda
Az iroda összes hirdetése +36 30 464 0
UI_KIT.CHARACTER_COUNTER__COMPONENT.ACTUAL_CHARACTER__SR_ONLY UI_KIT.CHARACTER_COUNTER__COMPONENT.MAXIMUM_CHARACTER__SR_ONLY
Hasonló eladó ingatlanok Kőbánya városrészben
Frissítve: 2 hónapja
1
125,9 millió Ft 839,3 ezer Ft/m²
Eladó családi ház, Budapest X. kerület, Kőbánya
Feltöltve: 7 hónapja
0
139,9 millió Ft 1,01 millió Ft/m²
Eladó családi ház, Budapest X. kerület, Kőbánya
Frissítve: 15 napja
14
134,9 millió Ft 1,11 millió Ft/m²
Eladó ikerház, Budapest X. kerület, Kőbánya


Fedezd fel a
hasonló házakat!Még további házak Budapest X. kerületben 134,9 M Ft körüli értékben
Tovább a hirdetésekhez Frissítve: 15 napja
14
134,9 millió Ft 1,11 millió Ft/m²
Eladó ikerház, Budapest X. kerület, Kőbánya

Frissítve: 15 napja
11
129,9 millió Ft 1,06 millió Ft/m²
Eladó ikerház, Budapest X. kerület, Kőbánya

Frissítve: 15 napja
20
134,9 millió Ft 1,22 millió Ft/m²
Eladó sorház, Budapest X. kerület, Kőbánya

