+9 fotó
Hirdetéskód: 8789355
Referenciaszám: HZ017893
Feltöltve: 3 napja
Budapest X. kerület eladó ikerház 4 szobás: 180 millió Ft
180 millió Ft
1 475 410 Ft/m²
122 m²
231 m²
4 szoba
Újhegy
Modern, kétszintes újépítésű ikerház!
Budapest X. kerület egyik legnyugodtabb területén, egy csendes mellékutcában, gyönyörű és minőségi családi otthon épül!
Az ingatlan a mai kor műszaki elvárásai szerint kerül felépítésre. Prémium minőségű gépészet és kiváló minőségű anyagok felhasználásával.
A telek adta lehetőségek a leg optimálisabban került kihasználásra, az ikerház felépítésére.
Belső terei megtervezésekor első számú szempont volt a XXI. századi modern kialakítás, a kényelmes és egyben praktikus tér elrendezés.
Az ingatlanhoz tartozik egy 231 m2-es kert, amely tökéletes egy nagyobb család számára is. A kert privát és nem látni be rá, megfelelő intimitást nyújt.
A csendes elhelyezkedés egyben egy remek infrastruktúrát jelent. A környéken minden megtalálható amire az embernek szüksége lehet, illetve a belváros is rendkívül gyorsan megközelíthető, autóval, és tömegközlekedéssel is.
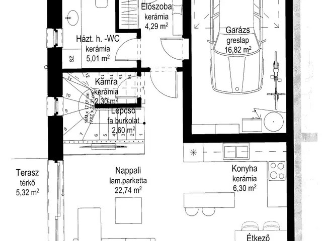
A ház helységei két szinten oszlanak meg, a hasznos alapterület 122 m2.
Az otthon szíve a, közel 33 m2-es amerikai konyhás nappali, ami terasz kapcsolatos, ezen a szinten még zuhanyzó+wc, háztartási helyiség kerül kialakításra.
Tartozik az ingatlanhoz egy fedett garázs is, ahova bőven be lehet parkolni egy nagyméretű autóval is, illetve a holmik tárolására is tökéletes.
A felső szinten további 3 db teljes értékű szoba várja új tulajdonosait, a lakók kényelmét még két db fürdőszoba szolgálja.
A vételár tartalmazza:
- beépített gépesített konyabútort,
- a teljes kertépítést,
- a beépített gardróbszekrényeket.
MŰSZAKI TARTALOM:
- Főfalak: 30 cm POROTHERM 30 N+F vázkerámia falazóblokk falazat ragasztva,
- Válaszfalak: 10 cm vtg. kerámia válaszfallapból, speciális ragasztóval,
- Koszorúk: monolit vasbeton szerkezet, külső oldalán 5 cm plusz kiegészítő hőszigeteléssel,
- Födém: monolit vasbeton födém készül, statikai méretezés szerint, emelet felett fa fedélszék ,
- Tető: hagyományos ácsszerkezetű magastető készül 25 fokos hajlásszöggel, dobozolt eresz kialakítással, Terrán Zenit Max Carbon szürke színben cserépfedéssel.
- Műanyag nyílászárók fenyő színben, 3 rétegű hőszigetelő üvegezéssel és több ponton
záródó biztonsági bejárati ajtóval.
- Burkolatok: hálószobákban laminált parketta melegburkolat, vizes helyiségeben kerámia-, és csempeburkolat készül. Kültéren a gépkocsi behajtó és járdák térkő burkolatúak.
- Homlokzati hőszigetelés expandált polisztirol hőszigetelő lemez 15 cm vtg-ban
- Lábazati hőszigetelés extrudált polisztirol hőszigetelő lemez 12 cm vtg-ban
- Koszorú külső hőszigetelés expandált polisztirol hőszigetelő lemez 5 cm vtg-ban
- Hőszigetelés padlóban expandált polisztirol hőszigetelő lemez 10 cm vtg-ban
- Födém feletti hőszigetelés EPS hőszigetelés, 20 cm vtg-ban,
- hőszivattyús fűtés, mennyezeti fűtés, hútés.
EXTRÁK:
- OKOS RENDSZER,
- elektromos redőnyök,
- kamera és riasztó rendszer kiépítés,
- videó kaputelefon,
- elektromos kapu,
- öntöző rendszer,
- elektromos autótöltő kiépítés,
- Wpc kerítés,
- 3 rétegű üvegek,
- rejtett világítások,
- udvar világítások,
- légtechnika.
Teljes átláthatóság az építkezés során – digitálisan, kényelmesen, biztonságosan!
Az építkezés nálunk nem csak szakmai precizitásról szól, hanem valódi átláthatóságról is. A PlanRadar digitális projektkövető rendszerének köszönhetően Ön, mint leendő tulajdonos:
• Valós időben nyomon követheti az építkezés minden lépését – akár mobilról is.
• Kéthetente részletes jelentést kap az aktuális állapotról, fotókkal, dokumentumokkal.
• A projekt végén digitálisan megkapja az összes hivatalos dokumentumot, beleértve a garanciákat, tervrajzokat, átadási jegyzőkönyveket – mindezt egyetlen, biztonságos platformon.
FINANSZÍROZÁS: Hitelre megvásárolható, vevőink részére díjmentes hitel közvetítés, minden magyarországi bankból. Állami támogatások felvehetőek rá!
Átadás: 2026. III. NEGYEDÉV
Ne hagyja ki ezt a páratlan lehetőséget! Egy ilyen prémium ingatlan ritkán kerül piacra, és most Ön előtt áll a lehetőség, hogy a város egyik legvonzóbb helyén éljen. Tökéletes választás a modern, kényelmes és biztonságos életstílust keresők számára!
Várom megtisztelő hívását a hét minden napján!
Tulajdonságok
Ikerház
2
Új építésű
Hőszivattyú
2026
Nem adta meg a hirdető
Nincs
Vedd fel a kapcsolatot a hirdetővel
+36 1 690 02
Hitelkalkulátor
Második évtől
774 638 Ft A 13. hónaptól
7,99% 8,49%
Végig fix Futamidő: 20 év Banki visszahívás
Az OTP Bank munkatársai a neked megfelelő napszakban veszik fel veled a kapcsolatot. A becslés a hirdető által megadott adatokon alapul. A jelen tájékoztatás nem minősül ajánlattételnek és nem teljes körű, az egyes feltételek a hitelbírálat eredményétől függően változhatnak. Kérjük, a részletekről tájékozódj az OTP Bank fiókjaiban vagy az OTP Bank honlapján közzétett vonatkozó Üzletszabályzatokból és Hirdetményekből.
Vedd fel a kapcsolatot a hirdetővel
+36 1 690 02
Vedd fel a kapcsolatot a hirdetővel
+36 1 690 02
UI_KIT.CHARACTER_COUNTER__COMPONENT.REMAINING_SPACE__SR_ONLYUI_KIT.CHARACTER_COUNTER__COMPONENT.MAXIMUM_CHARACTER__SR_ONLY
Hasonló eladó ingatlanok Újhegy városrészben
Feltöltve: ma
12
180 M Ft 1 475 410 Ft/m²
Eladó családi ház, Budapest X. kerület, Újhegy

Feltöltve: ma
12
180 M Ft 1 475 410 Ft/m²
Eladó családi ház, Budapest X. kerület, Újhegy

Frissítve: 8 napja
5
179 M Ft 1 376 923 Ft/m²
Eladó ikerház, Budapest X. kerület, Felsőrákos

Fedezd fel a
hasonló házakat!Még további házak Budapest X. kerületben 180 M Ft körüli értékben
Tovább a hirdetésekhez Frissítve: 24 napja
20
170 M Ft 971 429 Ft/m²
Eladó családi ház, Budapest X. kerület

Frissítve: ma
20
170 M Ft 971 429 Ft/m²
Eladó családi ház, Budapest X. kerület

Frissítve: ma
20
170 M Ft 971 429 Ft/m²
Eladó családi ház, Budapest X. kerület


Töltsd fel hirdetésed ingyenesen!
Egyszerű