+10 fotó
Hirdetéskód: 8777157
Referenciaszám: 389333
Feltöltve: 1 napja
Budapest XV. kerület eladó ikerház 5 szobás: 130 millió Ft
130 millió Ft
1 000 000 Ft/m²
130 m²
720 m²
5 szoba
Eladó ikerház Budapest, XV. kerület, 130nm, 130.000.000Ft - Árvavár utca
KIVÉTELES ADOTTSÁGÚ IKERHÁZ REFERENCIÁVAL RENDELKEZŐ BERUHÁZÓTÓL A KIÍRT ÁRON KULCSRAKÉSZEN!
XV. kerület hangulatos kertvárosában, tömegközlekedési eszközök, közintézmények és számos szolgáltatás gyűrűjében kínálok eladásra, egy kitűnő adottságú, 350 m2 -es telken elhelyezkedő, 2025-ös építésű, két szintes, dupla komfortos, magas műszaki tartalommal rendelkező ikerházat.
Pillanatnyilag a ház mindkét lakása elérhető, amik az utcáról, egymástól elszeparáltan megközelíthetőek.
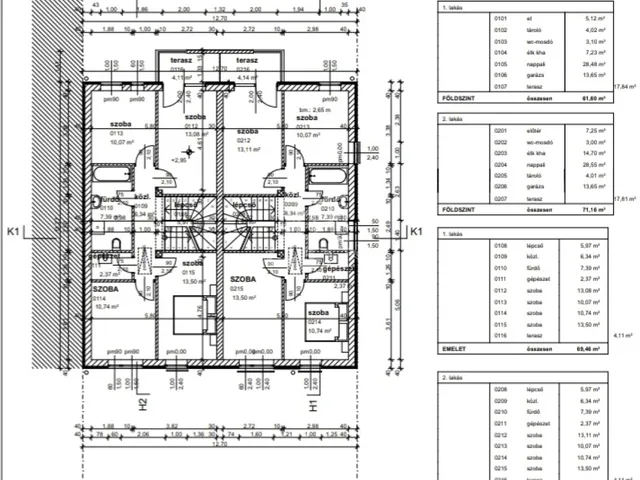
Az 1 lakás 130 m2 alapterülettel, a földszinten garázzsal,wc-vel ,amerikai konyhás-nappalival, az emeleten pedig 4 hálószobával + fürdőszobával került kialakításra.
A 2 lakás nagyobb kertkapcsolattal, 141 m2 alapterülettel, földszinten garázzsal,wc-vel ,amerikai konyhás-nappalival, az emeleten pedig 4 hálószobával + fürdőszobával került kialakításra.
A jelenlegi készültségi állapot lehető teszi, hogy a belső tartalom a vevő igényeihez legyen igazítva.
A tulajdonos a hideg és meleg burkolatokat 10 ezer, a szanitereket 400 ezer, a beltéri ajtókat 100 ezer forintos összeghatárig biztosítja, magasabb vevői igény a különbözet megfizetése után lehetséges.
Az ingatlan megtekinthető a hét bármely napján!
Várom a hívását, akár hétvégén is!
B.Cs. ...TOVÁBBI, TÖBBEZRES INGATLAN KÍNÁLAT: www.gdn-ingatlan.hu - GDN azonosító: 389333
Tulajdonságok
Ikerház
2
Új építésű
Gázkazán
2025
Nem adta meg a hirdető
Vedd fel a kapcsolatot a hirdetővel
+36 20 310 4
Hitelkalkulátor
Második évtől
559 461 Ft A 13. hónaptól
7,99% 8,49%
Végig fix Futamidő: 20 év Banki visszahívás
Az OTP Bank munkatársai a neked megfelelő napszakban veszik fel veled a kapcsolatot. A becslés a hirdető által megadott adatokon alapul. A jelen tájékoztatás nem minősül ajánlattételnek és nem teljes körű, az egyes feltételek a hitelbírálat eredményétől függően változhatnak. Kérjük, a részletekről tájékozódj az OTP Bank fiókjaiban vagy az OTP Bank honlapján közzétett vonatkozó Üzletszabályzatokból és Hirdetményekből.
Vedd fel a kapcsolatot a hirdetővel
+36 20 310 4
Vedd fel a kapcsolatot a hirdetővel
+36 20 310 4
UI_KIT.CHARACTER_COUNTER__COMPONENT.REMAINING_SPACE__SR_ONLYUI_KIT.CHARACTER_COUNTER__COMPONENT.MAXIMUM_CHARACTER__SR_ONLY
Hasonló eladó ingatlanok Budapest XV. kerületben
Frissítve: 28 napja
20
120 M Ft 857 143 Ft/m²
Eladó családi ház, Budapest XV. kerület

Frissítve: 15 napja
20
120 M Ft 857 143 Ft/m²
Eladó családi ház, Budapest XV. kerület

Frissítve: 15 napja
18
120 M Ft 705 882 Ft/m²
Eladó családi ház, Budapest XV. kerület


Fedezd fel a
hasonló házakat!Még további házak Budapest XV. kerületben 130 M Ft körüli értékben
Tovább a hirdetésekhez Frissítve: 16 napja
18
120 M Ft 705 882 Ft/m²
Eladó családi ház, Budapest XV. kerület

Frissítve: ma
18
120 M Ft 705 882 Ft/m²
Eladó családi ház, Budapest XV. kerület

Frissítve: ma
20
120 M Ft 857 143 Ft/m²
Eladó családi ház, Budapest XV. kerület


Töltsd fel hirdetésed ingyenesen!
Egyszerű
