

 +9 fotó 
Hirdetéskód: 8720625
Referenciaszám: U0048704
 Frissítve: ma 
Budapest XVIII. kerület eladó ikerház 5 szobás: 115 millió Ft
 115 millió Ft 
 1 045 455 Ft/m² 
 110 m²  
 266 m²  
 5 szoba 
Eladó a XVIII. kerület Belsőmajorban egy ikerház!
 
                             Eladó újépítésű  ikerház Budapest XVIII. kerületben a Nagykőrösi úton!
Az ingatlan egy hátsó telekrészen helyezkedik el, amit szorgalmi úton lehet megközlelíteni.
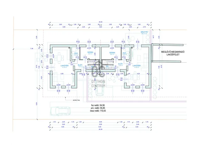
110 nm hasznos alapterületű, amerikai konyhás nappali, 4 hálós, 2 fürdőszoba-wc, kamra, terasz és saját kerttel rendelkezik, autónak udvari beálló!
A telek 266.64m2 a Telekhasználaton 3. lakás!
Műszaki tartalom (részlet)
- falazata 30-as Leier 10 cm-es grafitos szigeteléssel, lábazat 15 cm XPS szigetelés
- válaszfalak 10 cm-es Leier tégla
- födémen 20 cm-es kőzetgyapot szigeteléssel
- hőszivattyú padlófűtéssel
- 3 rétegű külső nyílászárók
A fűtése hőszivattyús, padlófűtés az egész házban
-választható vagy a nappaliban 3,5 kw-os klíma, vagy klíma kiállás kiépítése minden szobában!
-elektromos kapu,
-napelem előkészítés,
-komplett kamerarendszer riasztóval beépítve
Ami vételár részét képezi:
Meleg burkolat: 5000ft/m2 amely tartalmazza a filc alátétet és a szegélyt is.
Hideg burkolat: 5000ft/m2 amely tartalmazza a fugát és a burkolat váltókat is.
Belső tartozékok, szaniter árak:
-beltéri ajtó kilinccsel 80.000 Ft/db
-kád tartozékaival 80.000 Ft/db
-csap 20.000 Ft/db
-mosdó 20.000 Ft/db
-plusz víz csatorna kiállás kérésre 50.000 Ft/db
-villanykiállás fejegységenként 30.000 Ft/db
-Kerti csap ára kompletten szerelve: 100.000 Ft/db
szaniterek belső nyílászárók készültségi foktól függően választhatók.
Megbeszélés és egyeztetés alapján kérhetők plusz extrák és változtatások!
A lakás az összes jelenleg futó támogatásra jogosult!
Az ingatlan 30% önerővel lefoglalható!
Várható átadás 2026.II. negyedév!
Amiben segítünk :független Hitelszakértő, ügyvédi háttér!!
Hívjon a hét bármelyik napján további információért! 
                         
Tulajdonságok
Ikerház
Új építésű
Hőszivattyú
2025
Nem adta meg a hirdető
Vedd fel a kapcsolatot a hirdetővel
Arany fokozatú ingatlan értékesítő Tóthné Simon Emőke XVIII. kerület - Teleki utca  Az iroda összes hirdetése 
 +36 70 465 6 
Hitelkalkulátor
 Második évtől 
 494 908 Ft  A 13. hónaptól 
 7,99%  8,49% 
 Végig fix  Futamidő: 20 év Banki visszahívás
Az OTP Bank munkatársai a neked megfelelő napszakban veszik fel veled a kapcsolatot. A becslés a hirdető által megadott adatokon alapul. A jelen tájékoztatás nem minősül ajánlattételnek és nem teljes körű, az egyes feltételek a hitelbírálat eredményétől függően változhatnak. Kérjük, a részletekről tájékozódj az OTP Bank fiókjaiban vagy az OTP Bank honlapján közzétett vonatkozó Üzletszabályzatokból és Hirdetményekből. 
Vedd fel a kapcsolatot a hirdetővel
Arany fokozatú ingatlan értékesítő Tóthné Simon Emőke XVIII. kerület - Teleki utca  Az iroda összes hirdetése 
 +36 70 465 6 
Vedd fel a kapcsolatot a hirdetővel
Arany fokozatú ingatlan értékesítő Tóthné Simon Emőke XVIII. kerület - Teleki utca  Az iroda összes hirdetése 
 +36 70 465 6 
UI_KIT.CHARACTER_COUNTER__COMPONENT.REMAINING_SPACE__SR_ONLYUI_KIT.CHARACTER_COUNTER__COMPONENT.MAXIMUM_CHARACTER__SR_ONLY
Hasonló eladó ingatlanok Belsőmajor városrészben
 Feltöltve: 1 hónapja 

 11 
 115 M Ft  1 045 455 Ft/m² 
 Eladó családi ház, Budapest XVIII. kerület, Belsőmajor 

 Frissítve: 2 napja 

 9 
 120 M Ft  1 090 909 Ft/m² 
 Eladó ikerház, Budapest XVIII. kerület, Belsőmajor 

 Frissítve: ma 

 12 
 120 M Ft  1 090 909 Ft/m² 
 Eladó ikerház, Budapest XVIII. kerület, Belsőmajor 


Fedezd fel a 
hasonló házakat!Még további házak Budapest XVIII. kerületben 115 M Ft körüli értékben
 Tovább a hirdetésekhez  Feltöltve: 10 napja 

 1 
 121 M Ft  1 493 827 Ft/m² 
 Eladó családi ház, Budapest XVIII. kerület, Belsőmajor 
 Frissítve: ma 

 12 
 120 M Ft  1 090 909 Ft/m² 
 Eladó ikerház, Budapest XVIII. kerület, Belsőmajor 

 Frissítve: 7 napja 

 6 
 125 M Ft  726 745 Ft/m² 
 Eladó ikerház, Budapest XVIII. kerület, Ganzkertváros 


Töltsd fel hirdetésed ingyenesen!
Egyszerű 
