

+10 fotó
Hirdetéskód: 8750322
Referenciaszám: HZ030538-5063498
Feltöltve: 7 napja
Budapest XVIII. kerület eladó ikerház 5 szobás: 99,9 millió Ft
99,9 millió Ft
908 182 Ft/m²
110 m²
168 m²
5 szoba
Eladó ház, Budapest 18. ker.
18.kerület kedvelt részén Pestszentimrén
Belsőmajor városrészen modern környezetben eladó új építésű ikerház.
A kivitelező sok éves múlttal és rengeteg elégedett ügyféllel rendelkezik, referenciák akár itt a kerületben is megtekinthetőek.
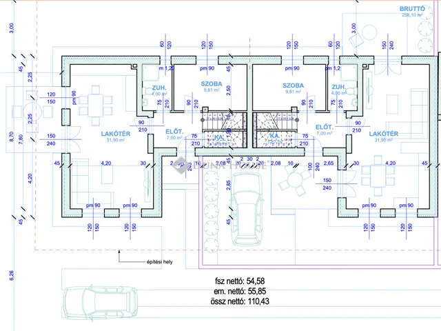
110,43 négyzetméter hasznos lakótérrel rendelkezik, mely egy 266,64 négyzetméteres telken fekszik. Nappali+4hálószobával rendelkezik, a szobák minimum 12 négyzetméteresek. A nappaliból egy 18négyzetméteres teraszon keresztül juthatunk ki a csodás saját privát kertünkbe.
Autóval az udvaron kialakított autóbeállóban lehet parkolni.
Műszaki adatok:
-30-as Prototherm tégla falazat
-15 cm-es homlokzati szigetelés
-29 cm-es szigetelés az aljzat felől
-35 cm-es szigetelés a födém felől
-3 rétegű műanyag nyílászárók
-a tető szerkezete fafödém cserépfedéssel
-elektromos kertikapu
-Hőszivattyús fűtés, padlófűtéssel
-1db hűtő-fűtő klíma
-riasztó
-térkövezett autóbeálló
-épített kerítés
Burkolatok/beltéri ajtók/szaniterek még választhatóak.
Hideg/meleg burkolatokat 5.000 Ft/m² értékhatárig van lehetőség választani, a szaniterekre, csaptelepekre és belső nyílászárókra szintén meghatározott keretösszegek állnak rendelkezésre: beltéri ajtó kilinccsel 80.000 Ft/db, kád tartozékaival 80.000 Ft-ig, csaptelep 20.000 Ft/db, mosdó 20.000 Ft/db értékig az ár részét képezik.
Átadás 2026. IV. negyedévében.
Közlekedést tekintve autóval a Gyorsforgalmi út, Üllői út, Gyömrői út az M0-ás, M5-ös és a 4-es út mind-mind maximum 5 perc alatt megközelíthető.
Tömegközlekedés 1 perc sétára, ahonnan a buszok Kőbánya Kispest vasútállomásig, illetve Határ úti metrómegálló, Ferihegyi vasútállomás, Gyáli vasútállomás is megközelíthető melyről a Keleti pályaudvarig közlekedhetünk. Séta távolságra: Gyógyszertár, Penny, Iskola, Óvoda, Posta
Kérdés esetén, hívjon a hét bármely napján
Tulajdonságok
Ikerház
Új építésű
Hőszivattyú
2025
B
Vedd fel a kapcsolatot a hirdetővel
+36 1 690 07
Hitelkalkulátor
Második évtől
429 924 Ft A 13. hónaptól
7,99% 8,49%
Végig fix Futamidő: 20 év Banki visszahívás
Az OTP Bank munkatársai a neked megfelelő napszakban veszik fel veled a kapcsolatot. A becslés a hirdető által megadott adatokon alapul. A jelen tájékoztatás nem minősül ajánlattételnek és nem teljes körű, az egyes feltételek a hitelbírálat eredményétől függően változhatnak. Kérjük, a részletekről tájékozódj az OTP Bank fiókjaiban vagy az OTP Bank honlapján közzétett vonatkozó Üzletszabályzatokból és Hirdetményekből.
Vedd fel a kapcsolatot a hirdetővel
+36 1 690 07
Vedd fel a kapcsolatot a hirdetővel
+36 1 690 07
UI_KIT.CHARACTER_COUNTER__COMPONENT.REMAINING_SPACE__SR_ONLYUI_KIT.CHARACTER_COUNTER__COMPONENT.MAXIMUM_CHARACTER__SR_ONLY
Hasonló eladó ingatlanok Budapest XVIII. kerületben
Frissítve: ma

20
94,9 M Ft 741 406 Ft/m²
Eladó családi ház, Budapest XVIII. kerület, Széchenyi István utca

Frissítve: 25 napja

20
100 M Ft 632 911 Ft/m²
Eladó ikerház, Budapest XVIII. kerület

Frissítve: ma

20
105 M Ft 583 333 Ft/m²
Eladó családi ház, Budapest XVIII. kerület


Fedezd fel a
hasonló házakat!Még további házak Budapest XVIII. kerületben 99,9 M Ft körüli értékben
Tovább a hirdetésekhez Frissítve: 13 napja

20
100 M Ft 632 911 Ft/m²
Eladó ikerház, Budapest XVIII. kerület

Frissítve: ma

20
94,9 M Ft 741 406 Ft/m²
Eladó családi ház, Budapest XVIII. kerület

Frissítve: 13 napja

20
100 M Ft 632 911 Ft/m²
Eladó ikerház, Budapest XVIII. kerület


Töltsd fel hirdetésed ingyenesen!
Egyszerű