+12 fotó
Hirdetéskód: 8974249
Referenciaszám: HZ083151-5204107
Frissítve: ma
Budapest XVIII. kerület eladó ikerház 4 szobás: 200 millió Ft
200 millió Ft
934,6 ezer Ft/m²
214 m²
200 m²
4 szoba
Eladó ház, Budapest 18. ker.
Prémium ikerház a Péterhalmi erdő szomszédságában – személyre szabható új otthonok a XVIII. kerületben!
Budapest XVIII. kerületének egyik legkeresettebb részén, a Péterhalmi erdő közvetlen közelében épül ez a modern, kétlakásos, háromszintes, A+ energetikai besorolású projekt. A bal és jobb oldali ikerfél esetében a 2026-os átadás lehetőséget biztosít a leendő tulajdonosoknak, hogy az ingatlan minden részletét saját ízlésükre formálják.
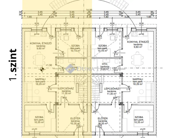
Főbb adatok
Összes alapterület: 214 m²
Pinceszint: 104 m²
1. szint: 75,5 m²
2. szint: 35 m²
Telekterület: kb. 200 m² / lakóegység
Elrendezés: háromszintes (plusz további beépíthető tetőtér!)
Energetika: A+ minősítés
Műszaki tartalom
Fűtés/Hűtés: hőszivattyús rendszer, padlófűtés mindhárom szinten, 3 db hűtő-fűtő klíma, H-tarifás villanyóra.
Szigetelés: 40 cm tetőszigetelés.
Szerkezet: 30 cm NF főfalak, betonfödém, Terrán cserépfedés.
Nyílászárók: 6 légkamrás műanyag ablakok 1.0 üvegezéssel, elektromos redőnyökkel.
Egyéb: elektromos garázskapu, Viacolor kocsibeálló és járda, elektromos kétszárnyú nagykapu, 3D táblás elválasztókerítés.
Miért különleges?
A pinceszint a mai új építésű házaktól eltérően komplett funkcionális szintként készül: teljes értékűen szigetelt, gépi vakolt falakkal, 10 cm-es lépésálló hőszigeteléssel és simított betonpadlóval. Nem csupán garázs, hanem hasznos élettér!
Alakítsa saját ízlésére!
Most még nem kell kompromisszumokat kötnie! A belső terek és burkolatok tekintetében az alábbi értékhatárokig választhat:
Hidegburkolat: 10.000 Ft/m²-ig
Laminált padló: 10.000 Ft/m²-ig
Falba épített WC szett: 150.000 Ft-ig
Zuhanyrendszer: 100.000 Ft-ig
Mosdószekrény: 100.000 Ft-ig
Környezet és közlekedés
A környék nyugodt, élhető, mégis kiváló infrastruktúrával rendelkezik.
Tömegközlekedés: 166, 182, 266, 282E, 950-es buszok és az 50-es villamos (gyors kapcsolat a 3-as metróhoz).
Autóval: könnyen elérhető az M0, az M5, a Gyömrői út és a repülőtér.
Várható átadás: 2026. 4. negyedév.
Megbízható kivitelező, referenciamunkákkal!
Szeretne többet megtudni a választható belsőépítészeti opciókról vagy a referenciamunkák megtekintéséről? Keressen bizalommal!
Érd: Szobolits Andrea +3630 399 6692
Referencia szám: HZ083151
Tulajdonságok
Ikerház
Új építésű
Hőszivattyú
2026
Nem adta meg a hirdető
Vedd fel a kapcsolatot a hirdetővel
+36 29 998 4
Hitelkalkulátor
Második évtől
860 705 Ft A 13. hónaptól
7,99% 8,49%
Végig fix Futamidő: 20 év Banki visszahívás
Az OTP Bank munkatársai a neked megfelelő napszakban veszik fel veled a kapcsolatot. A becslés a hirdető által megadott adatokon alapul. A jelen tájékoztatás nem minősül ajánlattételnek és nem teljes körű, az egyes feltételek a hitelbírálat eredményétől függően változhatnak. Kérjük, a részletekről tájékozódj az OTP Bank fiókjaiban vagy az OTP Bank honlapján közzétett vonatkozó Üzletszabályzatokból és Hirdetményekből.
Vedd fel a kapcsolatot a hirdetővel
+36 29 998 4
Vedd fel a kapcsolatot a hirdetővel
+36 29 998 4
UI_KIT.CHARACTER_COUNTER__COMPONENT.ACTUAL_CHARACTER__SR_ONLY UI_KIT.CHARACTER_COUNTER__COMPONENT.MAXIMUM_CHARACTER__SR_ONLY
Hasonló eladó ingatlanok Budapest XVIII. kerületben
Frissítve: 1 éve
19
215,84 millió Ft 710 ezer Ft/m²
Eladó családi ház, Budapest XVIII. kerület

Frissítve: 4 napja
20
194,5 millió Ft 659,3 ezer Ft/m²
Eladó családi ház, Budapest XVIII. kerület

Frissítve: 7 napja
19
209,6 millió Ft 689,5 ezer Ft/m²
Eladó családi ház, Budapest XVIII. kerület


Fedezd fel a
hasonló házakat!Még további házak Budapest XVIII. kerületben 200 M Ft körüli értékben
Tovább a hirdetésekhez Frissítve: 21 napja
20
199,9 millió Ft 392 ezer Ft/m²
Eladó családi ház, Budapest XVIII. kerület

Frissítve: 21 napja
20
199,9 millió Ft 392 ezer Ft/m²
Eladó családi ház, Budapest XVIII. kerület, Nyerges utca

Frissítve: 20 napja
21
209,6 millió Ft 689,5 ezer Ft/m²
Eladó családi ház, Budapest XVIII. kerület

