+12 fotó
Hirdetéskód: 8974446
Referenciaszám: HZ083151-5203948
Feltöltve: 5 napja
Budapest XVIII. kerület eladó ikerház 4 szobás: 200 millió Ft
200 millió Ft
934,6 ezer Ft/m²
214 m²
200 m²
4 szoba
Eladó ház, Budapest 18. ker.
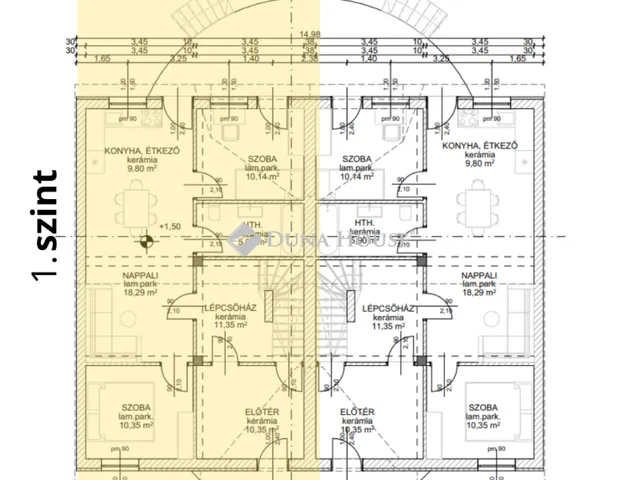
Budapest XVIII. kerületének egyik legkeresettebb részén a Péterhalmi erdő szomszédságában épül ez a kétlakásos, háromszintes, A+ energetikájú otthon, amelyből mindössze egy bal és egy jobb ikerfél készül. A 2026-os átadás miatt most még minden részlet személyre szabható.Ez az a pillanat, amikor még bele lehet nyúlni a burkolatokba, színekbe, kialakításokba később már nem.Főbb adatok:-214m2-es alapterületPinceszint: 104m21. szint: 75,5m22. szint: 35m2-Hozzá tartozó telekterület: Körülbelül 200m2Háromszintes elrendezés- Pinceszint (garázs + tárolók + gépészet),- 1.szint (nappali, konyha, étkező, szobák),- 2. szint (szoba, gardrób )Plusz további tetőtér még beépíthetőA+ energetika A műszaki leírás szerint:- 40 cm tetőszigetelés,- hőszivattyús fűtés,- padlófűtés mindhárom szinten,-3db hűtő-fűtő klíma- Htarifás villanyóraPrémium szerkezetek és anyagok- 30 cm nf főfalak,- betonfödém,- Terrán cserépfedés,- 6 légkamrás műanyag nyílászárók 1.0 üvegezéssel,- elektromos redőnyök,- elektromos garázskapuMiért különleges?A pince szint ami miatt ez az ingatlan eltér a mai újépítésű ikerházfelektől- teljes értékűen szigetelt,- gépi vakolt falakkal,- 10 cm lépésálló hőszigeteléssel,- simított betonpadlóval készül.nem csak egy garázs, hanem egy komplett funkcionális szintFürdők, konyha, belső terek még te döntesz- 100.000 Ft-ig választható zuhanyrendszer,- 100.000 Ft-ig választható mosdószekrény,- 150.000 Ft-ig választható falba épített WC szett,- 10.000 Ft/m²-ig választható hidegburkolat,- 10.000 Ft/m²-ig választható laminált padló.Ez azt jelenti, hogy most még te alakítod ki a saját ízlésed szerint, és nem kell kompromisszumot kötni egy készre burkolt házzal.Kert és környezet- viacolor kocsibeálló,- viacolor járda,- elektromos kétszárnyú nagykapu,- 3D táblás elválasztókerítésKörnyezet:A környék hangulata egyszerre nyugodt és élhető, mégis minden fontos szolgáltatás pár percen belül elérhető.A XVIII. kerületet érintő járatok között szerepel a 166, 182, 266, 282E és 950-es busz, valamint az 50-es villamos, amely gyors kapcsolatot ad a metróhoz is Autóval pedig a kerületből indulva könnyen elérhető:- az M0,- az M5,- a Gyömrői út,- a repülőtérVárható átadás: 2026. 4. negyedévMegbízható kivitelező referencia munkákkal!
Referencia szám: HZ083151
Tulajdonságok
Ikerház
Új építésű
Hőszivattyú
2026
C
Vedd fel a kapcsolatot a hirdetővel

+36 30 667 1
Hitelkalkulátor
Második évtől
860 705 Ft A 13. hónaptól
7,99% 8,49%
Végig fix Futamidő: 20 év Banki visszahívás
Az OTP Bank munkatársai a neked megfelelő napszakban veszik fel veled a kapcsolatot. A becslés a hirdető által megadott adatokon alapul. A jelen tájékoztatás nem minősül ajánlattételnek és nem teljes körű, az egyes feltételek a hitelbírálat eredményétől függően változhatnak. Kérjük, a részletekről tájékozódj az OTP Bank fiókjaiban vagy az OTP Bank honlapján közzétett vonatkozó Üzletszabályzatokból és Hirdetményekből.
Vedd fel a kapcsolatot a hirdetővel

+36 30 667 1
Vedd fel a kapcsolatot a hirdetővel

+36 30 667 1
UI_KIT.CHARACTER_COUNTER__COMPONENT.ACTUAL_CHARACTER__SR_ONLY UI_KIT.CHARACTER_COUNTER__COMPONENT.MAXIMUM_CHARACTER__SR_ONLY
Hasonló eladó ingatlanok Budapest XVIII. kerületben
Frissítve: 15 napja
21
209,6 millió Ft 689,5 ezer Ft/m²
Eladó családi ház, Budapest XVIII. kerület

Frissítve: ma
20
197,9 millió Ft 670,8 ezer Ft/m²
Eladó családi ház, Budapest XVIII. kerület

Frissítve: 1 napja
19
209,6 millió Ft 689,5 ezer Ft/m²
Eladó családi ház, Budapest XVIII. kerület


Fedezd fel a
hasonló házakat!Még további házak Budapest XVIII. kerületben 200 M Ft körüli értékben
Tovább a hirdetésekhez Frissítve: 15 napja
20
199,9 millió Ft 392 ezer Ft/m²
Eladó családi ház, Budapest XVIII. kerület, Nyerges utca

Frissítve: ma
20
197,9 millió Ft 670,8 ezer Ft/m²
Eladó családi ház, Budapest XVIII. kerület

Frissítve: 15 napja
20
199,9 millió Ft 392 ezer Ft/m²
Eladó családi ház, Budapest XVIII. kerület

