+12 fotó
Hirdetéskód: 8991029
Referenciaszám: HZ044131-5204607
Feltöltve: ma
Budapest XVIII. kerület eladó ikerház 4 szobás: 200 millió Ft
200 millió Ft
934,6 ezer Ft/m²
214 m²
200 m²
4 szoba
Eladó ház, Budapest 18. ker.
Budapest XVIII. kerületének egyik legkeresettebb részén, a Péterhalmi erdő szomszédságában épül ez a kétlakásos, háromszintes, A+ energetikájú otthon, amelyből mindössze egy bal és egy jobb ikerfél készül.
A 2026-os átadás miatt most még minden részlet személyre szabható.
Ez az a pillanat, amikor még bele lehet nyúlni a burkolatokba, színekbe, kialakításokba – később már nem.
---
## Főbb adatok:
– 214 m²-es alapterület
– pinceszint: 104 m²
– 1. szint: 75,5 m²
– 2. szint: 35 m²
– hozzá tartozó telekterület: kb. 200 m²
---
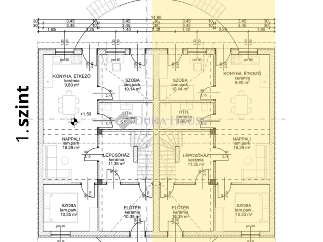
## Háromszintes elrendezés:
– pinceszint (garázs + tárolók + gépészet)
– 1. szint (nappali, konyha, étkező, szobák)
– 2. szint (szoba, gardrób)
– plusz további tetőtér még beépíthető
---
## A+ energetika
**Műszaki leírás szerint:**
– 40 cm tetőszigetelés
– hőszivattyús fűtés
– padlófűtés mindhárom szinten
– 3 db hűtő-fűtő klíma
– H-tarifás villanyóra
---
## Prémium szerkezetek és anyagok:
– 30 cm NF főfalak
– betonfödém
– Terrán cserépfedés
– 6 légkamrás műanyag nyílászárók 1.0 üvegezéssel
– elektromos redőnyök
– elektromos garázskapu
---
## Miért különleges?
A pinceszint az, ami miatt ez az ingatlan eltér a mai újépítésű ikerházaktól:
– teljes értékűen szigetelt
– gépi vakolt falakkal
– 10 cm lépésálló hőszigeteléssel
– simított betonpadlóval készül
Nem csak egy garázs, hanem egy komplett funkcionális szint.
---
## Fürdők, konyha, belső terek – még te döntesz:
– 100.000 Ft-ig választható zuhanyrendszer
– 100.000 Ft-ig választható mosdószekrény
– 150.000 Ft-ig választható falba épített WC szett
– 10.000 Ft/m²-ig választható hidegburkolat
– 10.000 Ft/m²-ig választható laminált padló
Ez azt jelenti, hogy most még saját ízlés szerint alakítható, kompromisszumok nélkül.
---
## Kert és környezet:
– viacolor kocsibeálló
– viacolor járda
– elektromos kétszárnyú nagykapu
– 3D táblás elválasztókerítés
---
## Környezet:
A környék hangulata egyszerre nyugodt és élhető, mégis minden fontos szolgáltatás pár percen belül elérhető.
A XVIII. kerületet érintő járatok:
– 166, 182, 266, 282E, 950-es busz
– 50-es villamos (gyors kapcsolat a metróhoz)
Autóval könnyen elérhető:
– M0
– M5
– Gyömrői út
– repülőtér
---
Várható átadás: 2026 IV. negyedév
Megbízható kivitelező, referenciamunkákkal!
Érdeklődni: Gerőcs Krisztina + 36204529828
E-mail : gerocs.krisztina@dh.hu
Referencia szám: HZ044131
Tulajdonságok
Ikerház
Új építésű
Hőszivattyú
2026
Nem adta meg a hirdető
Vedd fel a kapcsolatot a hirdetővel
+36 29 998 8
Hitelkalkulátor
Második évtől
860 705 Ft A 13. hónaptól
7,99% 8,49%
Végig fix Futamidő: 20 év Banki visszahívás
Az OTP Bank munkatársai a neked megfelelő napszakban veszik fel veled a kapcsolatot. A becslés a hirdető által megadott adatokon alapul. A jelen tájékoztatás nem minősül ajánlattételnek és nem teljes körű, az egyes feltételek a hitelbírálat eredményétől függően változhatnak. Kérjük, a részletekről tájékozódj az OTP Bank fiókjaiban vagy az OTP Bank honlapján közzétett vonatkozó Üzletszabályzatokból és Hirdetményekből.
Vedd fel a kapcsolatot a hirdetővel
+36 29 998 8
Vedd fel a kapcsolatot a hirdetővel
+36 29 998 8
UI_KIT.CHARACTER_COUNTER__COMPONENT.ACTUAL_CHARACTER__SR_ONLY UI_KIT.CHARACTER_COUNTER__COMPONENT.MAXIMUM_CHARACTER__SR_ONLY
Hasonló eladó ingatlanok Budapest XVIII. kerületben
Frissítve: ma
20
194,5 millió Ft 659,3 ezer Ft/m²
Eladó családi ház, Budapest XVIII. kerület

Frissítve: 9 napja
19
209,6 millió Ft 689,5 ezer Ft/m²
Eladó családi ház, Budapest XVIII. kerület

Frissítve: 1 napja
20
199,9 millió Ft 392 ezer Ft/m²
Eladó családi ház, Budapest XVIII. kerület, Nyerges utca


Fedezd fel a
hasonló házakat!Még további házak Budapest XVIII. kerületben 200 M Ft körüli értékben
Tovább a hirdetésekhez Frissítve: 23 napja
20
199,9 millió Ft 392 ezer Ft/m²
Eladó családi ház, Budapest XVIII. kerület

Frissítve: 23 napja
21
209,6 millió Ft 689,5 ezer Ft/m²
Eladó családi ház, Budapest XVIII. kerület

Frissítve: 1 éve
19
215,84 millió Ft 710 ezer Ft/m²
Eladó családi ház, Budapest XVIII. kerület

