Hirdetéskód: 8985651
Referenciaszám: 25547
Feltöltve: ma
Budapest XXI. kerület eladó ikerház 4 szobás: 129,9 millió Ft
129,9 millió Ft
1,31 millió Ft/m²
99 m²
948 m²
4 szoba
Leírás
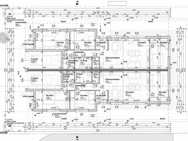
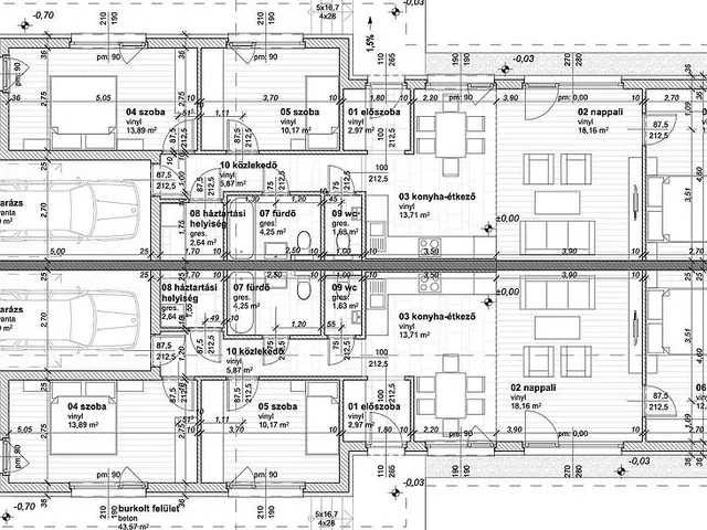
ELADÓ ÚJÉPÍTÉSŰ IKERHÁZ FÉL CSEPEL-KIRÁLYERDŐBEN
Csendes, közkedvelt és családbarát környezetben eladó egy modern, újépítésű, nappali + 3 hálószobás ikerház fél, garázzsal. Az ingatlan 25 cm-es Leier tégla falazattal épül, melyre 15 cm-es grafitos hőszigetelés kerül, biztosítva ezzel a kiváló energiahatékonyságot és alacsony rezsiköltségeket. A tetőt kakaóbarna Terrán cserép fedi, harmonizálva az épület modern megjelenésével. A műanyag külső nyílászárók (ajtók, ablakok, erkélyajtók) hőszigetelő, 3 rétegű üvegezésselvannak ellátva, tovább fokozva az energiahatékonyságot és a hangszigetelést.
A minőségi, több ponton záródó biztonsági bejárati ajtó garantálja otthona teljes védelmét. A belső falak kétszer glettelve és fehérre festve kerülnek átadásra, így azonnal készen állnak arra, hogy az Ön ízlése szerint rendezze be új otthonát. A fűtés- és melegvíz-ellátásról hőszivattyú, padlófűtéssel gondoskodik, kihasználva a költséghatékony H-tarifa előnyeit. A hálószobákban és a nappaliban klíma hűtés előkészítés biztosítja a komfortos hőmérsékletet a nyári hónapokban. A három szoba laminált parkettával, a fürdőszobák magas minőségű hidegburkolattal, a többi helyiség pedig vinyl padlóburkolattal lesz ellátva, igényes és modern megjelenést kölcsönözve az otthonnak.
Az ingatlan legkésőbbi átadása 2026. év vége.
A környék a családias hangulat mellett számos, a mindennapi élethez szükséges szolgáltatással várja a lakókat. Üzletek, gyógyszertárak és posta egyaránt könnyen elérhetők, akárcsak óvodák és iskolák. A szabadidős tevékenységekhez parkok, játszóterek, sportlétesítmények és a Királyerdei Művelődési Ház programjai kínálnak lehetőséget.
A közelben több buszmegálló is található, ahonnan számos buszjárat indul Csepel központjába, a Szent Imre térre, majd tovább a Boráros tér felé. Elérhetőek a 148-as, 152-es, 71-es és a 948-as éjszakai buszjáratok.
További kérdés esetén, keressen minket bizalommal!
Tulajdonságok
Ikerház
Új építésű
Hőszivattyú
2026
Nem adta meg a hirdető
Vedd fel a kapcsolatot a hirdetővel
+36 30 260 0
Hitelkalkulátor
Második évtől
559 030 Ft A 13. hónaptól
7,99% 8,49%
Végig fix Futamidő: 20 év Banki visszahívás
Az OTP Bank munkatársai a neked megfelelő napszakban veszik fel veled a kapcsolatot. A becslés a hirdető által megadott adatokon alapul. A jelen tájékoztatás nem minősül ajánlattételnek és nem teljes körű, az egyes feltételek a hitelbírálat eredményétől függően változhatnak. Kérjük, a részletekről tájékozódj az OTP Bank fiókjaiban vagy az OTP Bank honlapján közzétett vonatkozó Üzletszabályzatokból és Hirdetményekből.
Vedd fel a kapcsolatot a hirdetővel
+36 30 260 0
Vedd fel a kapcsolatot a hirdetővel
+36 30 260 0
UI_KIT.CHARACTER_COUNTER__COMPONENT.ACTUAL_CHARACTER__SR_ONLY UI_KIT.CHARACTER_COUNTER__COMPONENT.MAXIMUM_CHARACTER__SR_ONLY
Hasonló eladó ingatlanok Budapest XXI. kerületben
Frissítve: 13 napja
20
139 millió Ft 604,3 ezer Ft/m²
Eladó családi ház, Budapest XXI. kerület

Frissítve: ma
20
139 millió Ft 604,3 ezer Ft/m²
Eladó családi ház, Budapest XXI. kerület

Frissítve: ma
20
139 millió Ft 604,3 ezer Ft/m²
Eladó családi ház, Budapest XXI. kerület


Fedezd fel a
hasonló házakat!Még további házak Budapest XXI. kerületben 129,9 M Ft körüli értékben
Tovább a hirdetésekhez Frissítve: 4 napja
20
139 millió Ft 604,3 ezer Ft/m²
Eladó családi ház, Budapest XXI. kerület

Frissítve: 18 napja
20
139 millió Ft 604,3 ezer Ft/m²
Eladó családi ház, Budapest XXI. kerület

Frissítve: 18 napja
20
139 millió Ft 604,3 ezer Ft/m²
Eladó családi ház, Budapest XXI. kerület

