

+4 fotó
Hirdetéskód: 8721656
Referenciaszám: 387777
Frissítve: 2 napja
Budapest XXII. kerület eladó ikerház 3 szobás: 109 millió Ft
109 millió Ft
1 453 333 Ft/m²
75 m²
162 m²
3 szoba
Eladó ikerház Budapest, XXII. kerület, 75nm, 109.000.000Ft - Egyszintes ikerház mindkét fele!
EGYSZINTES ÚJ ÉPÍTÉSŰ IKERHÁZ DAIKIN ALTHERMA HŐSZIVATTYÚVAL!
XXII. kerületben, Nagytétény, CSENDES KERTVÁROSI környezetében, nettó 75 m2-es, nappali + 2 szobás (teraszos), MODERN, ÚJ ÉPÍTÉSŰ, IKERHÁZAT kínálunk eladásra!
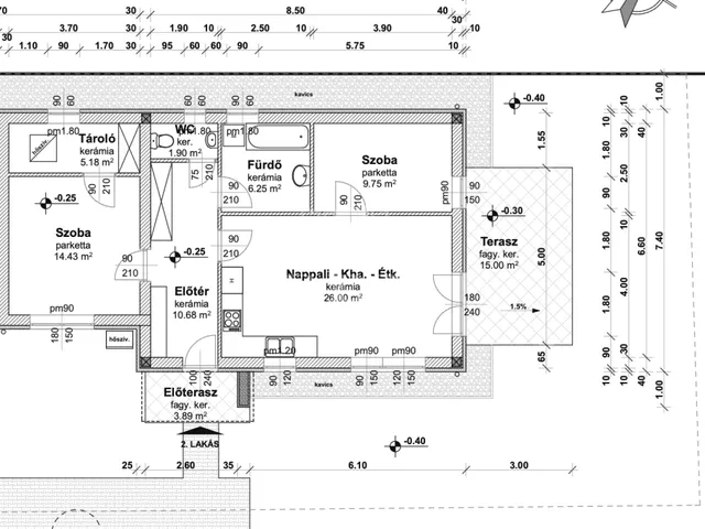
HELYISÉGEI FÖLDSZINTEN:
-előszoba(10,68m2), amerikai konyha nappali(26,33m2), 2 szoba(10,31m2, 14,43m2), fürdőszoba(6,25m2), WC(1,9m2), tároló(5,18m2), valamint 15 m2 és 3,89 m2-es terasz.
Az ingatlanhoz saját, kizárólagos használatú, lekerített TELEKRÉSZEK tartoznak.
Egy autóbeálló tartozik az ingatlanhoz, a kialakítását a vételár tartalmazza.
Az ingatlan telkén található egy fúrt kút.
Az épület: egyszintes (földszint)
Külső falazat: Leier 30 cm-es tégla, 10 cm-es Dryvit hőszigeteléssel.
Műanyag nyílászárok: FENSTHERM FUTURE vagy Kömmerling 5légkamrás, 76mm tokszélesség , 3rétegű üveg K=0,6 hőszigeteléssel.
Nagyon IGÉNYES KIVITELEZÉS, minőségi anyagok felhasználásával épül ( részletes Műszaki leírással és további anyagokkal rendelkezem.)
A fűtést és a melegvizet DAIKIN ALTHERMA HŐSZIVATTYÚ biztosítja padlófűtéssel kiépítve.
A vételár tartalmazza riasztó rendszer kiépítését, valamint kettő klíma kiállás kiépítését!
Külön mérőórák, szeparált telekrészek, különböző utcai bejáratok!
MÉRETEK, TÁJOLÁS, ELRENDEZÉS, AZ ALAPRAJZOKON.
( Belső átalakítás-kialakítás a Vevő igényei alapján megoldható )
KIVÁLÓ KÖZLEKEDÉSI LEHETŐSÉGEK, iskola, óvoda, bölcsőde, rendelő, Campona, Lidl, Aldi minden a közelben.
TERVEZETT ÁTADÁS: 2026. első negyedév!
A vételár NEM tartalmazza a hideg-meleg burkolatokat, redőny lamellákat, szúnyoghálókat, beltéri ajtókat, riasztóberendezést, csaptelepeket, klímaberendezést, szaniterek árait!
A munkadíj minden esetben benne van az árban.
Megtekinthető elkészült REFERENCIA munkák, CSOK PLUSZ, kedvezményes HITELEK FELVEHETŐK!
(Szükség esetén ingyenes hitelügyintézéssel)
Az ingatlan megtekintése előre egyeztetett időpontban lehetséges, akár hétvégén is. Bővebb információkkal kapcsolatban várom jelentkezését, keressen bizalommal a hét minden napján! ...TOVÁBBI, TÖBBEZRES INGATLAN KÍNÁLAT: www.gdn-ingatlan.hu - GDN azonosító: 387777
Tulajdonságok
Ikerház
1
Új építésű
Hőszivattyú
2025
19 m²
A+
Vedd fel a kapcsolatot a hirdetővel
+36 30 250 4
Hitelkalkulátor
Második évtől
469 086 Ft A 13. hónaptól
7,99% 8,49%
Végig fix Futamidő: 20 év Banki visszahívás
Az OTP Bank munkatársai a neked megfelelő napszakban veszik fel veled a kapcsolatot. A becslés a hirdető által megadott adatokon alapul. A jelen tájékoztatás nem minősül ajánlattételnek és nem teljes körű, az egyes feltételek a hitelbírálat eredményétől függően változhatnak. Kérjük, a részletekről tájékozódj az OTP Bank fiókjaiban vagy az OTP Bank honlapján közzétett vonatkozó Üzletszabályzatokból és Hirdetményekből.
Vedd fel a kapcsolatot a hirdetővel
+36 30 250 4
Vedd fel a kapcsolatot a hirdetővel
+36 30 250 4
UI_KIT.CHARACTER_COUNTER__COMPONENT.REMAINING_SPACE__SR_ONLYUI_KIT.CHARACTER_COUNTER__COMPONENT.MAXIMUM_CHARACTER__SR_ONLY
Hasonló eladó ingatlanok Nagytétény városrészben
Frissítve: ma

15
119 M Ft 1 144 231 Ft/m²
Eladó családi ház, Budapest XXII. kerület, Nagytétény

Frissítve: 5 napja

15
119 M Ft 1 144 231 Ft/m²
Eladó családi ház, Budapest XXII. kerület, Nagytétény

Frissítve: 3 napja

15
119 M Ft 1 144 231 Ft/m²
Eladó családi ház, Budapest XXII. kerület, Nagytétény


Fedezd fel a
hasonló házakat!Még további házak Budapest XXII. kerületben 109 M Ft körüli értékben
Tovább a hirdetésekhez Frissítve: 2 napja

14
119 M Ft 1 144 231 Ft/m²
Eladó családi ház, Budapest XXII. kerület, Nagytétény

Frissítve: 2 napja

15
119 M Ft 1 144 231 Ft/m²
Eladó családi ház, Budapest XXII. kerület, Nagytétény

Frissítve: ma

15
119 M Ft 1 144 231 Ft/m²
Eladó családi ház, Budapest XXII. kerület, Nagytétény


Töltsd fel hirdetésed ingyenesen!
Egyszerű