+7 fotó
Hirdetéskód: 8831343
Referenciaszám: 390874
Frissítve: 5 napja
Budapest XXII. kerület eladó ikerház 5 szobás: 168 millió Ft
168 millió Ft
1 292 308 Ft/m²
130 m²
500 m²
5 szoba
Eladó ikerház Budapest, XXII. kerület, 130nm, 168.000.000Ft - GARÁZZSAL ÉRINTKEZŐ ÚJ IKERHÁZ
XXII. kerület Óhegy csendes kertvárosias környezetében, összesen 1000 m2-es telken épülő 2 db(,"A" és "B" jelű)130 m2-es 5 szobás, fürdőszobás nagy teraszos, garázzsal rendelkező házak közül CSAK A "B" JELŰ HÁZAT KÍNÁLJUK MEGVÉTELRE !
AZ "A" jelű HÁZ ELADÁSRA KERÜLT !
Mindkét ház ALAPRAJZA, TELEK MÉRETE, KIVITELEZÉSE AZONOS !
A megvételre kínált:
"B" jelű ingatlan KULCSRAKÉSZ ÁRA: 168 millió Ft
Az ingatlanok saját 500 m2-es szeparált telek résszel, egyállásos garázzsal, térkövezett kocsibeállóval, külön mérőórákkal rendelkeznek.
A két lakás két épület tömbben helyezkedik el.
Az épületeket két garázs köti össze.
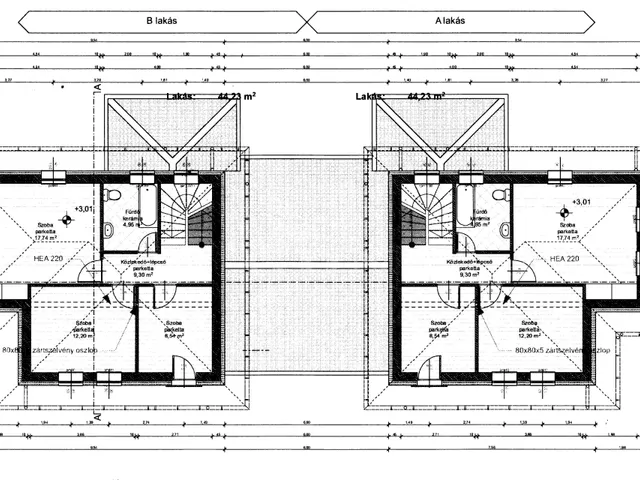
Helyiségei:
FÖLDSZINTEN: előszoba (5,7 m2), WC kézmosóval, nappali (31,25 m2), konyha-étkező (8,40 m2), vendégszoba (8 m2).
EMELETEN közlekedő(9,3 m2), fürdőszoba(5 m2), 3 hálószoba
(17,7 m2, 12,2 m2 és 8,5 m2 méretűek.)
A MÉRETEKET, ELRENDEZÉST LÁSD AZ ALAPRAJZOKON !
MŰSZAKI TARTALOM:
-Porotherm 30-as falazat,15 cm külső homlokzati szigetelés
-25 cm tetőszigetelés,12 cm lábazat xps szigetelés
-két szint között E gerendás vasbeton födém
-Leier beton cserép,csatorna rendszerrel
-3 rétegű üvegezéssel ellátott, műanyag nyílászárók
-elektromos alumínium redőnyök, szúnyoghálóval
-minden helyiségben padló fűtés, helyiségenként szabályozható
osztógyűrűvel
-Hőszivattyú 10 KWh
-Vízmelegítő hibrid 100 L
-Villamos energia :1x32 A, 1x25 A H tarifás villanyóra
-Hideg és meleg burkolatok 8000 Ft /m2, beltéri ajtók 80.000 Ft /db,
kád 100.000 Ft/db, szaniterek 30.000 Ft / db árig választhatók amit
tartalmaz az ingatlan vételára.
Átadás előtt, tereprendezésre kerül sor, építési törmelék elszállítása,
talaj kiegyenlítés.
TERVEZETT ÁTADÁS IDŐPONTJA : 2026. II. negyedév
A "B" jelű ingatlan eladási ára : 168 millió Ft
A HÁZAK ÖNÁLLÓ MÉRŐÓRÁKKAL, HASZNÁLATBAVÉTELI ENGEDÉLLYEL, TÁRSASHÁZ ALAPÍTÓ OKIRATTAL és H-TARIFÁS VILLANYÓRÁVAL kerülnek átadásra.
A környék lokációja jó, közelben iskola, óvoda, orvosi rendelő, bevásárlási lehetőség található.
Az ingatlan megtekintése előre egyeztetett időpontban lehetséges.
VÁROM HÍVÁSÁT, TOVÁBBI KÉRDÉSEIVEL kapcsolatosan JELENTKEZÉSÉT!
(G.I.) ...TOVÁBBI, TÖBBEZRES INGATLAN KÍNÁLAT: www.gdn-ingatlan.hu - GDN azonosító: 390874
Tulajdonságok
Ikerház
2
Új építésű
Hőszivattyú
2025
500 m²
Nem adta meg a hirdető
Vedd fel a kapcsolatot a hirdetővel
+36 30 268 2
Hitelkalkulátor
Második évtől
722 995 Ft A 13. hónaptól
7,99% 8,49%
Végig fix Futamidő: 20 év Banki visszahívás
Az OTP Bank munkatársai a neked megfelelő napszakban veszik fel veled a kapcsolatot. A becslés a hirdető által megadott adatokon alapul. A jelen tájékoztatás nem minősül ajánlattételnek és nem teljes körű, az egyes feltételek a hitelbírálat eredményétől függően változhatnak. Kérjük, a részletekről tájékozódj az OTP Bank fiókjaiban vagy az OTP Bank honlapján közzétett vonatkozó Üzletszabályzatokból és Hirdetményekből.
Vedd fel a kapcsolatot a hirdetővel
+36 30 268 2
Vedd fel a kapcsolatot a hirdetővel
+36 30 268 2
UI_KIT.CHARACTER_COUNTER__COMPONENT.ACTUAL_CHARACTER__SR_ONLY UI_KIT.CHARACTER_COUNTER__COMPONENT.MAXIMUM_CHARACTER__SR_ONLY
Hasonló eladó ingatlanok Budapest XXII. kerületben
Frissítve: 4 napja
6
165 M Ft 1 375 000 Ft/m²
Eladó családi ház, Budapest XXII. kerület

Frissítve: 1 napja
7
169 M Ft 1 408 333 Ft/m²
Eladó ikerház, Budapest XXII. kerület

Frissítve: ma
20
164 M Ft 1 261 538 Ft/m²
Eladó családi ház, Budapest XXII. kerület


Fedezd fel a
hasonló házakat!Még további házak Budapest XXII. kerületben 168 M Ft körüli értékben
Tovább a hirdetésekhez Frissítve: 1 hónapja
20
179,9 M Ft 1 240 690 Ft/m²
Eladó sorház, Budapest XXII. kerület

Frissítve: 22 napja
19
169,9 M Ft 1 179 861 Ft/m²
Eladó sorház, Budapest XXII. kerület

Feltöltve: 7 napja
13
175 M Ft 1 470 588 Ft/m²
Eladó ikerház, Budapest XXII. kerület

