

+8 fotó
Hirdetéskód: 8736326
Referenciaszám: 35022462
Feltöltve: 1 napja
Csörög eladó ikerház 4 szobás: 99,9 millió Ft
99,9 millió Ft
916 514 Ft/m²
109 m²
410 m²
4 szoba
Leírás
Kedves Érdeklődő!
Megvételre kínálok Csörögön a lakóparkban megépülő, ÚJ építésű ikerház lakásait!
Az ingatlan építése már elkezdődött, jövő év II. negyedévében várható az átadása.
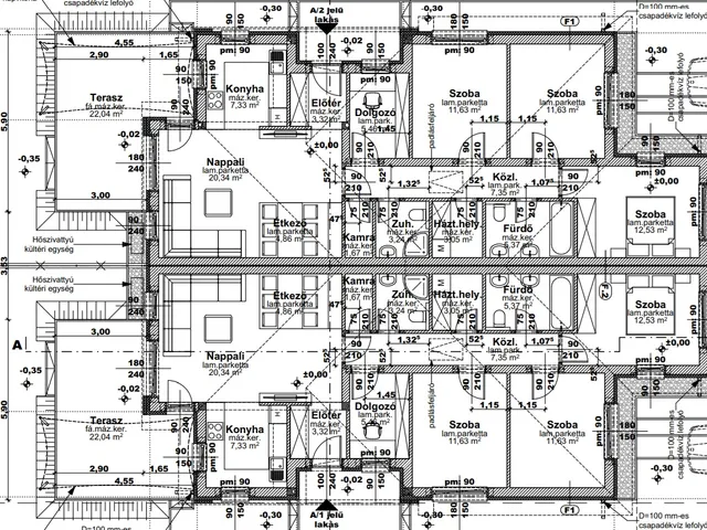
Az ingatlan nappali+3 szobás alaprajzzal épül meg, minden helyiség nagyméretű tágas, így akár nagyobb családok számára is ideális választás lehet!
A ház tégla építésű, tégla válaszfalakkal, betoncserép fedéssel épül meg. Korszerű energetikailag hatékony nyílászárók és a hőszigetelő rendszer mellett a fűtésről és a melegvízről hőszivattyú fog gondoskodni padlófűtéssel, így egy kedvező rezsivel fentartható modern otthon tulajdonosa lehet.
Az ingatlan kulcsrakész kivitelezéssel épül meg, választható beltéri ajtókkal, szaniterekkel, burkolatokkal és még sok egyébben. Várható energetikai besorolás A+ lesz.
Kerítések, járdák autóbeálló a vételárban benne vannak.
A házat régóta piacon lévő kivitelező cég építi, közelben több referencia is megtekinthető.
A ház természetesen hitelezhető, CSOK+, babaváró, 3%-os hitel igényelhető rá, ügyintézésben segítünk!
Ha szeretné az ingatlant megtekinteni, vagy kérdése lenne kérem keressen, akár hétvégén is.
Tulajdonságok
Ikerház
1
Új építésű
Hőszivattyú
2026
20 m²
Nem adta meg a hirdető
Vedd fel a kapcsolatot a hirdetővel
+36 20 249 0
Hitelkalkulátor
Második évtől
429 924 Ft A 13. hónaptól
7,99% 8,49%
Végig fix Futamidő: 20 év Banki visszahívás
Az OTP Bank munkatársai a neked megfelelő napszakban veszik fel veled a kapcsolatot. A becslés a hirdető által megadott adatokon alapul. A jelen tájékoztatás nem minősül ajánlattételnek és nem teljes körű, az egyes feltételek a hitelbírálat eredményétől függően változhatnak. Kérjük, a részletekről tájékozódj az OTP Bank fiókjaiban vagy az OTP Bank honlapján közzétett vonatkozó Üzletszabályzatokból és Hirdetményekből.
Vedd fel a kapcsolatot a hirdetővel
+36 20 249 0
Vedd fel a kapcsolatot a hirdetővel
+36 20 249 0
UI_KIT.CHARACTER_COUNTER__COMPONENT.REMAINING_SPACE__SR_ONLYUI_KIT.CHARACTER_COUNTER__COMPONENT.MAXIMUM_CHARACTER__SR_ONLY
Hasonló eladó ingatlanok Csörögön
Frissítve: 27 napja

3
90,9 M Ft 1 032 955 Ft/m²
Eladó ikerház, Csörög
Frissítve: 2 napja

3
90,9 M Ft 1 021 348 Ft/m²
Eladó ikerház, Csörög
Feltöltve: 22 napja

8
89,99 M Ft 908 990 Ft/m²
Eladó ikerház, Csörög

Fedezd fel a
hasonló házakat!Még további házak Pest megyében 99,9 M Ft körüli értékben
Tovább a hirdetésekhez Frissítve: 22 napja

7
91,99 M Ft 929 192 Ft/m²
Eladó ikerház, Csörög
Frissítve: 14 napja

7
90,9 M Ft 909 000 Ft/m²
Eladó ikerház, Csörög
Frissítve: 14 napja

9
99,9 M Ft 942 453 Ft/m²
Eladó ikerház, Csörög

Töltsd fel hirdetésed ingyenesen!
Egyszerű