+17 fotó
Hirdetéskód: 8848884
Referenciaszám: 391527
Frissítve: 4 napja
Diósd eladó ikerház 4 szobás: 134,9 millió Ft
134,9 millió Ft
1 087 903 Ft/m²
124 m²
386 m²
4 szoba
Eladó ikerház Diósd, 124nm, 134.900.000Ft - MODERN, ÚJ ÉPÍTÉSŰ IKERHÁZ DIÓSDON
DIÓSD Sashegyi részén, új építésű ingatlanok környezetben lévő, kettő db kétszintes, 124,6 m2 -es alapterülettel rendelkező (113,4 m2 hasznos), 3 szoba + nappali + 2 fürdőszobás ikerház, hőszivattyúval, GARÁZZSAL és terasszal készült ÚJ ÉPÍTÉSŰ IKERHÁZAT kínálunk megvételre.
Az ingatlan egy 758 m2-es telekre került megépítésre.
MINDKÉT LAKÓHÁZ ALAPRAJZA, KIVITELEZÉSE, MŰSZAKI TARTALMA AZONOS!
A lakóházak egymástól elkerítve, külön bejárattal kerültek kialakításra.
Az utcafronti, előkertes ikerházfél (1. számú lakóház) 372 m2-es telekrészen épült, elkerítve a hátsó féltől, garázzsal.
AZ 1. SZÁMÚ LAKÓHÁZ KULCSRAKÉSZ ÁRA : 134,9 millió Ft.
A hátsó ikerházfélhez ( 2.számú lakás) 386 m2-es telekrész tartozik, elkerített kertrésszel, külön bejárattal, garázzsal.
A lakóházakban lévő mindkét garázs térkövezett szolgalmi úton érhető el.
2. SZÁMÚ LAKÓHÁZ KULCSRAKÉSZ ÁRA: ELKELT!
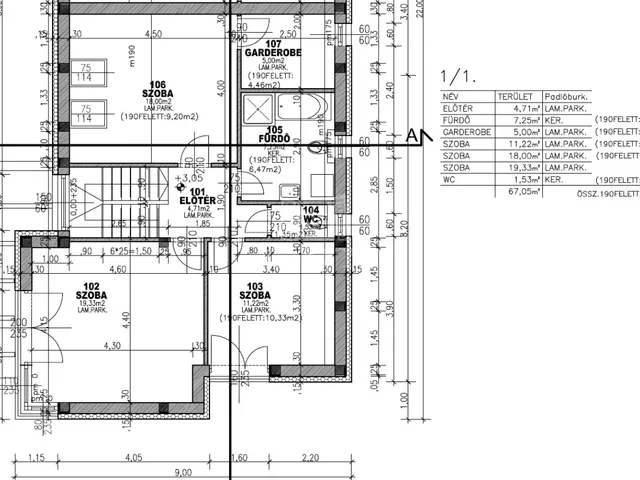
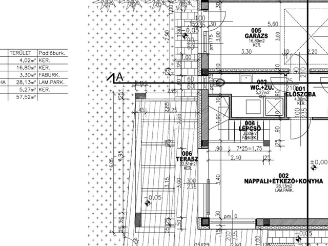
A tervezés szerint a lakóházak FÖLDSZINTJÉN :
előszoba 4 m2, nappali-étkező+ konyha 28 m2, zuhanyozó +WC (5,27 m2), emeletre vezető lépcsőtér 3,3 m2, garázs 17,4 m2, plusz egy 22,5 m2-es terasz került kialakításra.
EMELETEN:
közlekedő-lépcsőtér 9,4 m2, 3 szoba (19,33 m2, 11,22 m2, 9,20 m2), fürdőszoba (7,25 m2), WC (1,53 m2), gardrób (5 m2).
A HELYISÉGEK ELRENDEZÉSE AZ ALAPRAJZOKON LÁTHATÓ !
KÉPEK EGY RÉSZE berendezési és külső látványterv, amelyek a terek remek kihasználhatóságának, a színek, bútorok variálhatóságának bemutatására készültek.
MŰSZAKI TARTALOM:
- YTONG 30 cm-es falazat, 15 cm külső szigetelés
- válasz falak 10 cm-es ytong tégla
- monolit vasbeton födém
- a tető antracit Leier cserépfedést kapott
- három rétegű üvegezéssel, antracit színű műanyag külső nyílászárok
- elektromos antracit színű redőnyök, szúnyoghálóval
- minden helyiségben padlófűtés, helyiségenként szabályozható osztógyűjtővel
- 2 db inverteres fűtő-hűtő klíma
- fűtés hőszivattyúval
- vízmelegítő 100 l tartály, hőszivattyús
- elektromos garázsajtóval felszerelt fűtött garázs
- WPC kerítés
- térkövezett járdák
Hideg és meleg burkolatok 8000 Ft /m2, beltéri ajtók 80.000 Ft /db, kád 100.000 Ft/db, szaniterek 30.000 Ft / db árig választhatók amit tartalmaz az ingatlan vételára.
AZ IKERHÁZ TERVEZETT ÁTADÁSA: 2026 MÁRCIUS
A lakóházak, ÖNÁLLÓ MÉRŐÓRÁKKAL, HASZNÁLATBAVÉTELI ENGEDÉLLYEL, TÁRSASHÁZ ALAPÍTÓ OKIRATTAL, valamint H-TARIFÁS VILLANYÓRÁKKAL kerülnek átadásra.
Az ingatlan Sashegy alsó részén, csendes utcában található.
A környék infrastruktúrája jó, közelben bölcsőde, óvoda, orvosi rendelő, bevásárlási lehetőségek (INTERSPAR)
Könnyen elérhető az 7-es főút és az autópályák is M0,M1,M7.
Az ingatlanok HITELKÉPESEK !
További kérdéseivel, ÉRDEKLŐDÉSÉVEL VÁROM JELENTKEZÉSÉT!
FORDULJON HOZZÁM BIZALOMMAL !
(G.I.) ...TOVÁBBI, TÖBBEZRES INGATLAN KÍNÁLAT: www.gdn-ingatlan.hu - GDN azonosító: 391527
Tulajdonságok
Ikerház
2
Új építésű
Hőszivattyú
2025
22 m²
A+
Vedd fel a kapcsolatot a hirdetővel
+36 30 250 4
Hitelkalkulátor
Második évtől
580 548 Ft A 13. hónaptól
7,99% 8,49%
Végig fix Futamidő: 20 év Banki visszahívás
Az OTP Bank munkatársai a neked megfelelő napszakban veszik fel veled a kapcsolatot. A becslés a hirdető által megadott adatokon alapul. A jelen tájékoztatás nem minősül ajánlattételnek és nem teljes körű, az egyes feltételek a hitelbírálat eredményétől függően változhatnak. Kérjük, a részletekről tájékozódj az OTP Bank fiókjaiban vagy az OTP Bank honlapján közzétett vonatkozó Üzletszabályzatokból és Hirdetményekből.
Vedd fel a kapcsolatot a hirdetővel
+36 30 250 4
Vedd fel a kapcsolatot a hirdetővel
+36 30 250 4
UI_KIT.CHARACTER_COUNTER__COMPONENT.ACTUAL_CHARACTER__SR_ONLY UI_KIT.CHARACTER_COUNTER__COMPONENT.MAXIMUM_CHARACTER__SR_ONLY
Hasonló eladó ingatlanok Sashegy városrészben
Frissítve: 4 hónapja
1
122,6 M Ft 1 135 185 Ft/m²
Eladó ikerház, Diósd, Sashegy, Sashegyi u. 118
Frissítve: 1 hónapja
18
134,9 M Ft 1 193 805 Ft/m²
Eladó ikerház, Diósd, Sashegy
Frissítve: 10 hónapja
1
129,9 M Ft 659 391 Ft/m²
Eladó családi ház, Diósd, Sashegy

Fedezd fel a
hasonló házakat!Még további házak Diósdon 134,9 M Ft körüli értékben
Tovább a hirdetésekhez Frissítve: 1 hónapja
15
139,9 M Ft 1 238 053 Ft/m²
Eladó ikerház, Diósd, Sashegy
Frissítve: 9 napja
15
140 M Ft 777 778 Ft/m²
Eladó családi ház, Diósd
Frissítve: ma
11
122,6 M Ft 1 135 185 Ft/m²
Eladó ikerház, Diósd


