+2 fotó
Hirdetéskód: 8931793
Referenciaszám: HZ025290-5173153
Frissítve: 24 napja
Diósd eladó ikerház 5 szobás: 159,9 millió Ft
159,9 millió Ft
987 ezer Ft/m²
162 m²
642 m²
5 szoba
Eladó ház, Diósd
MAGAS MŰSZAKI TARTALOMMAL ÉPÜLŐ IKERHÁZ ELADÓ!
Csak garázzsal érintkeznek, lakótérrel nincs közös falazat, emeleten pedig egyáltalán nem érintkeznek!
Most Öné lehet kedvező m2 áron egy nettó összesen 194 m2-es 2 szintes ikerház. Diósd Égettvölgy részén épül. CSAK GARÁZZSAL ÉRINTKEZNEK.
Tágas, világos terek köszönhetően az egyedi jó méretű nyílászáróknak, család barát elosztással.
Nettó hasznos lakótér 131 m2 + 18,30 m2 garázs + 2 db terasz / 28,35 m2 + 16,35 m2 /
Hozzá tartozó telek mérete 642 m2.
Az ingatlant a 2025-ös év kedvezményes feltételeivel is megtudja vásárolni, az építkezés céges.
Foglalja le már most leendő otthonát 10%-al. Az építkezés szerkezetkész állapotnál tart így saját ízlése és igénye szerint választhatja ki a ház belső kinézetét illetve végig követheti az építkezést.
Amennyiben egyedi igényei lennének az elosztással kapcsolatban a kivitelező rugalmas a változtatásokra.
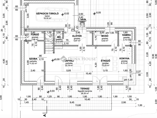
Elosztását tekintve:
Földszint:
- 1 állásos garázs
- előszoba
- külön mellékhelyiség
- háztartási helyiség
- 1 hálószoba saját fürdőszobával
- tágas és világos amerikai konyhás nappali terasz és kertkapcsolattal
Emelet:
- 3 egész méretű hálószoba
- fürdőszoba
- gardrób
- hangulatos, félig fedett 16,35 m2-es terasz
Műszaki adatok:
- 30-as Porotherm tégla falazat, 10 cm tégla válaszfalak
- 15 cm homlokzati szigetelés
- Födém szigetelés: 2x15cm vastag szálas kőzetgyapot szigetelés
- Hőszivattyú fűtés 230 literes indirect tárolóval
- Minden helyiségben padlófűtés
- Mennyezet hűtés
- Hővisszanyerős szellőztető rendszer
- Tetőn korcolt lemezfedés
- 3 rétegű 5 légkamrás nyílászárók egyedi antracit színben
- Riasztó, kamera, napelem előkészítés
- Szaniterek
- Hideg/meleg burkolatok ( 10 000 Ft/m2 meleg: 10 000 Ft/ m2 )
- Beltéri ajtók ( 100 000 Ft/db )
- 5 ponton záródó bejárati ajtó
Ezek mind kiemelkedő minőségben és az átlagnál magasabb áron választhatóak. Árlista tőlem kérhető.Az építkezés megtekintése után minden a házzal kapcsolatos dokumentáció rendelkezésre áll.
EXTRÁK:
- Ház homlokzatán díszkő burkolat
- Térkövezés
- Elektromos alumínium redőnyök
Környék rendezett, csendes, minden perceken belül elérhető autóval.
Várható átadás: 2026 Tavasz
További információkért hívjon bizalommal.
Irányár: 159900000 Ft
Érd.: Szabó-Lévai Annamária, +36 70 307 7503
Referencia szám: HZ025290-ZE
Tulajdonságok
Ikerház
Új építésű
Hőszivattyú
2025
Nem adta meg a hirdető
Vedd fel a kapcsolatot a hirdetővel

+36 1 690 17
Hitelkalkulátor
Második évtől
688 137 Ft A 13. hónaptól
7,99% 8,49%
Végig fix Futamidő: 20 év Banki visszahívás
Az OTP Bank munkatársai a neked megfelelő napszakban veszik fel veled a kapcsolatot. A becslés a hirdető által megadott adatokon alapul. A jelen tájékoztatás nem minősül ajánlattételnek és nem teljes körű, az egyes feltételek a hitelbírálat eredményétől függően változhatnak. Kérjük, a részletekről tájékozódj az OTP Bank fiókjaiban vagy az OTP Bank honlapján közzétett vonatkozó Üzletszabályzatokból és Hirdetményekből.
Vedd fel a kapcsolatot a hirdetővel

+36 1 690 17
Vedd fel a kapcsolatot a hirdetővel

+36 1 690 17
UI_KIT.CHARACTER_COUNTER__COMPONENT.ACTUAL_CHARACTER__SR_ONLY UI_KIT.CHARACTER_COUNTER__COMPONENT.MAXIMUM_CHARACTER__SR_ONLY
Hasonló eladó ingatlanok Diósdon
Frissítve: 9 hónapja
1
165 millió Ft 1 millió Ft/m²
Eladó családi ház, Diósd, Tisza utca
Frissítve: 4 hónapja
20
149,9 millió Ft 432 ezer Ft/m²
Eladó családi ház, Diósd
Frissítve: 24 napja
20
145 millió Ft 1,56 millió Ft/m²
Eladó ikerház, Diósd

Fedezd fel a
hasonló házakat!Még további házak Diósdon 159,9 M Ft körüli értékben
Tovább a hirdetésekhez Frissítve: 14 napja
20
169,9 millió Ft 707,9 ezer Ft/m²
Eladó családi ház, Diósd

Frissítve: 24 napja
5
159,9 millió Ft 987 ezer Ft/m²
Eladó ikerház, Diósd

Frissítve: 10 napja
5
169,9 millió Ft 1,05 millió Ft/m²
Eladó ikerház, Diósd

