Hirdetéskód: 8824402
Referenciaszám: 339_isz
Frissítve: 12 napja
Dömsöd eladó ikerház 2 szobás: 43 millió Ft
43 millió Ft
671 875 Ft/m²
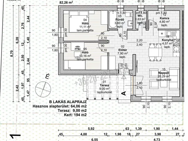
64 m²
194 m²
2 szoba
Leírás
Új építésű, modern ikerház Dömsödön – 64m² alapterület, 2 szoba, energiatakarékos fűtés!
Eladó egy új építésű, modern ikerház Dömsödön, kényelmes, átgondolt kialakítással és energiatakarékos megoldásokkal ! Az ingatlan egy kényelmes méretű telken helyezkedik el , rendezett környezetben, mégis kiváló közlekedési adottságokkal.
Tágas és praktikus elrendezés – 64 m² lakótér
- Nappali-konyha-étkező egy légtérben – világos, tágas tér a közös pillanatokhoz
- 2 külön nyíló, parkettázott szoba – minden családtagnak saját privát tér
- Modern fürdőszoba és külön vendégmosdó – a mindennapi kényelemért
- Előszoba, háztartási helyiség
- Kényelmes méretű terasz
Műszaki jellemzők és extrak
- Falazat: 30 cm-es Porotherm tégla, amely kiemelkedő hőszigetelést biztosít
- Szigetelés: 15 cm grafitos homlokzati, 20 cm födém és 10 cm aljzati hőszigetelés
- Nyílászárók: 3 rétegű üvegezésű, hő-és hangszigetelt műanyag ablakok
- Tetőfedés :Bramac beton cserép
- Fűtés: Hőszivattyús padlófűtés – környezetbarát és energiatakarékos megoldás
- Melegvíz-ellátás: szintén a hőszivattyúról
- Burkolatok: A szobákban melegburkolat- laminált parketta, a többi helyiségben elegáns kerámia járólap
194 m²-es telek – könnyen karbantartható kert
A telek ideális méretű , így könnyen kialakítható pihenőkert, játszótér vagy akár kerti sütögető . A kert éppen akkora, hogy élvezni lehessen, de ne jelentsen túl sok munkát!
Kiváló elhelyezkedés
- Nyugodt környezet, mégis közel mindenhez
- Kiváló közlekedés: autóval és tömegközlekedéssel is könnyen elérhető
- Iskola, óvoda, üzletek, orvosi rendelő, gyógyszertár pár percen belül
Ez az otthon tökéletes választás családoknak, akik egy modern, energiatakarékos és jól megtervezett házat keresnek !
Várható átadás: 2026. Június
További információért és megtekintésért hívjon bizalommal!
Tulajdonságok
Ikerház
1
Új építésű
Hőszivattyú
2026
9 m²
Nem adta meg a hirdető
Vedd fel a kapcsolatot a hirdetővel
+36 70 432 6
Hitelkalkulátor
Második évtől
185 052 Ft A 13. hónaptól
7,99% 8,49%
Végig fix Futamidő: 20 év Banki visszahívás
Az OTP Bank munkatársai a neked megfelelő napszakban veszik fel veled a kapcsolatot. A becslés a hirdető által megadott adatokon alapul. A jelen tájékoztatás nem minősül ajánlattételnek és nem teljes körű, az egyes feltételek a hitelbírálat eredményétől függően változhatnak. Kérjük, a részletekről tájékozódj az OTP Bank fiókjaiban vagy az OTP Bank honlapján közzétett vonatkozó Üzletszabályzatokból és Hirdetményekből.
Vedd fel a kapcsolatot a hirdetővel
+36 70 432 6
Vedd fel a kapcsolatot a hirdetővel
+36 70 432 6
UI_KIT.CHARACTER_COUNTER__COMPONENT.REMAINING_SPACE__SR_ONLYUI_KIT.CHARACTER_COUNTER__COMPONENT.MAXIMUM_CHARACTER__SR_ONLY
Hasonló eladó ingatlanok Dömsödön
Frissítve: 5 napja
16
43,9 M Ft 731 667 Ft/m²
Eladó családi ház, Dömsöd

Frissítve: 4 napja
18
45 M Ft 346 154 Ft/m²
Eladó családi ház, Dömsöd

Frissítve: 19 napja
9
45 M Ft 600 000 Ft/m²
Eladó családi ház, Dömsöd

Fedezd fel a
hasonló házakat!Még további házak Pest megyében 43 M Ft körüli értékben
Tovább a hirdetésekhez Feltöltve: 10 hónapja
1
45 M Ft 600 000 Ft/m²
Eladó családi ház, Dömsöd
Frissítve: 6 napja
19
38,9 M Ft 464 201 Ft/m²
Eladó családi ház, Dömsöd

Frissítve: 7 napja
19
38,9 M Ft 468 675 Ft/m²
Eladó családi ház, Dömsöd

