

+18 fotó
Hirdetéskód: 7650801
Referenciaszám: P4269-1-01-NA-001
Frissítve: 2 napja
Eladó 4 szobás ikerház 82,6 millió Ft értékben Egerben - Modern lakópark kertvárosi környezetben lakóparkban
82,6 millió Ft
737 500 Ft/m²
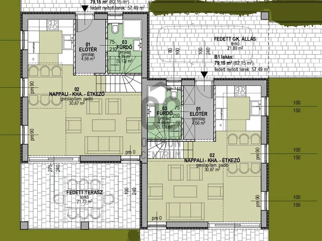
112 m²
1100 m²
4 szoba
Modern lakópark kertvárosi környezetben
Igényes, modern tervezésű tárasházi lakások foglalhatóak Egerben, Felnémeten. Az első társasház építése 2023. április 10-én kezdődik és 2023. október 31-én lesz átvehető. Míg a másik építése 2023. szeptember 1-én kezdődik és 2024. március 31-én vehetik birtokba az új tulajdonosok.
A falak 30-as Wienerberger téglából épülnek, majd 10 cm-es szigetelést kapnak. A fűtésről hőszivattyú-rendszer gondoskodik, valamint egy-egy hűtő-fűtő inverteres klímát is tartalmaz az ár szintenként.
Hideg-, meleg-burkolatok: elszámolás alapja a bolti kiskereskedelmi bruttó listaár, melynek összegét a folyamatos áremelkedések okán az adásvétel napján kerül aktualizálásra. Az előtér, konyha, étkező és nappali rész valamint a fürdőszoba kerámia burkolatot kap, míg a szobák laminált parkettával lesznek burkolva.
Főbejárati- és ikerházankénti garázskapu: Hörmann típusú automatikával és motorral, a kerítés stílusában, lakatos szerkezetből , motoros mozgatású, 1db távirányító lakásonként. További távirányítók igény szerint vásárolható ráhangolással 11.000.- Ft/db áron.
Az épület 3 rétegű, magas minőségű nyílászárókat kap.
Mindegyik lakáshoz tartozik terasz valamint loggia. Továbbá kötelezően vásárolandó nyitott autóbeálló térkő aljzattal ellátva. Az épületeket térköves járda veszi körül.
Projekt bemutatása
Igényes, modern tervezésű tárasházi lakások foglalhatók Egerben, Felnémeten. Az első társasház építése 2023. április 10-én kezdődik és 2023. október 31-én lesz átvehető. Míg a másik építése 2023. szeptember 1-én kezdődik és 2024. március 31-én vehetik birtokba az új tulajdonosok.
A falak 30-as Wienerberger téglából épülnek, majd 10 cm-es szigetelést kapnak. A fűtésről hőszivattyú-rendszer gondoskodik, valamint egy-egy hűtő-fűtő inverteres klímát is tartalmaz az ár szintenként.
Hideg-, meleg-burkolatok: elszámolás alapja a bolti kiskereskedelmi bruttó listaár, melynek összegét a folyamatos áremelkedések okán az adásvétel napján kerül aktualizálásra. Az előtér, konyha, étkező és nappali rész valamint a fürdőszoba kerámia burkolatot kap, míg a szobák laminált parkettával lesznek burkolva.
Főbejárati- és ikerházanként a garázskapu: Hörmann típusú automatikával és motorral, a kerítés stílusában, lakatos szerkezetből , motoros mozgatású, 1db távirányító lakásonként. További távirányítók igény szerint vásárolható ráhangolással 11.000.- Ft/db áron.
Az épület 3 rétegű, magas minőségű nyílászárókat kap.
Mindegyik lakáshoz tartozik terasz valamint loggia. Továbbá kötelezően vásárolandó nyitott autóbeálló térkő aljzattal ellátva. Az épületeket térköves járda veszi körül.
Tulajdonságok
Ikerház
Új építésű
Fan coil
2023
112,3 m²
27,5 m²
B
Vedd fel a kapcsolatot a hirdetővel
+36 70 435 2
Hitelkalkulátor
Második évtől
355 473 Ft A 13. hónaptól
7,99% 8,49%
Végig fix Futamidő: 20 év Banki visszahívás
Az OTP Bank munkatársai a neked megfelelő napszakban veszik fel veled a kapcsolatot. A becslés a hirdető által megadott adatokon alapul. A jelen tájékoztatás nem minősül ajánlattételnek és nem teljes körű, az egyes feltételek a hitelbírálat eredményétől függően változhatnak. Kérjük, a részletekről tájékozódj az OTP Bank fiókjaiban vagy az OTP Bank honlapján közzétett vonatkozó Üzletszabályzatokból és Hirdetményekből.
Vedd fel a kapcsolatot a hirdetővel
+36 70 435 2
Vedd fel a kapcsolatot a hirdetővel
+36 70 435 2
UI_KIT.CHARACTER_COUNTER__COMPONENT.REMAINING_SPACE__SR_ONLYUI_KIT.CHARACTER_COUNTER__COMPONENT.MAXIMUM_CHARACTER__SR_ONLY
Hasonló eladó ingatlanok Felnémet városrészben
Frissítve: 2 napja

20
82,6 M Ft 750 909 Ft/m²
Eladó ikerház, Eger, Felnémet

Frissítve: 2 napja

20
82,6 M Ft 750 909 Ft/m²
Eladó ikerház, Eger, Felnémet

Frissítve: 2 napja

20
82,6 M Ft 750 909 Ft/m²
Eladó ikerház, Eger, Felnémet


Fedezd fel a
hasonló házakat!Még további házak Egerben 82,6 M Ft körüli értékben
Tovább a hirdetésekhez Frissítve: 2 napja

20
82,6 M Ft 750 909 Ft/m²
Eladó ikerház, Eger, Felnémet

Frissítve: 2 napja

20
82,6 M Ft 737 500 Ft/m²
Eladó ikerház, Eger, Felnémet

Frissítve: 2 napja

20
82,6 M Ft 750 909 Ft/m²
Eladó ikerház, Eger, Felnémet


Töltsd fel hirdetésed ingyenesen!
Egyszerű