+2 fotó
Hirdetéskód: 8874463
Referenciaszám: 5098
Feltöltve: ma
Érd eladó ikerház 3 szobás: 54 millió Ft
54 millió Ft
843 750 Ft/m²
64 m²
300 m²
3 szoba
Kód: 5098SZR Új építésű saját kertes nappali + 2 szobás ikerházi lakás
Hivatkozzon erre, kód: 5098SZR
KIZÁRÓLAG KÉSZPÉNZES (nem hiteles) ÜGYFELEK RÉSZÉRE!
- ÚJ ÉPÍTÉSŰ IKERHÁZI LAKÁS
- NAPPALI + 2 SZOBA + UDVARI BEÁLLÓ + SAJÁT KERT
- HŐSZIVATTYÚS FŰTÉS
Érd Dombosváros részén a Fundoklia-völgy szomszédságában kb. 300m2-es saját kerttel rendelkező nappali + 2 szobás, összesen nettó 64.39m2-es új építésű ikerházi lakás (1-es épület) leköthető igény szerinti befejezéssel.
Várható átadás: 2026. augusztus!
Megbízható beruházó, számos referencia ingatlan!
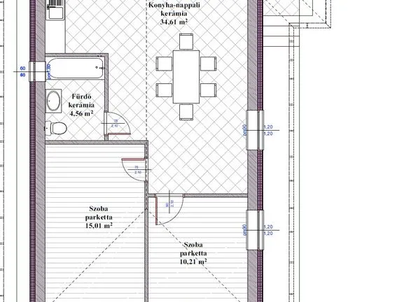
Az ingatlan felosztása a következőképpen alakul (nettó 64.39m2 + elő-terasz): nappali-konyha-étkező (34.61m2), fürdőszoba + wc (4.56m2), 2 szoba (15.01m2, 10.21m2).
Szerkezeti leírás: Beton alap. Tégla főfalak + 15cm dryvit szigetelés. A lakások között 50cm-es fal készül szigeteléssel. Ytong válaszfalak. A külső nyílászárók műanyag szerkezetűek, fokozott hőszigetelésű üvegezéssel. A belső nyílászárók dekorfóliás ajtók. Fa födém szigeteléssel. Cserép fedésű tető.
Az igény szerinti befejezésnek köszönhetően a hideg-meleg burkolatok választhatók a műszaki tartalomban rögzített árak szerint.
Fűtés: Az ingatlan fűtése hőszivattyús rendszerről üzemel, minden helyiségben padlófűtésen keresztül.
Parkolás: saját udvaron belül fedetlen-felszíni beálló áll rendelkezésre.
Megközelíthetőség és infrastruktúra: Az ingatlan tömegközlekedéstől kiesőbb területen helyezkedik el, ezért legfőképp autóval rendelkezőknek ajánljuk! Gépkocsival óvoda, iskola, gyógyszertár, bevásárlási lehetőségek, orvosi rendelők 10 perc alatt elérhetők!
További hasonló ingatlanok találhatók még a kínálatunkban!
Szüksége van hitelre? SEGÍTÜNK!
Bankfüggetlen hitel tanácsadónk díjmentesen áll az Ön rendelkezésére! Keressen bizalommal!
A hirdetésben szereplő adatok, információk, képek, alaprajzok stb... tájékoztató jellegűek! Irodánk az esetleges elírásokért felelősséget nem tud vállalni!
Tájékoztatjuk a Tisztelt Érdeklődőket, hogy az ingatlan hirdetésében szereplő telefonszám felhívásával Önök hozzájárulnak személyes adataik (név, telefonszám), a hirdetést feladó -Otthonplusz.hu Kft. - által a bizalmas kezeléshez és nyilvántartáshoz.
Tulajdonságok
Ikerház
1
Új építésű
Hőszivattyú
2026
Nem adta meg a hirdető
Vedd fel a kapcsolatot a hirdetővel
+36 20 953 1
Hitelkalkulátor
Második évtől
232 391 Ft A 13. hónaptól
7,99% 8,49%
Végig fix Futamidő: 20 év Banki visszahívás
Az OTP Bank munkatársai a neked megfelelő napszakban veszik fel veled a kapcsolatot. A becslés a hirdető által megadott adatokon alapul. A jelen tájékoztatás nem minősül ajánlattételnek és nem teljes körű, az egyes feltételek a hitelbírálat eredményétől függően változhatnak. Kérjük, a részletekről tájékozódj az OTP Bank fiókjaiban vagy az OTP Bank honlapján közzétett vonatkozó Üzletszabályzatokból és Hirdetményekből.
Vedd fel a kapcsolatot a hirdetővel
+36 20 953 1
Vedd fel a kapcsolatot a hirdetővel
+36 20 953 1
UI_KIT.CHARACTER_COUNTER__COMPONENT.REMAINING_SPACE__SR_ONLYUI_KIT.CHARACTER_COUNTER__COMPONENT.MAXIMUM_CHARACTER__SR_ONLY
Hasonló eladó ingatlanok Érden
Frissítve: 13 napja
15
52,9 M Ft 529 000 Ft/m²
Eladó ikerház, Érd

Frissítve: 13 napja
19
55 M Ft 354 839 Ft/m²
Eladó családi ház, Érd

Frissítve: 13 napja
17
59 M Ft 572 816 Ft/m²
Eladó családi ház, Érd


Fedezd fel a
hasonló házakat!Még további házak Pest megyében 54 M Ft körüli értékben
Tovább a hirdetésekhez Frissítve: ma
6
59 M Ft 572 816 Ft/m²
Eladó családi ház, Érd

Frissítve: 13 napja
17
50 M Ft 833 333 Ft/m²
Eladó családi ház, Érd

Frissítve: ma
6
59 M Ft 572 816 Ft/m²
Eladó családi ház, Érd

