+12 fotó
Hirdetéskód: 8840555
Referenciaszám: 729500048
Frissítve: 3 napja
Fót eladó ikerház 4 szobás: 137,5 millió Ft
137,5 millió Ft
1 082 677 Ft/m²
127 m²
345 m²
4 szoba
4639/A2: Fót legújabb, panorámás lakóparkjában épülő, ikerházak eladók!!
Kedves Otthonkereső!!
Fót legújabb, panorámás lakóparkjában épülő, ikerházak eladók!!
A lakások kizárólag a garázsokkal kapcsolódnak, így a lakótérből áthallás nincs, ezáltal szinte önálló családi ház érzetet biztosíthat!
CÉGES ÉPÍTKEZÉS, az aktuális állami támogatások valamint kedvezményes, kamattámogatott hitelek felvehetőek – akár a 3%-os OTTHON START hitel, CSOK PLUS, babaváró is igényelhető, az ügyintézésben díjmentesen segítünk!
Az építő munkájára jellemző a megbízhatóság és igényesség, leinformálható, referencia házai megtekinthetők.
Az 1200 nm-es telekre két ikerház épül.
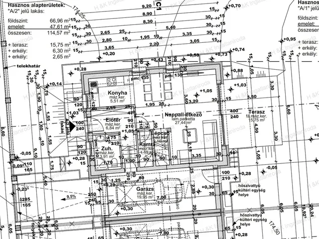
Jelen hirdetésben az A épület 2-es lakása szerepel, mely hasznos lakóterülete a garázzsal 114,57 nm + terasz + erkélyek, amerikai-konyhás nappali + 3 szobás, dupla-komfortos, 345 nm-es telekrésszel.
A földszint 66,96 nm a garázzsal + terasz: amerikai konyhás nappali + fürdőszoba zuhanyzóval + kamra + előtér + terasz
Az emelet 47,61 nm + 2 erkély: 3 hálószoba (mindegyik erkélykapcsolatos), fürdőszoba káddal, közlekedő, két erkély
Rövid műszaki tartalom:
A főfalak Porotherm 30 N+F téglából épülnek, a válaszfalak pedig Porotherm 10 N+F téglából, 15 cm-es homlokzati szigeteléssel.
Prémium nyílászárók kerülnek beépítésre, kitűnő hő- és hangszigeteléssel
A fűtés modern hőszivattyús rendszerrel kerül kiépítésre, a hő leadás padlófűtéssel történik.
Az ingatlan kulcsrakész állapotban kerül átadásra, konyhabútor nélkül. Belső nyílászárók és a burkolatok választhatók, a belső műszaki tartalomban megjelölt összegig a vételár részét képezik.
A projekt részletes adataiért, valamint a többi lakással kapcsolatban is várjuk hívását.
Ára: 137,5 M Ft
Azonosító: 4639/A2
Tulajdonságok
Ikerház
1
Új építésű
Hőszivattyú
2026
Nem adta meg a hirdető
Vedd fel a kapcsolatot a hirdetővel
+36 70 418 1
Hitelkalkulátor
Második évtől
591 737 Ft A 13. hónaptól
7,99% 8,49%
Végig fix Futamidő: 20 év Banki visszahívás
Az OTP Bank munkatársai a neked megfelelő napszakban veszik fel veled a kapcsolatot. A becslés a hirdető által megadott adatokon alapul. A jelen tájékoztatás nem minősül ajánlattételnek és nem teljes körű, az egyes feltételek a hitelbírálat eredményétől függően változhatnak. Kérjük, a részletekről tájékozódj az OTP Bank fiókjaiban vagy az OTP Bank honlapján közzétett vonatkozó Üzletszabályzatokból és Hirdetményekből.
Vedd fel a kapcsolatot a hirdetővel
+36 70 418 1
Vedd fel a kapcsolatot a hirdetővel
+36 70 418 1
UI_KIT.CHARACTER_COUNTER__COMPONENT.ACTUAL_CHARACTER__SR_ONLY UI_KIT.CHARACTER_COUNTER__COMPONENT.MAXIMUM_CHARACTER__SR_ONLY
Hasonló eladó ingatlanok Fóton
Frissítve: ma
20
149,9 M Ft 468 438 Ft/m²
Eladó családi ház, Fót

Frissítve: 1 napja
20
149,9 M Ft 468 438 Ft/m²
Eladó családi ház, Fót, Sport utca

Frissítve: 3 napja
20
136 M Ft 1 000 000 Ft/m²
Eladó ikerház, Fót


Fedezd fel a
hasonló házakat!Még további házak Fóton 137,5 M Ft körüli értékben
Tovább a hirdetésekhez Frissítve: 3 napja
20
136 M Ft 1 000 000 Ft/m²
Eladó ikerház, Fót

Frissítve: 3 napja
20
149,9 M Ft 499 667 Ft/m²
Eladó családi ház, Fót

Frissítve: 3 napja
8
124,3 M Ft 1 294 792 Ft/m²
Eladó ikerház, Fót

