Hirdetéskód: 8857252
Referenciaszám: 1363_ar
Frissítve: ma
Gödöllő eladó ikerház 4 szobás: 134,9 millió Ft
134,9 millió Ft
899 333 Ft/m²
150 m²
500 m²
4 szoba
Eladó ikerház Gödöllő Nincs megadva 150m2 134900000 Ft
Eladó Gödöllő keresett részén, a gödöllői kastély közelében, csendes, rendezett utcában, ÚJ ÉPÍTÉSŰ ikerház.
A két ház CSAK A GARÁZSOKNÁL ÉRINTKEZIK, NINCS KÖZÖS FAL!
BERUHÁZÓI ÁRON!
Folyamatban lévő építkezés, nyári átadás!
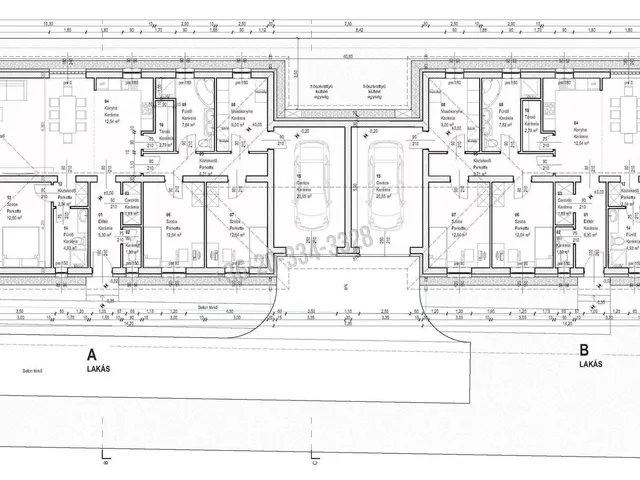
Ez a lakásonként 150 m²-es, földszintes tégla ikerház kiváló választás azok számára, akik stílusos, energiatakarékos otthonra vágynak. A tágas amerikai konyhás nappali (48 m²), három külön nyíló hálószoba, kamra, gardrób, két fürdőszoba, háztartási helyiség, vendég WC, 10 m²-es terasz és 21 m²-es garázs minden család igényét kielégíti.
Főbb műszaki paraméterek:
-30-as Porotherm X-Therm tégla falazat, 15 cm-es grafitos szigeteléssel,
-beton födém, beton cserépfedés,
-3 rétegű, hőszigetelt üvegezésű nyílászárók,
-hőszivattyús fűtés, padlófűtéssel, fürdőszobákban törölköző szárítóval kiegészítve,
-választható burkolatok, szaniterek, belső ajtók.
Az első „A” lakáshoz tartozó telek 500 nm, ára: 134.9MFt,
a hátsó „B” lakáshoz 1300 telek tartozik, ennek ára: 137.9MFt.
Számos referenciával rendelkező, megbízható kivitelező!
Kérje a részletes műszaki tartalmat, és fedezze fel a vágyott családi otthont Gödöllőn.
Irodánk ÚJ ÉPÍTÉSŰ ingatlanok specialistája, felkészült értékesítőkkel!
Jogi háttérrel (kedvező díjazással) és az egyik legjobb, bank semleges HITELKÖZVETÍTŐVEL segítjük vásárlását.
Hitelszakértőnk teljes körű ügyintézéssel áll Vevőink rendelkezésére, legyen szó OTTHON START, CSOK+, BABAVÁRÓ vagy a legjobb piaci hitelről.
Új építésű ingatlanjainkat BERUHÁZÓI ÁRON értékesítjük!
Amennyiben értékesíteni kívánja ingatlanát, irodánk egyedi, kedvező ajánlattal áll rendelkezésére!
Tulajdonságok
Ikerház
1
Új építésű
Hőszivattyú
2026
10 m²
Nem adta meg a hirdető
Vedd fel a kapcsolatot a hirdetővel
+36 20 334 3
Hitelkalkulátor
Második évtől
580 548 Ft A 13. hónaptól
7,99% 8,49%
Végig fix Futamidő: 20 év Banki visszahívás
Az OTP Bank munkatársai a neked megfelelő napszakban veszik fel veled a kapcsolatot. A becslés a hirdető által megadott adatokon alapul. A jelen tájékoztatás nem minősül ajánlattételnek és nem teljes körű, az egyes feltételek a hitelbírálat eredményétől függően változhatnak. Kérjük, a részletekről tájékozódj az OTP Bank fiókjaiban vagy az OTP Bank honlapján közzétett vonatkozó Üzletszabályzatokból és Hirdetményekből.
Vedd fel a kapcsolatot a hirdetővel
+36 20 334 3
Vedd fel a kapcsolatot a hirdetővel
+36 20 334 3
UI_KIT.CHARACTER_COUNTER__COMPONENT.REMAINING_SPACE__SR_ONLYUI_KIT.CHARACTER_COUNTER__COMPONENT.MAXIMUM_CHARACTER__SR_ONLY
Hasonló eladó ingatlanok Gödöllőn
Frissítve: 26 napja
20
124,9 M Ft 960 769 Ft/m²
Eladó családi ház, Gödöllő
Frissítve: ma
20
124 M Ft 496 000 Ft/m²
Eladó családi ház, Gödöllő
Frissítve: 26 napja
4
125,9 M Ft 617 157 Ft/m²
Eladó családi ház, Gödöllő

Fedezd fel a
hasonló házakat!Még további házak Gödöllőn 134,9 M Ft körüli értékben
Tovább a hirdetésekhez Frissítve: 26 napja
4
125,9 M Ft 617 157 Ft/m²
Eladó családi ház, Gödöllő
Frissítve: 26 napja
20
144,9 M Ft 667 742 Ft/m²
Eladó családi ház, Gödöllő
Frissítve: ma
10
129,9 M Ft 999 231 Ft/m²
Eladó ikerház, Gödöllő
