+6 fotó
Hirdetéskód: 8909410
Referenciaszám: HZ094493-5161167
Frissítve: ma
Gyál eladó ikerház 5 szobás: 144,9 millió Ft
144,9 millió Ft
985 714 Ft/m²
147 m²
198 m²
5 szoba
Eladó ház, Gyál
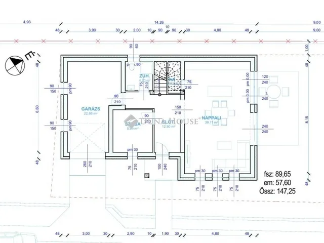
Eladásra kínálunk Gyál kedvelt, Gyálligeti részén egy modern, újépítésű családi házat, amely korszerű műszaki tartalommal és átgondolt belső elrendezéssel készül.Az ingatlan korszerű Viablokk falazóelemekből épül, 15 cm vastag homlokzati hőszigeteléssel és 30 cm födémszigeteléssel, így energetikailag kiemelkedően hatékony otthon lesz. A háromrétegű, hatlégkamrás, hőszigetelt nyílászárók tovább növelik a komfortérzetet és csökkentik a rezsiköltségeket. A tetőt időtálló betoncserép fedi.A fűtésről modern 10kw-os hőszivattyús rendszer gondoskodik padlófűtéssel, míg a használati 2 melegvizet villanybojler biztosítja. A nappaliban klíma kiállás kerül kialakításra, valamint a biztonságról kamerarendszer és riasztó gondoskodik.A földszinten tágas, amerikai konyhás nappali kap helyet, előtérrel, zuhanyzós fürdőszobával, egy külön szobával, kamrával, valamint egy fűtött garázzsal. Az emeleti szinten három kényelmes hálószoba, egy fürdőszoba és egy praktikus háztartási helyiség kerül kialakításra, így a ház ideális választás lehet akár nagyobb család számára is.A belső burkolatok 5.000 Ft/m² értékhatárig választhatók, a beltéri ajtók kilinccsel és kiegészítőkkel bruttó 80.000 Ft/db értékben, a csaptelepek és mosdók pedig 20.000 Ft/db keretösszegig választhatók, így a leendő tulajdonos saját ízlésére szabhatja otthonát.A várható átadás 2026 4. negyedév végén esedékes.Ha egy energiatakarékos, modern kialakítású, jól megközelíthető, mégis nyugodt környezetben épülő otthont keres Gyál egyik legkedveltebb részén, ez az ingatlan kiváló választás lehet.Keressen bizalommal a hét bármely napján!
Referencia szám: HZ094493
Tulajdonságok
Ikerház
Új építésű
Hőszivattyú
2026
Nem adta meg a hirdető
Vedd fel a kapcsolatot a hirdetővel
+36 37 999 3
Hitelkalkulátor
Második évtől
623 584 Ft A 13. hónaptól
7,99% 8,49%
Végig fix Futamidő: 20 év Banki visszahívás
Az OTP Bank munkatársai a neked megfelelő napszakban veszik fel veled a kapcsolatot. A becslés a hirdető által megadott adatokon alapul. A jelen tájékoztatás nem minősül ajánlattételnek és nem teljes körű, az egyes feltételek a hitelbírálat eredményétől függően változhatnak. Kérjük, a részletekről tájékozódj az OTP Bank fiókjaiban vagy az OTP Bank honlapján közzétett vonatkozó Üzletszabályzatokból és Hirdetményekből.
Vedd fel a kapcsolatot a hirdetővel
+36 37 999 3
Vedd fel a kapcsolatot a hirdetővel
+36 37 999 3
UI_KIT.CHARACTER_COUNTER__COMPONENT.ACTUAL_CHARACTER__SR_ONLY UI_KIT.CHARACTER_COUNTER__COMPONENT.MAXIMUM_CHARACTER__SR_ONLY
Hasonló eladó ingatlanok Gyálon
Frissítve: 12 napja
11
144,9 M Ft 985 714 Ft/m²
Eladó családi ház, Gyál
Frissítve: ma
22
149 M Ft 993 333 Ft/m²
Eladó ikerház, Gyál

Frissítve: 1 hónapja
15
149 M Ft 1 354 545 Ft/m²
Eladó családi ház, Gyál

Fedezd fel a
hasonló házakat!Még további házak Gyálon 144,9 M Ft körüli értékben
Tovább a hirdetésekhez Frissítve: 12 napja
9
149,9 M Ft 1 019 728 Ft/m²
Eladó családi ház, Gyál

Frissítve: 12 napja
9
144,9 M Ft 984 041 Ft/m²
Eladó ikerház, Gyál

Frissítve: 12 napja
6
145 M Ft 1 098 485 Ft/m²
Eladó családi ház, Gyál

