

+9 fotó
Zenga
Premier
Hirdetéskód: 8748458
Referenciaszám: U0048800
Feltöltve: ma
Hajdúsámson eladó ikerház 4 szobás: 69,9 millió Ft
69,9 millió Ft
884 810 Ft/m²
79 m²
297 m²
4 szoba

Friss hirdetések, amiket nem találsz meg más ingatlankereső portálon.
Fedezd fel elsőként a Zenga Premier címkés eladó ingatlanokat! További részletek A Duna House, OTP Ingatlanpont, Otthon Centrum és további hálózatok új, kizárólagos hirdetéseinek nagy részét a zenga.hu és koltozzbe.hu ingatlankeresőn láthatod legelőször, és a feltöltéstől két hétig nem érhetők el más ingatlankeresőn!
Sámsonkertben új építésű ikerházak!
Sámsonkertben építés alatt – új, tágas 4 szobás ház várja Önt!
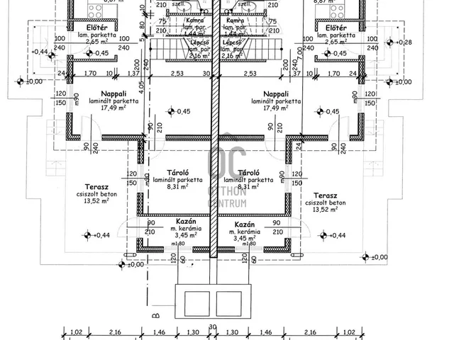
Most egy igazán különleges lehetőséget kínálunk számodra Sámsonkert városrészben. Ez az új építésű ház nem csupán egy ingatlan, hanem egy életstílus, amely tökéletesen illeszkedik a modern fiatalok igényeihez. Az ingatlan alapterülete 82 négyzetméter, amelyben négy tágas szoba és két fürdőszoba található. A terasz mérete 13,52 négyzetméter, ahol a reggeli kávédat vagy a barátaiddal eltöltött estéidet élvezheted a friss levegőn. A ház kiváló állapotban van, és a megújuló hőszivattyús fűtési rendszernek köszönhetően nemcsak gazdaságos, hanem környezetbarát megoldást is kínál. A klímaberendezés pedig biztosítja, hogy a nyári hónapokban is kellemes hőmérsékletet varázsolhass otthonodba. Az ingatlan környezete csendes és biztonságos, ideális helyszín a nyugodt hétköznapokhoz és a baráti összejövetelekhez. A környék adottságai lenyűgözőek: a közlekedési lehetőségek kiválóak, hiszen autóval könnyen megközelíthető a város központja, ahol számos bolt, étterem és szórakozási lehetőség vár rád. A tömegközlekedés is jól kiépített, buszmegálló 5 perc sétára található így a város többi részéhez is könnyedén eljuthatsz.
A lakás jellemzői:
- fémszerekezet teherhordó falakkal és hanggátló elválasztó téglafalakkal épült
- nettó lakótér 79 m2 mely magában foglal 4 lakószobát, 2 fürdőszobát és nappalit külön
- a lakásokhoz osztatlan közös megosztással került kialakításra a saját telekrész ezen ingatlanhoz okirat szerint 297 m2 csatlakozik
- a lakások külön mérő órákkal felszereltek (Villany óra, külön hőszivattyú, fúrt kút külön szivattyúval, lakásonként 10m3-es zárt szennyvíz tározó és klíma berendezés 3,5 kW kapacitással)
- a lakásokban mindenütt padlófűtés van kiépítve
- nyílászárók 3 rétegű üvegezéssel ellátott műanyag ablakok, a tetőtérben fa nyílászárók
- padlástérben 30 cm szigetlés, a homloztaon 15 cm hőszegetelés készült.
- átadás: 2026 március
- alapterület 82 m2+ 3,45 m2 kazánház+ 12, 47 m2 terasz
Az ingatlan babaváróval és CSOK+-al vásárolható!
Az otthon start hitel feltételeinek a városrész nem felel meg.
Ha szeretnél többet megtudni erről a kivételes ingatlanról, vagy kérdéseid lennének a vásárlással kapcsolatban, bátran keresd fel a hirdetésünket! Bizalommal állunk rendelkezésedre, hogy segítsünk megtalálni álmaid otthonát vagy befektetési lehetőségedet. Ne hagyd ki ezt a páratlan ajánlatot, hiszen ez a lehetőség gyorsan el fog tűnni a piacon!
Tulajdonságok
Ikerház
Új építésű
2025
12,5 m²
Nem adta meg a hirdető
Vedd fel a kapcsolatot a hirdetővel
+36 70 465 6
Hitelkalkulátor
Második évtől
300 818 Ft A 13. hónaptól
7,99% 8,49%
Végig fix Futamidő: 20 év Banki visszahívás
Az OTP Bank munkatársai a neked megfelelő napszakban veszik fel veled a kapcsolatot. A becslés a hirdető által megadott adatokon alapul. A jelen tájékoztatás nem minősül ajánlattételnek és nem teljes körű, az egyes feltételek a hitelbírálat eredményétől függően változhatnak. Kérjük, a részletekről tájékozódj az OTP Bank fiókjaiban vagy az OTP Bank honlapján közzétett vonatkozó Üzletszabályzatokból és Hirdetményekből.
Vedd fel a kapcsolatot a hirdetővel
+36 70 465 6
Vedd fel a kapcsolatot a hirdetővel
+36 70 465 6
UI_KIT.CHARACTER_COUNTER__COMPONENT.REMAINING_SPACE__SR_ONLYUI_KIT.CHARACTER_COUNTER__COMPONENT.MAXIMUM_CHARACTER__SR_ONLY
Hasonló eladó ingatlanok Sámsonkert városrészben
Frissítve: 5 napja

5
69,99 M Ft 752 581 Ft/m²
Eladó ikerház, Hajdúsámson, Sámsonkert

Frissítve: 22 napja

20
64,9 M Ft 745 977 Ft/m²
Eladó családi ház, Hajdúsámson, Sámsonkert

Frissítve: 5 napja

20
64,9 M Ft 968 657 Ft/m²
Eladó sorház, Hajdúsámson, Sámsonkert


Fedezd fel a
hasonló házakat!Még további házak Hajdúsámsonon 69,9 M Ft körüli értékben
Tovább a hirdetésekhez Frissítve: 12 napja

5
69,9 M Ft 751 613 Ft/m²
Eladó ikerház, Hajdúsámson, Sámsonkert

Feltöltve: 11 napja

4
75 M Ft 555 556 Ft/m²
Eladó családi ház, Hajdúsámson, Sámsonkert, Holló u
Frissítve: 7 napja

9
69,9 M Ft 919 737 Ft/m²
Eladó ikerház, Hajdúsámson, Sámsonkert


Töltsd fel hirdetésed ingyenesen!
Egyszerű