+7 fotó
Hirdetéskód: 8929182
Referenciaszám: HZ040483-5168048
Frissítve: 25 napja
Mende eladó ikerház 4 szobás: 85 millió Ft
85 millió Ft
904,3 ezer Ft/m²
94 m²
981 m²
4 szoba
Eladó ház, Mende
MENDE PUSZTASZENTISTVÁNI RÉSZÉN ÚJ ÉPÍTÉSŰ, 3 SZOBÁS OTTHON SAJÁT KERTTEL!
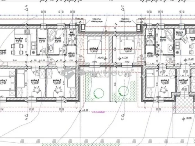
Ikerház: ELSŐ HÁZ
Vasútállomáshoz közel, mégis csendes, nyugodt környezetben!
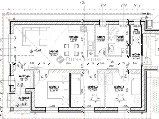
Mendén, a közkedvelt Pusztaszentistváni részen, a vasútállomástól nem messze de kellő távolságra ahhoz, hogy a vonatok zaja ne legyen zavaró kínálok megvételre egy nettó 94 m²-es, új építésű, kiváló elosztású családi otthont.
A 981 m²-es telken elhelyezkedő első ingatlanhoz 250 m² kizárólagos használatú kert tartozik tökéletes választás pihenéshez, kerti sütögetéshez, medencéhez vagy akár mobilgarázs kialakításához.
Itt valóban megvan az intimitás és a nyugalom!
MŰSZAKI TARTALOM IDŐTÁLLÓ MINŐSÉG
30 cm-es nútféderes tégla falazat
Fa födém
Antracit betoncserép fedés
15 cm EPS homlokzati szigetelés
10 cm Austrotherm padlószigetelés
25 cm ásványgyapot födémszigetelés
6 légkamrás, 3 rétegű üvegezésű nyílászárók
MODERN, GAZDASÁGOS FŰTÉS
10 kW-os monoblokkos hőszivattyú
Teljes körű padlófűtés
Alacsony fenntartás, korszerű megoldások.
PRAKTIKUS, CSALÁDBARÁT ELRENDEZÉS
3 tágas szoba
Amerikai konyhás nappali
Fürdőszoba + külön WC
Külön háztartási helyiség
Átgondolt alaprajz, élhető terek.
VÁLASZTHATÓ BURKOLATOK ÉS SZANITEREK (KÖLTSÉGKERETEN BELÜL)
Hideg- és melegburkolatok: 5.000 Ft/m²-ig
Csaptelepek: 25.000 Ft/db
Kád vagy zuhany: 70.000 Ft
Beltéri ajtók: 50.000 Ft/db
Falsík mögötti WC rendszer
Magasabb kategória is választható, különbözet ráfizetésével.
ELEKTROMOS KIÉPÍTÉS
Szobákban: 3-3 konnektor
Nappaliban: 4 konnektor + internet + kábel TV
Konyhában: 6 konnektor
Helyiségenként világítási kiállás
Kábel TV előkészítés
Riasztó- és kapumozgató elektronika előkészítés
MEGBÍZHATÓ KIVITELEZŐ
A kivitelező Kókán,Sülysápon, több mint 30 ingatlant épített.
Referenciaházakat komoly érdeklődés esetén szívesen mutatok!
Várható átadás: 2026. SZEPTEMBER-OKTÓBER
Ha szeretné biztos, értékálló helyen tudni családja új otthonát Mendén, hívjon bizalommal!
Nézzük meg együtt leendő ÚJ OTTHONÁT!
Független hitelügyintézővel is segítem a vásárlást.
Keressen bizalommal, akár eladna vagy vásárolna.
A hét minden napján állok rendelkezésére a Duna House teljes kínálatával.
Hitelügyintézőnk díjmentes segítséget nyújt.
Mikus Kornélia tel.: +36/30-208-20-06 email.: mikus.kornelia@dh.hu
Referencia szám: HZ040483-ZE
Tulajdonságok
Ikerház
Új építésű
Hőszivattyú
2026
Nem adta meg a hirdető
Vedd fel a kapcsolatot a hirdetővel

+36 29 998 8
Hitelkalkulátor
Második évtől
365 801 Ft A 13. hónaptól
7,99% 8,49%
Végig fix Futamidő: 20 év Banki visszahívás
Az OTP Bank munkatársai a neked megfelelő napszakban veszik fel veled a kapcsolatot. A becslés a hirdető által megadott adatokon alapul. A jelen tájékoztatás nem minősül ajánlattételnek és nem teljes körű, az egyes feltételek a hitelbírálat eredményétől függően változhatnak. Kérjük, a részletekről tájékozódj az OTP Bank fiókjaiban vagy az OTP Bank honlapján közzétett vonatkozó Üzletszabályzatokból és Hirdetményekből.
Vedd fel a kapcsolatot a hirdetővel

+36 29 998 8
Vedd fel a kapcsolatot a hirdetővel

+36 29 998 8
UI_KIT.CHARACTER_COUNTER__COMPONENT.ACTUAL_CHARACTER__SR_ONLY UI_KIT.CHARACTER_COUNTER__COMPONENT.MAXIMUM_CHARACTER__SR_ONLY
Hasonló eladó ingatlanok Mendén
Frissítve: ma
6
89,9 millió Ft 1,12 millió Ft/m²
Eladó ikerház, Mende

Frissítve: 1 napja
10
85 millió Ft 904,3 ezer Ft/m²
Eladó ikerház, Mende

Frissítve: 25 napja
10
85 millió Ft 904,3 ezer Ft/m²
Eladó ikerház, Mende


Fedezd fel a
hasonló házakat!Még további házak Pest megyében 85 M Ft körüli értékben
Tovább a hirdetésekhez Frissítve: ma
6
85 millió Ft 904,3 ezer Ft/m²
Eladó ikerház, Mende

Frissítve: ma
10
85 millió Ft 904,3 ezer Ft/m²
Eladó ikerház, Mende

Frissítve: 25 napja
10
85 millió Ft 904,3 ezer Ft/m²
Eladó ikerház, Mende

