

+12 fotó
Hirdetéskód: 8236702
Frissítve: 1 napja
Nagycenk eladó ikerház 4 szobás: 84,8 millió Ft
84,8 millió Ft
892 632 Ft/m²
95 m²
280 m²
4 szoba
TERVEZÉSTŐL A KÖLTÖZÉSIG MINDEN EGY HELYEN!
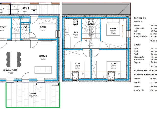
A Szépingatlan Iroda eladásra kínál Nagycenken, a Széchenyi lakópark legdinamikusabban fejlődő területén, kizárólag új építésű családi házas övezetben, 560 m2-es telken épülő, 95 m2-es ikerház, utcafronti lakását, saját 280 m2-es telekrésszel. Az ingatlan saroktelken helyezkedik el, így kihasználva a terület adottságait, a lakóépület szeparáltan, külön bejárattal közelíthető meg. Az egyszerűség, a praktikusság, és a költséghatékonyság volt a fő szempont a házak megalkotásakor. A két ház megegyező elrendezésű, mely három hálószobát, amerikai konyhás nappalit-étkezővel, fürdőszobát, két WC-t, gépészeti helyiséget, egy tágas előszobát és egy tárolóhelyiséget foglal magában. Az alsó szinten a nappali-konyha-étkező kiváló egysége található, mely hatalmas üvegfelülettel kapcsolódik a nyugati tájolásu terasszal a kert felé. Kényelmes lépcső vezet az emeleti szintre, a pihenés és a magán szféra felső szintjére, ahol három szoba és a fürdőszoba kapott helyet. Minden helyiség közlekedőből nyílik. Az ingatlan két szintes, sávalapra épült ház, 30-as POROTHERM téglából, 18 cm homlokzati szigeteléssel valósul meg, hőszivattyús fűtésrendszerrel, a lakótérben padlófűtéssel. A hőszivattyús fűtésnek, a megfelelő szigetelésnek, a korszerű nyílászáróknak köszönhetően alacsony rezsivel lehet kalkulálni. A külső nyílászárók fehér, bukó-nyíló szerkezetűek, 3 rétegű hőszigetelt üvegezéssel és külső árnyékolóval kerülnek beépítésre. A belső falak festése fehér színben, hideg-meleg burkolatok, beltéri ajtók, szaniterek az építtetővel egyeztetve, meghatározott áron választhatók. Az előkertben két autó számára biztosított a parkolási lehetőség. Babaváró hitel, CSOK Plusz, támogatott hitelek igénybe vehetők! Bankfüggetlen szakértő kollégánk teljes körű és díjmentes hitelügyintézéssel áll az ügyfelek rendelkezésére. Kérje személyre szabott ajánlatunkat! A projekttel kapcsolatos további kérdésekkel keresse minket személyes találkozóra! Tervezett átadás a megrendeléstől számított 10 hónap. Az épületről látványterv készült, a fotók a jelenleg építés alatt álló házról készültek. Ára: 84,8 mFt. Kérem privát üzenetben érdeklődjön!
Tulajdonságok
Ikerház
2
Új építésű
Hőszivattyú
2024
18 m²
Nem adta meg a hirdető
Vedd fel a kapcsolatot a hirdetővel
Szépingatlan Iroda Az iroda összes hirdetése
+36 30 520 6
Hitelkalkulátor
Második évtől
364 941 Ft A 13. hónaptól
7,99% 8,49%
Végig fix Futamidő: 20 év Banki visszahívás
Az OTP Bank munkatársai a neked megfelelő napszakban veszik fel veled a kapcsolatot. A becslés a hirdető által megadott adatokon alapul. A jelen tájékoztatás nem minősül ajánlattételnek és nem teljes körű, az egyes feltételek a hitelbírálat eredményétől függően változhatnak. Kérjük, a részletekről tájékozódj az OTP Bank fiókjaiban vagy az OTP Bank honlapján közzétett vonatkozó Üzletszabályzatokból és Hirdetményekből.
Vedd fel a kapcsolatot a hirdetővel
Szépingatlan Iroda Az iroda összes hirdetése
+36 30 520 6
Vedd fel a kapcsolatot a hirdetővel
Szépingatlan Iroda Az iroda összes hirdetése
+36 30 520 6
UI_KIT.CHARACTER_COUNTER__COMPONENT.REMAINING_SPACE__SR_ONLYUI_KIT.CHARACTER_COUNTER__COMPONENT.MAXIMUM_CHARACTER__SR_ONLY
Hasonló eladó ingatlanok Nagycenken
Frissítve: 1 napja

5
80,6 M Ft 760 377 Ft/m²
Eladó családi ház, Nagycenk
Frissítve: 1 hónapja

14
89,5 M Ft 983 516 Ft/m²
Eladó családi ház, Nagycenk
Frissítve: ma

20
89,5 M Ft 994 444 Ft/m²
Eladó ikerház, Nagycenk

Fedezd fel a
hasonló házakat!Még további házak Győr-Moson-Sopron megyében 84,8 M Ft körüli értékben
Tovább a hirdetésekhez Frissítve: 9 hónapja

3
83,9 M Ft 932 222 Ft/m²
Eladó családi ház, Nagycenk
Frissítve: 10 napja

12
89,5 M Ft 983 516 Ft/m²
Eladó ikerház, Nagycenk

Frissítve: 10 napja

5
79,9 M Ft 1 065 333 Ft/m²
Eladó ikerház, Nagycenk


Töltsd fel hirdetésed ingyenesen!
Egyszerű