+17 fotó
Hirdetéskód: 8666723
Referenciaszám: H346300
Frissítve: 6 napja
Nagykovácsi eladó ikerház 3+4 fél szobás: 150 millió Ft
150 millió Ft
1 034 483 Ft/m² *
* A m² árat a hirdető adta meg.
145 m²
150 m²
3+4 fél szoba
Eladó ikerházfél – Nagykovácsi központjában, csendes utcában
Eladó ikerházfél – Nagykovácsi központjában, csendes utcában
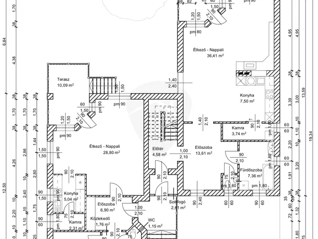
Főbb adatok:
Alapterület: 145 m² (2 szint + pince)
Telekrész: 150 m² kert + 100 m² viacolor kocsibeálló
Építés éve: 1992
Állapot: folyamatosan karbantartott, azonnal költözhető
Energetikai besorolás: C
Fűtés: gázkazán + cserépkályha
Szigetelés: 10 cm grafitos hőszigetelés
Nyílászárók: új, 3 rétegű műanyag
Beltéri ajtók: újak
Helyiségek:
Földszint (kb. 80 m²): szélfogó, előszoba, nappali-étkező-konyha egyben, külön WC, kádas fürdőszoba, 20 m² terasz kertkapcsolattal
Emelet (kb. 65 m²): nappali/társalgó, tusolós fürdőszoba, külön WC, gardrób, 4 hálószoba
Pince: kétállásos garázs, 30 m² külön helyiség (műhely/hobbi/tároló), 8 m² tároló, kazánház
Kert és parkolás:
Saját, rendezett 150 m² kert bővizű kúttal
100 m² viacolor kocsibeálló
Jogviszony:
Az ingatlan egy kétlakásos családi ház nagyobbik része
Ügyvédi használati megosztás folyamatban
Külön bejárat, saját mérőórák, önálló kertkapcsolat
Elhelyezkedés:
Nagykovácsi központi, mégis csendes utcájában
Pár perc sétára: buszmegálló, iskola, óvoda, játszótér, bevásárlóközpont
Természetközeli, jó levegő, Budapest könnyen elérhető
Extrák:
Hangulatos cserépkályha
Azonnal költözhető állapot
Tulajdonságok
Ikerház
2
Felújított
Gázkazán
1992
Nem adta meg a hirdető
Vedd fel a kapcsolatot a hirdetővel
+36 70 412 5
Hitelkalkulátor
Második évtől
645 532 Ft A 13. hónaptól
7,99%
Végig fix Futamidő: 20 év Banki visszahívás
Az OTP Bank munkatársai a neked megfelelő napszakban veszik fel veled a kapcsolatot. A becslés a hirdető által megadott adatokon alapul. A jelen tájékoztatás nem minősül ajánlattételnek és nem teljes körű, az egyes feltételek a hitelbírálat eredményétől függően változhatnak. Kérjük, a részletekről tájékozódj az OTP Bank fiókjaiban vagy az OTP Bank honlapján közzétett vonatkozó Üzletszabályzatokból és Hirdetményekből.
Vedd fel a kapcsolatot a hirdetővel
+36 70 412 5
Vedd fel a kapcsolatot a hirdetővel
+36 70 412 5
UI_KIT.CHARACTER_COUNTER__COMPONENT.REMAINING_SPACE__SR_ONLYUI_KIT.CHARACTER_COUNTER__COMPONENT.MAXIMUM_CHARACTER__SR_ONLY
Hasonló eladó ingatlanok Nagykovácsiban
Frissítve: 17 napja
10
158 M Ft 1 215 385 Ft/m²
Eladó családi ház, Nagykovácsi
Frissítve: 5 hónapja
20
158 M Ft 1 215 385 Ft/m²
Eladó családi ház, Nagykovácsi, Erdőalja utca
Frissítve: 22 napja
20
139 M Ft 556 000 Ft/m²
Eladó családi ház, Nagykovácsi


Fedezd fel a
hasonló házakat!Még további házak Pest megyében 150 M Ft körüli értékben
Tovább a hirdetésekhez Frissítve: 22 napja
20
165 M Ft 753 425 Ft/m²
Eladó családi ház, Nagykovácsi, Semmelweis Ignác utca

Frissítve: 5 napja
13
152 M Ft 1 169 231 Ft/m²
Eladó családi ház, Nagykovácsi
Frissítve: ma
20
165 M Ft 753 425 Ft/m²
Eladó családi ház, Nagykovácsi


Töltsd fel hirdetésed ingyenesen!
Egyszerű