

+2 fotó
Hirdetéskód: 8727061
Referenciaszám: 5362-5048841
Frissítve: 3 napja
Nyíregyháza eladó ikerház 3 szobás: 71,9 millió Ft
71,9 millió Ft
604 202 Ft/m²
119 m²
1000 m²
3 szoba
Családbarát környezet, modern otthon, elérhető ár! Nappali + 3 szobás ikerház eladó! KÖLTÖZZÖN 2026 TAVASZÁN
Családbarát környezet, modern otthon, elérhető ár! Nappali + 3 szobás ikerház eladó! KÖLTÖZZÖN 2026 TAVASZÁN
Új otthon, új kezdet – Kistelekiszőlőben!
Képzeld el, hogy minden reggel madárcsicsergésre ébredsz egy nyugodt, biztonságos utcában, mégis pár perc alatt elérhető a belváros pezsgése.
Nyíregyháza egyik csendes kertvárosi részén, 1000 m²-es telken épülnek modern ikerházak, melyek kialakításuknak köszönhetően tökéletes választás fiatal pároknak és családoknak.
Miért különleges?
családbarát környezet, ahol a gyerekek biztonságban nőhetnek fel
nagy telek, ahol mindig jut hely közös játékra, kertészkedésre vagy egy nyári grillpartira
modern otthon, melyben minden részlet a kényelmet és a harmóniát szolgálja
igényes lakópark közvetlen közelében, nyugodt és rendezett szomszédságban
Műszaki tartalom:
30 cm vastag, korszerű falazat + 15 cm nikecell hőszigetelés
3 rétegű, hőszigetelt műanyag nyílászárók
padlófűtés hőszivattyús rendszerrel
modern, energiatakarékos hőszivattyú
2 db hűtő-fűtő klíma
15 cm-es lépésálló szigetelés a födémen
térkövezett kocsibeálló és járda
garázs elektromos kapu előkészítéssel
riasztó és okosotthon rendszer kiépíthető előkészítéssel
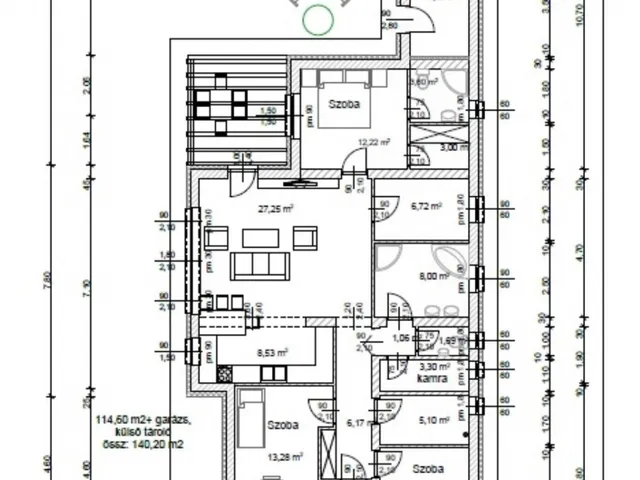
az ingatlanok alapterülete: „A” lakás (utcafronti) br. 119 nm, „B” lakás (hátsó ikerház nagyobb telekkel) 101 nm.
Tervezett átadás: 2026 tavasz
Ez nem csak egy ház – ez az a hely, ahol a közös jövőtöket építitek.
Már most foglalható, ne maradjatok le róla!
Ha Ön is szeretne egy modern, kényelmes otthont, ne habozzon, keressen minket, és tekintse meg ezt a remek lehetőséget! Vevőink számára minden szolgáltatásunk ingyenes és teljeskörű ügyintézést biztosítunk. Szakmailag kiválóan felkészült kollégákkal állunk Ügyfeleink rendelkezésére hogy gördülékeny legyen az ingatlanvásárlás!
Elek Ágnes- ingatlanszakértő, irodavezető +36202785838
Referencia szám: 5362-ZE
Tulajdonságok
Ikerház
Új építésű
Hőszivattyú
2025
A+
Vedd fel a kapcsolatot a hirdetővel
+36 20 278 5
Hitelkalkulátor
Második évtől
309 425 Ft A 13. hónaptól
7,99% 8,49%
Végig fix Futamidő: 20 év Banki visszahívás
Az OTP Bank munkatársai a neked megfelelő napszakban veszik fel veled a kapcsolatot. A becslés a hirdető által megadott adatokon alapul. A jelen tájékoztatás nem minősül ajánlattételnek és nem teljes körű, az egyes feltételek a hitelbírálat eredményétől függően változhatnak. Kérjük, a részletekről tájékozódj az OTP Bank fiókjaiban vagy az OTP Bank honlapján közzétett vonatkozó Üzletszabályzatokból és Hirdetményekből.
Vedd fel a kapcsolatot a hirdetővel
+36 20 278 5
Vedd fel a kapcsolatot a hirdetővel
+36 20 278 5
UI_KIT.CHARACTER_COUNTER__COMPONENT.REMAINING_SPACE__SR_ONLYUI_KIT.CHARACTER_COUNTER__COMPONENT.MAXIMUM_CHARACTER__SR_ONLY
Hasonló eladó ingatlanok Nyíregyházán
Frissítve: 12 napja

16
67 M Ft 536 000 Ft/m²
Eladó családi ház, Nyíregyháza

Frissítve: 12 napja

7
68,5 M Ft 391 423 Ft/m²
Eladó családi ház, Nyíregyháza

Frissítve: 12 napja

16
69,9 M Ft 587 395 Ft/m²
Eladó családi ház, Nyíregyháza


Fedezd fel a
hasonló házakat!Még további házak Nyíregyházán 71,9 M Ft körüli értékben
Tovább a hirdetésekhez Frissítve: 12 napja

5
64,9 M Ft 676 042 Ft/m²
Eladó ikerház, Nyíregyháza

Frissítve: 12 napja

17
77 M Ft 466 667 Ft/m²
Eladó családi ház, Nyíregyháza

Frissítve: 12 napja

20
73,5 M Ft 350 000 Ft/m²
Eladó családi ház, Nyíregyháza, Leffler Sámuel utca


Töltsd fel hirdetésed ingyenesen!
Egyszerű