+5 fotó
Hirdetéskód: 8853477
Referenciaszám: M320215-5125780
Feltöltve: 4 napja
Nyíregyháza eladó ikerház 3 szobás: 89,76 millió Ft
89,76 millió Ft
627 692 Ft/m²
143 m²
550 m²
3 szoba
Eladó Ház, Nyíregyháza
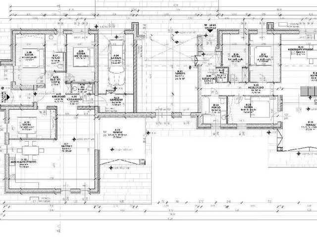
Nyíregyháza csendes, kertvárosi részén kínálunk megvételre egy új építésű, kétlakásos ikerház egyik lakását saját kertkapcsolattal és kocsibeállóval. Az ingatlan összesen 143 négyzetméter alapterületű, amelyből 24 négyzetméter fedett, gépkocsi beálló, valamint 18,7 négyzetméter terasz tartozik hozzá. A lakás 3 szobás kialakítású, kiváló elosztású, világos terekkel rendelkezik, ideális választás családok számára. A telek mérete 550 négyzetméter. Az átadás tervezett időpontja 2026.08 vége.
Az ingatlan magas műszaki tartalommal, korszerű szerkezeti megoldásokkal és energiahatékony technológiával épül, amely hosszú távon alacsony fenntartási költségeket és magas komfortérzetet biztosít. A fűtés korszerű hőszivattyús rendszerrel kerül kialakításra, padlófűtéssel, amely egyenletes hőérzetet és gazdaságos üzemeltetést biztosít. Az épület 30 centiméter vastag Porotherm hőszigetelő téglafalazattal készül, amelyet 15 centiméter vastag grafitos homlokzati hőszigetelés egészít ki. A lakások között magas hanggátlású, 51 decibeles lakáselválasztó fal biztosítja a nyugalmat és az intimitást. A födémszerkezetek és aljzatok hálóvasalt vasbetonból készülnek, többrétegű hő és vízszigeteléssel, a padlóburkolatok alatt lépésálló hőszigeteléssel.
A belső terekben kerámia és laminált padlóburkolatok kerülnek kialakításra, a terasz fagyálló és csúszásmentes burkolattal készül. A tetőszerkezet minőségi fa ácsszerkezettel és betoncserepes fedéssel valósul meg, korszerű hő és páratechnikai rétegrenddel. A kivitelezés során kizárólag jól ismert, prémium minőségű gyártók anyagai kerülnek beépítésre, többek között Baumit, Austrotherm, Mapei és Rockwool termékek, amelyek garantálják az épület tartósságát, megbízhatóságát és hosszú élettartamát.
Az átgondolt tervezés, a kiváló műszaki megoldások és a nyugodt környezet együttesen teszik ezt az ingatlant valódi értékálló otthonná. Ideális választás mindazok számára, akik új építésű, minőségi ingatlant keresnek Nyíregyházán. További információért, részletes műszaki tartalomért vagy megtekintés egyeztetéséhez kérem, keressen bizalommal.
OTP Banki hátterünknek köszönhetően finanszírozási igényekben (pl. Otthon Start Hitelprogram, Babaváró, Falusi CSOK, CSOK Plusz, Lakáshitel, Személyi kölcsön stb.), illetve biztosítások tekintetében is díjmentesen, soron kívüli ügyintézéssel segítem ügyfeleim! Referenciaszám: M320215
Tulajdonságok
Ikerház
Új építésű
Hőszivattyú
2026
Nem adta meg a hirdető
Vedd fel a kapcsolatot a hirdetővel
Konc Richárd OTPip - Nyíregyháza Bocskai utca 18-20 - OTP Ingatlanpont Iroda Az iroda összes hirdetése
+36 70 597 3
Hitelkalkulátor
Második évtől
386 286 Ft A 13. hónaptól
7,99% 8,49%
Végig fix Futamidő: 20 év Banki visszahívás
Az OTP Bank munkatársai a neked megfelelő napszakban veszik fel veled a kapcsolatot. A becslés a hirdető által megadott adatokon alapul. A jelen tájékoztatás nem minősül ajánlattételnek és nem teljes körű, az egyes feltételek a hitelbírálat eredményétől függően változhatnak. Kérjük, a részletekről tájékozódj az OTP Bank fiókjaiban vagy az OTP Bank honlapján közzétett vonatkozó Üzletszabályzatokból és Hirdetményekből.
Vedd fel a kapcsolatot a hirdetővel
Konc Richárd OTPip - Nyíregyháza Bocskai utca 18-20 - OTP Ingatlanpont Iroda Az iroda összes hirdetése
+36 70 597 3
Vedd fel a kapcsolatot a hirdetővel
Konc Richárd OTPip - Nyíregyháza Bocskai utca 18-20 - OTP Ingatlanpont Iroda Az iroda összes hirdetése
+36 70 597 3
UI_KIT.CHARACTER_COUNTER__COMPONENT.REMAINING_SPACE__SR_ONLYUI_KIT.CHARACTER_COUNTER__COMPONENT.MAXIMUM_CHARACTER__SR_ONLY
Hasonló eladó ingatlanok Nyíregyházán
Frissítve: 29 napja
16
90 M Ft 900 000 Ft/m²
Eladó családi ház, Nyíregyháza
Frissítve: 10 napja
14
91,7 M Ft 645 775 Ft/m²
Eladó családi ház, Nyíregyháza
Frissítve: 9 napja
10
90 M Ft 409 091 Ft/m²
Eladó családi ház, Nyíregyháza

Fedezd fel a
hasonló házakat!Még további házak Nyíregyházán 89,76 M Ft körüli értékben
Tovább a hirdetésekhez Frissítve: 1 napja
19
93,3 M Ft 849 727 Ft/m²
Eladó ikerház, Nyíregyháza

Frissítve: 21 napja
12
90 M Ft 529 412 Ft/m²
Eladó családi ház, Nyíregyháza
Frissítve: 10 napja
10
91,7 M Ft 645 775 Ft/m²
Eladó családi ház, Nyíregyháza

