+1 fotó
Hirdetéskód: 8976823
Referenciaszám: 1335911
Feltöltve: ma
Nyíregyháza eladó ikerház 3 szobás: 74,9 millió Ft
74,9 millió Ft
734 314 Ft/m²
102 m²
360 m²
3 szoba
Leírás
Nyíregyháza dinamikusan fejlődő, mégis csendes városrészében, Nyírszőlősön kínálunk megvételre egy korszerű kialakítású, lapos tetős ikerházfelet, amely kiváló lehetőséget kínál akár saját célra, akár hosszú távú befektetésként.
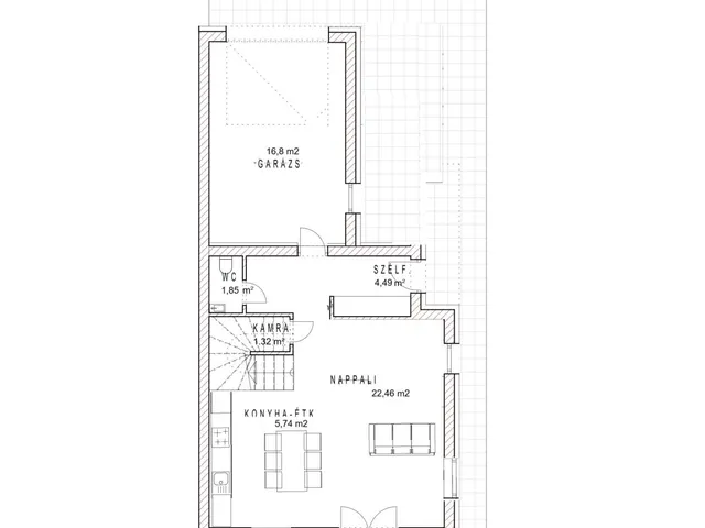
Az ingatlan 101,88 m² hasznos alapterülettel rendelkezik, amely átgondolt térszervezésének köszönhetően maximálisan kihasználható: a tágas nappali–konyha–étkező tér a lakás központi eleme, amely természetes fénnyel árasztott, nyitott légkörével modern életérzést teremt. A három külön nyíló hálószoba rugalmasan alakítható életteret biztosít, legyen szó családról, otthoni munkavégzésről vagy vendégszobáról.
A 14 m²-es terasz közvetlen kertkapcsolattal bővíti az életteret, míg a 360 m²-es saját telekrész ritka előnyt jelent az ikerházi kínálatban, biztosítva a nyugalmat és a szeparáltság érzetét.
A 16,8 m²-es garázs kényelmes parkolást garantál, a külön fürdőszoba, WC és vendég mellékhelyiség pedig a mindennapi használat során is magas komfortszintet biztosít.
A modern építészeti megjelenés, a letisztult vonalvezetés és a praktikus belső kialakítás egy olyan ingatlant eredményez, amely nemcsak esztétikailag időtálló, hanem értékállóság szempontjából is megbízható választás.
Várható átadás: 2026 év vége
Stabil érték, biztos döntés – érdeklődjön most!
Tulajdonságok
Ikerház
Új építésű
2026
Nem adta meg a hirdető
Vedd fel a kapcsolatot a hirdetővel
+36 30 647 1
Hitelkalkulátor
Második évtől
322 335 Ft A 13. hónaptól
7,99% 8,49%
Végig fix Futamidő: 20 év Banki visszahívás
Az OTP Bank munkatársai a neked megfelelő napszakban veszik fel veled a kapcsolatot. A becslés a hirdető által megadott adatokon alapul. A jelen tájékoztatás nem minősül ajánlattételnek és nem teljes körű, az egyes feltételek a hitelbírálat eredményétől függően változhatnak. Kérjük, a részletekről tájékozódj az OTP Bank fiókjaiban vagy az OTP Bank honlapján közzétett vonatkozó Üzletszabályzatokból és Hirdetményekből.
Vedd fel a kapcsolatot a hirdetővel
+36 30 647 1
Vedd fel a kapcsolatot a hirdetővel
+36 30 647 1
UI_KIT.CHARACTER_COUNTER__COMPONENT.ACTUAL_CHARACTER__SR_ONLY UI_KIT.CHARACTER_COUNTER__COMPONENT.MAXIMUM_CHARACTER__SR_ONLY
Hasonló eladó ingatlanok Nyíregyházán
Frissítve: 10 napja
13
80 M Ft 470 588 Ft/m²
Eladó sorház, Nyíregyháza
Frissítve: 5 napja
11
69,9 M Ft 423 636 Ft/m²
Eladó ikerház, Nyíregyháza
Frissítve: 12 napja
16
69,5 M Ft 695 000 Ft/m²
Eladó ikerház, Nyíregyháza


Fedezd fel a
hasonló házakat!Még további házak Nyíregyházán 74,9 M Ft körüli értékben
Tovább a hirdetésekhez Frissítve: 12 napja
20
79 M Ft 564 286 Ft/m²
Eladó családi ház, Nyíregyháza
Frissítve: 11 napja
11
75 M Ft 576 923 Ft/m²
Eladó családi ház, Nyíregyháza
Frissítve: 12 napja
20
76,9 M Ft 480 625 Ft/m²
Eladó ikerház, Nyíregyháza

