+2 fotó
Hirdetéskód: 8778816
Referenciaszám: 42149
Feltöltve: ma
Őrbottyán eladó ikerház 4 szobás: 85,9 millió Ft
85,9 millió Ft
818 095 Ft/m²
105 m²
380 m²
4 szoba
Leírás
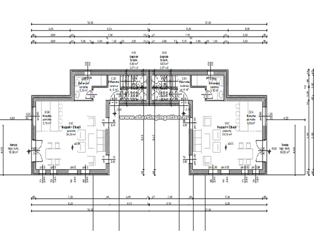
Hivatkozási szám: E-OB-3-237 Azonosító: E-OB-3-237Új építésű, dupla-komfortos ikerház eladó Őrbottyánban, a tó közelében nbsp Őrbottyán kedvelt, zöldövezeti részén, a város hangulatos tava közelében kínálunk eladásra új építésű, modern ikerházat, melyek dupla-komfortos kialakításukkal, igényes kivitelezésükkel és tágas tereikkel kiváló választást jelentenek családok számára. A két lakás kizárólag a belső lépcsőháznál érintkezik, így mindkét otthon biztosítja a teljes intimitást és nyugalmat. nbsp A lakás amerikai konyhás nappalival és három külön nyíló hálószobával rendelkezik. A földszinten tágas, napfényes nappali és étkező, modern konyhai tér, valamint egy zuhanyzós fürdőszoba található, míg az emeleten három hálószoba, egy külön fürdőszoba, gardrób, WC, valamint két hangulatos erkély kapott helyet. A nappalihoz kapcsolódó 16 m²-es terasz kiváló helyszíne lehet a pihenésnek és a közös családi programoknak. nbsp A lakás kulcsrakész állapotban kerül átadásra (konyhabútor nélkül), a burkolatok és szaniterek pedig a műszaki tartalomban megjelölt értékhatárig szabadon választhatók, így mindenki saját ízlése szerint alakíthatja ki új otthonát. nbsp Az épület 30 cm-es Porotherm téglából, 15 cm homlokzati hőszigeteléssel épül, betoncserép tetőfedéssel és háromrétegű hőszigetelt nyílászárókkal. A modern hőszivattyús fűtésrendszer és a teljes lakótérben kiépített padlófűtés gondoskodik az energiahatékonyságról és az alacsony rezsiről. nbsp A 380 m²-es saját telekrész biztosítja a kényelmes udvari parkolást és a kert nyújtotta lehetőségeket. nbsp Őrbottyán a Budapesttől mindössze 25 km-re található, gyorsan fejlődő, nyugodt, családbarát város, ahol a természetközeli környezet és a modern infrastruktúra harmonikusan találkozik. A település vasúttal és autóval is könnyen megközelíthető, a M2-es autóút és a Veresegyház–Vác vonal közelsége miatt ideális választás azok számára, akik a főváros közelében, de mégis csendes, zöld környezetben szeretnének élni. nbsp A városban minden megtalálható, ami a mindennapi élethez szükséges: óvodák, iskolák, orvosi rendelők, boltok, éttermek, sportolási lehetőségek, valamint a híres Őrbottyáni-tó, amely kiváló helyszín a pihenésre és kikapcsolódásra. A település közösségi élete aktív, a környék biztonságos és barátságos, így ideális otthon családosok számára. nbsp Az ingatlanra a 2024-től elérhető állami támogatások és kedvezményes hitelek – mint a CSOK Plusz, a 3 -os Otthon Start hitel, valamint a Babaváró támogatás – igénybe vehetők. nbsp Azon kedves ügyfelek, akik általunk találják meg leendő otthonukat, az ügyvédünk által szerkesztett adásvételi szerződés díjából kedvezményben részesülnek. Eladná ingatlanát? Bízza ránk! Nálunk az értékesítés átlátható, egyszerű és biztonságos folyamat. A vételt és az eladást egy kézben tartjuk - így Önnek csak a sikeres üzletet kell ünnepelnie. Hívjon minket még ma, és ingyenesen felmérjük ingatlana piaci értékét! Miért válasszon minket? Mert: Gyors értékesítés, Széles vevőkör, Tapasztalt értékesítők, Modern, kiemelt online megjelenés, Rugalmas jutalék, Teljes körű ügyintézés az első lépéstől a birtokbaadásig. Hívjon most, vagy Írjon üzenetet még ma, és indítsuk el az értékesítést! Mobil: +36-20-852-8402 További ajánlataim: startingingatlan.hu/ertekesitoink/283
Tulajdonságok
Ikerház
Új építésű
Nem adta meg a hirdető
Vedd fel a kapcsolatot a hirdetővel
+36 20 852 8
Hitelkalkulátor
Második évtől
369 674 Ft A 13. hónaptól
7,99% 8,49%
Végig fix Futamidő: 20 év Banki visszahívás
Az OTP Bank munkatársai a neked megfelelő napszakban veszik fel veled a kapcsolatot. A becslés a hirdető által megadott adatokon alapul. A jelen tájékoztatás nem minősül ajánlattételnek és nem teljes körű, az egyes feltételek a hitelbírálat eredményétől függően változhatnak. Kérjük, a részletekről tájékozódj az OTP Bank fiókjaiban vagy az OTP Bank honlapján közzétett vonatkozó Üzletszabályzatokból és Hirdetményekből.
Vedd fel a kapcsolatot a hirdetővel
+36 20 852 8
Vedd fel a kapcsolatot a hirdetővel
+36 20 852 8
UI_KIT.CHARACTER_COUNTER__COMPONENT.REMAINING_SPACE__SR_ONLYUI_KIT.CHARACTER_COUNTER__COMPONENT.MAXIMUM_CHARACTER__SR_ONLY
Hasonló eladó ingatlanok Őrbottyánban
Frissítve: 15 napja
4
Green Hill lakópark - új építésű házak Őrbottyánban II.ütem
90,75 M Ft 1 074 346 Ft/m²
Eladó ikerház, Őrbottyán, Kálvária utca

Frissítve: 15 napja
8
84,9 M Ft 719 492 Ft/m²
Eladó ikerház, Őrbottyán

Frissítve: 14 napja
3
83,5 M Ft 769 586 Ft/m²
Eladó ikerház, Őrbottyán


Fedezd fel a
hasonló házakat!Még további házak Őrbottyánban 85,9 M Ft körüli értékben
Tovább a hirdetésekhez Frissítve: 14 napja
5
89,5 M Ft 836 449 Ft/m²
Eladó ikerház, Őrbottyán

Frissítve: 14 napja
3
79,8 M Ft 735 484 Ft/m²
Eladó ikerház, Őrbottyán

Frissítve: 14 napja
3
83,5 M Ft 769 586 Ft/m²
Eladó ikerház, Őrbottyán


Töltsd fel hirdetésed ingyenesen!
Egyszerű