+17 fotó
Hirdetéskód: 8892506
Referenciaszám: M322555-5150471
Frissítve: ma
Páty eladó ikerház 2+2 fél szobás: 90 millió Ft
90 millió Ft
782 609 Ft/m²
115 m²
376 m²
2+2 fél szoba
Eladó Ház, Páty
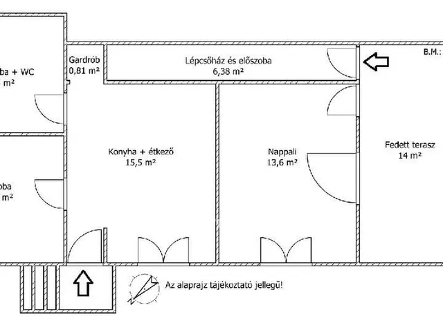
Eladó tégla építésű 115 négyzetméter hasznos alapterületű ikerházfél Pátyon jó környéken. Jelenleg a földszinten egy hálószoba van és az emeleten kettő hálószoba került kialakításra így családosoknak illetve több generáció összeköltözése esetén kifejezetten ajánlom. Mindkét emeleten van fürdőszoba és konyha is, a földszinti konyha teljesen gépesített. Fűtése gázkazánnal történik radiátoros hőleadással, a fűtés 13000 forint/hó éves átalánnyal. Meleg vizet B-tarifás bojler készít. A két szint most külön bejáratú de nagyon egyszerűen összenyitható úgy már akár az államilag támogatott programoknak is megfelelhet. Az ingatlan osztatlan közös tulajdon ami ügyvéd által ellenjegyzett használati megosztási szerződéssel rendelkezik, minden mérőóra egyedi. Az épület alatt 52 négyzetméteres külön bejárató pince található ahol a gépészet és egy kis műhely kapott helyet. A díszkertet a fedett teraszról egész évben élvezhetjük, a gondosan kiválasztott fajtáknak köszönhetően ápolása egyszerű. Jöjjön el és tekintse meg ezt a remek lehetőséget! Amennyiben felkeltettem érdeklődését, hívjon bizalommal! Kérdéseire az esti órákban és hétvégén is szívesen válaszolok! Ha az új ingatlana megvásárlásához a jelenlegi ingatlanát el kell adnia, abban is szívesen segítünk.
Az OTP Ingatlanpont, mint egyetlen közvetlen banki hátterű ingatlanközvetítő társaság teljes körű ügyintézéssel áll az eladók és a vevők rendelkezésére! A kínálatunkból választott ingatlan finanszírozásához minősített fogyasztóbarát, piaci és kedvezményes hitel- és lízingkonstrukciókat kínálunk (lakásvásárlási hitel, szabad felhasználású hitel, babaváró hitel, CSOK Plusz-intézés, Otthonfelújítási Támogatás, egyéb felújítási hitelek). Az adásvételi szerződés megkötéséhez igény szerint megbízható ügyvédi közreműködést biztosítunk, és segítséget nyújtunk az adásvételhez kapcsolódó egyéb ügyek intézéséhez.
Tulajdonságok
Ikerház
Jó állapotú
Gázkazán
1990
Nem adta meg a hirdető
Vedd fel a kapcsolatot a hirdetővel
Terjék Nikolett Erzsébet OTPip - Dunaharaszti Bocskai utca 10 - OTP Ingatlanpont Iroda Az iroda összes hirdetése
+36 70 941 9
Hitelkalkulátor
Második évtől
387 319 Ft A 13. hónaptól
7,99%
Végig fix Futamidő: 20 év Banki visszahívás
Az OTP Bank munkatársai a neked megfelelő napszakban veszik fel veled a kapcsolatot. A becslés a hirdető által megadott adatokon alapul. A jelen tájékoztatás nem minősül ajánlattételnek és nem teljes körű, az egyes feltételek a hitelbírálat eredményétől függően változhatnak. Kérjük, a részletekről tájékozódj az OTP Bank fiókjaiban vagy az OTP Bank honlapján közzétett vonatkozó Üzletszabályzatokból és Hirdetményekből.
Vedd fel a kapcsolatot a hirdetővel
Terjék Nikolett Erzsébet OTPip - Dunaharaszti Bocskai utca 10 - OTP Ingatlanpont Iroda Az iroda összes hirdetése
+36 70 941 9
Vedd fel a kapcsolatot a hirdetővel
Terjék Nikolett Erzsébet OTPip - Dunaharaszti Bocskai utca 10 - OTP Ingatlanpont Iroda Az iroda összes hirdetése
+36 70 941 9
UI_KIT.CHARACTER_COUNTER__COMPONENT.ACTUAL_CHARACTER__SR_ONLY UI_KIT.CHARACTER_COUNTER__COMPONENT.MAXIMUM_CHARACTER__SR_ONLY
Hasonló eladó ingatlanok Pátyon
Frissítve: ma
20
84,9 M Ft 249 706 Ft/m²
Eladó családi ház, Páty

Frissítve: ma
20
84,9 M Ft 345 122 Ft/m²
Eladó családi ház, Páty

Frissítve: ma
20
84,9 M Ft 345 122 Ft/m²
Eladó családi ház, Páty


Fedezd fel a
hasonló házakat!Még további házak Pest megyében 90 M Ft körüli értékben
Tovább a hirdetésekhez Frissítve: ma
20
84,9 M Ft 345 122 Ft/m²
Eladó családi ház, Páty

Frissítve: 1 hónapja
1
99 M Ft 485 294 Ft/m²
Eladó családi ház, Páty
Frissítve: ma
20
84,9 M Ft 345 122 Ft/m²
Eladó családi ház, Páty

