+1 fotó
Hirdetéskód: 8843995
Referenciaszám: HZ098777-5116153
Frissítve: 1 napja
Pilis eladó ikerház 3 szobás: 64,5 millió Ft
64,5 millió Ft
883 562 Ft/m²
73 m²
400 m²
3 szoba
Eladó ház, Pilis
ELADÓ ÚJ ÉPÍTÉSŰ 3 szobás 74 m2-es IKERHÁZ Pilisen.
OTTHON START HITEL IGÉNYELHETŐ!
PILIS LEGJOBB KIVITELEZŐJÉTŐL, ÁLMODD MEG TE IS SAJÁT OTTHONOD!
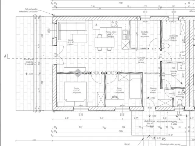
Alapterület 74 m2
Terasz: 23,33 m2
Telek területe: 400 m2
Választható hideg és meleg burkolatok 700.000 Ft-ig teljes rétegrendben. Dekorfóliás ajtók 60.000 Ft-ig választhatók.
Szaniterek: 250.000 Ft-ig
Kialakítása: 2 szoba, tágas amerikai nappali konyha, háztartási helyiség, előtér, közlekedő, fürdőszoba, külön wc, gardrób, nyitott terasz.
Több referenciamunka megtekinthető, minőségi munkák, több éves közös együttműködés.
Teljes műszaki tartalom a helyszínen megtekinthető.
EXTRA:
-Barna színű betoncserép fedés, barna színű alumínium ereszcsatorna.
-7x3 as térkő kocsibeálló( füst antracit) az árban
-utcafronti kerítés és az elektromos kapu az árban
Fűtést és a meleg vizet: 8,5 kw-os 1 fázisú hőszivattyú adja, padlófűtés mindenhol. 3,5 kw-os inverteres klíma az árban.
Műszaki paraméterek:
30 cm-es ytong teherhordó fal, 10 cm-es viablokk válaszfalak, 6 cm Eps homlokzati szigetelés.
3 réteg műanyag fehér nyílászárók, több ponton záródó bejárati ajtó.
Hőszigetelés:
A padlóban 6 cm lépésálló EPS szigetelés készül a csatolt rétegrendek szerint. A pórusbeton falazat külső oldalán 6 cm EPS hőszigetelés kerül elhelyezésre, a vasbeton koszorúk előtt további 10 cm kiegészítő hőszigetelés elhelyezése szükséges, 30 cm fújt hőszigetelés a mennyezetre.
Homlokzatképzés:
Az épület homlokzati felületképzése törtfehér színű kapart nemesvakolat. A lábazat sötétbarna színű lábazati festék. Az épülettömeg megjelenése illeszkedik az utcaképbe, a színek és megjelenés megválasztásakor figyelembe lettek véve a hatályos helyi településképi rendelet előírásai.
Budapest távolsága M4-es autópályán 25 perc, Vonattal 40 perc.
CSOK plusz kedvezményes hitel igénybe vehető.Amennyiben felkeltettem érdeklődését, várom megtisztelő hívását.
Ügyvédi közreműködés és hitelügyintézés egy helyen.
Érd: Giczi Andrea Tel: 06-20-917-8625 E-mail: giczi.andrea@dh.hu
Referencia szám: HZ098777
Tulajdonságok
Ikerház
Új építésű
Hőszivattyú
2026
Nem adta meg a hirdető
Vedd fel a kapcsolatot a hirdetővel
+36 29 769 7
Hitelkalkulátor
Második évtől
277 579 Ft A 13. hónaptól
7,99% 8,49%
Végig fix Futamidő: 20 év Banki visszahívás
Az OTP Bank munkatársai a neked megfelelő napszakban veszik fel veled a kapcsolatot. A becslés a hirdető által megadott adatokon alapul. A jelen tájékoztatás nem minősül ajánlattételnek és nem teljes körű, az egyes feltételek a hitelbírálat eredményétől függően változhatnak. Kérjük, a részletekről tájékozódj az OTP Bank fiókjaiban vagy az OTP Bank honlapján közzétett vonatkozó Üzletszabályzatokból és Hirdetményekből.
Vedd fel a kapcsolatot a hirdetővel
+36 29 769 7
Vedd fel a kapcsolatot a hirdetővel
+36 29 769 7
UI_KIT.CHARACTER_COUNTER__COMPONENT.ACTUAL_CHARACTER__SR_ONLY UI_KIT.CHARACTER_COUNTER__COMPONENT.MAXIMUM_CHARACTER__SR_ONLY
Hasonló eladó ingatlanok Pilisben
Frissítve: 5 napja
6
66,63 M Ft 650 000 Ft/m²
Eladó ikerház, Pilis

Frissítve: 5 napja
13
68 M Ft 442 420 Ft/m²
Eladó családi ház, Pilis, Toldi Miklós utca

Frissítve: 7 napja
13
64 M Ft 646 465 Ft/m²
Eladó családi ház, Pilis

Fedezd fel a
hasonló házakat!Még további házak Pilisben 64,5 M Ft körüli értékben
Tovább a hirdetésekhez Frissítve: ma
6
66,63 M Ft 659 653 Ft/m²
Eladó ikerház, Pilis

Frissítve: ma
6
66,63 M Ft 653 186 Ft/m²
Eladó ikerház, Pilis

Frissítve: 5 napja
20
59,9 M Ft 329 121 Ft/m²
Eladó házrész, Pilis

