+3 fotó
Hirdetéskód: 8961007
Referenciaszám: HZ057682-5195364
Frissítve: ma
Pilis eladó ikerház 4 szobás: 68 millió Ft
68 millió Ft
755,6 ezer Ft/m²
90 m²
494 m²
4 szoba
Eladó ház, Pilis
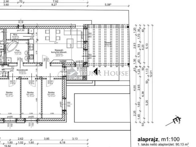
Pilisen eladó egy új építésű, 4 szobás ikerház, mely 90 m2-es alapterületével és kiváló elosztásával ideális otthon családok számára.
Az ingatlanban három tágas hálószoba, egy nagy nappali-konyha-étkező egyben, fürdőszoba, külön WC, kamra, valamint egy 27 m2-es fedett terasz található, ahol kellemesen eltöltheti szabadidejét.
A 494 m2-es telken egy különálló épület is helyet kapott, amely lakhatásra vagy akár irodai célra is alkalmas.
A ház fűtését korszerű hőszivattyú biztosítja, továbbá klímaberendezéssel felszerelt. A belső burkolatok még választhatók, így Ön alakíthatja ízlése szerint az otthonát.
Az ingatlan várható átadása 2 hónapon belül megtörténik.
A környék csendes és családbarát, iskola, óvoda, valamint üzletek csupán pár perc sétára találhatók. Az M4-es autópálya és a 4-es főút könnyen, 3 perc alatt elérhető, Budapest pedig mindössze 25 perc autóútra van.
Amennyiben felkeltette érdeklődését, kérem, keressen bizalommal!
Az energetikai tanúsítvány készítése folyamatban van, amint rendelkezésre áll, úgy azzal a hirdetés frissítésre kerül.
Turcsanyi Istvan +36302633889
Tulajdonságok
Ikerház
Új építésű
Hőszivattyú
2025
Nem adta meg a hirdető
Vedd fel a kapcsolatot a hirdetővel

+36 1 690 10
Hitelkalkulátor
Második évtől
292 641 Ft A 13. hónaptól
7,99% 8,49%
Végig fix Futamidő: 20 év Banki visszahívás
Az OTP Bank munkatársai a neked megfelelő napszakban veszik fel veled a kapcsolatot. A becslés a hirdető által megadott adatokon alapul. A jelen tájékoztatás nem minősül ajánlattételnek és nem teljes körű, az egyes feltételek a hitelbírálat eredményétől függően változhatnak. Kérjük, a részletekről tájékozódj az OTP Bank fiókjaiban vagy az OTP Bank honlapján közzétett vonatkozó Üzletszabályzatokból és Hirdetményekből.
Vedd fel a kapcsolatot a hirdetővel

+36 1 690 10
Vedd fel a kapcsolatot a hirdetővel

+36 1 690 10
UI_KIT.CHARACTER_COUNTER__COMPONENT.ACTUAL_CHARACTER__SR_ONLY UI_KIT.CHARACTER_COUNTER__COMPONENT.MAXIMUM_CHARACTER__SR_ONLY
Hasonló eladó ingatlanok Pilisben
Frissítve: 14 napja
20
70 millió Ft 486,1 ezer Ft/m²
Eladó családi ház, Pilis

Frissítve: 11 napja
20
70 millió Ft 486,1 ezer Ft/m²
Eladó családi ház, Pilis

Frissítve: 2 napja
20
68 millió Ft 478,9 ezer Ft/m²
Eladó családi ház, Pilis


Fedezd fel a
hasonló házakat!Még további házak Pilisben 68 M Ft körüli értékben
Tovább a hirdetésekhez Frissítve: 1 hónapja
6
66,33 millió Ft 850,4 ezer Ft/m²
Eladó ikerház, Pilis

Feltöltve: ma
13
68 millió Ft 444,4 ezer Ft/m²
Eladó családi ház, Pilis

Frissítve: 2 napja
13
68 millió Ft 442,4 ezer Ft/m²
Eladó családi ház, Pilis, Toldi Miklós utca

