+3 fotó
Hirdetéskód: 8582147
Referenciaszám: 360051015-886
Frissítve: 5 napja
Pilisborosjenő eladó ikerház 4 szobás: 124,9 millió Ft
124,9 millió Ft
1 115 179 Ft/m²
112 m²
240 m²
4 szoba
ELADÓ IKERHÁZ ÜRÖM PILISBOROSJENŐ ÚJÉPÍTÉSŰ KULCSRAKÉSZ
GARÁZSOS -Eladó Újépítésű ikerház Üröm mellett Pilisborosjenő kedvelt részén – KIZÁRÓLAG A CSALÁDI INGATLAN gazdag kínálatában!
3% HITEL FELVEHETŐ!
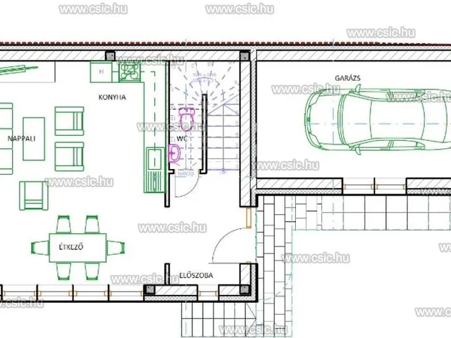
Eladó egy ÚJÉPÍTÉSŰ 108 m2 lakóterületű, nappali+3 szobás, ÚJÉPÍTÉSŰ ikerHÁZ Üröm mellett, Pilisborosjenőn, 240 m2-es telek területtel és garázzsal, kulcsrakész állapotban. A jól átgondolt alaprajzi elrendezésnek köszönhetően világos nagy terek alakulnak ki és mindennek megtaláljuk a helyét!
Pilisborosjenő csendes családiházas kedvelt részén, a Kevély lábánál épülő ikerház minden korosztály részére tökéletes választás.
Az eladó Újépítésű ikerház Pilisborosjenő főbb jellemzői:
• kiváló műszaki-és energetikai paraméterek
• 30cm téglafalazat+ 15 cm külső szigetelés
• Hőszivattyús padlófűtés és használati melegvíz előállítás
• minden szobában hűtő-fűtő klíma
• 25 cm tető hőszigetelés, cserépfedés
• műanyag kívül-belül színezett ablakok, 3 rétegű üvegezéssel, redőny előkészítéssel
• biztonsági bejárati ajtó
• választható burkolatok és szaniterek
• választható belső ajtók
• riasztó becsövezése
• minden szobában kábel a tv-nek és internetnek
• „H” tarifa előkészítés
• napelemrendszer előkészítés
• 20m2 es garázs automata kapuval
• redőnyelőkészítés
• járda és kerítés
• kerti csap, durva tereprendezés + 20 cm kertészeti talajfeltöltés
• kulcsrakész átadás
• 2026. II. negyedév
Jelenleg is zajló referenciaépítkezések megtekinthetők!
Az eladó Újépítésű ikerház Pilisborosjenő környezete:
• zöld környezet
• aszfaltos út
• minden közmű
• CSEND
Az eladó Újépítésű ikerház Pilisborosjenő további fontos előnyei:
• megbízható kivitelező, számos referenciával
Hitelügyintézésben független kollégánk tud segítséget nyújtani.
Tulajdonságok
Ikerház
2
Új építésű
Nem adta meg a hirdető
Vedd fel a kapcsolatot a hirdetővel
+36 20 272 9
Hitelkalkulátor
Második évtől
537 513 Ft A 13. hónaptól
7,99% 8,49%
Végig fix Futamidő: 20 év Banki visszahívás
Az OTP Bank munkatársai a neked megfelelő napszakban veszik fel veled a kapcsolatot. A becslés a hirdető által megadott adatokon alapul. A jelen tájékoztatás nem minősül ajánlattételnek és nem teljes körű, az egyes feltételek a hitelbírálat eredményétől függően változhatnak. Kérjük, a részletekről tájékozódj az OTP Bank fiókjaiban vagy az OTP Bank honlapján közzétett vonatkozó Üzletszabályzatokból és Hirdetményekből.
Vedd fel a kapcsolatot a hirdetővel
+36 20 272 9
Vedd fel a kapcsolatot a hirdetővel
+36 20 272 9
UI_KIT.CHARACTER_COUNTER__COMPONENT.REMAINING_SPACE__SR_ONLYUI_KIT.CHARACTER_COUNTER__COMPONENT.MAXIMUM_CHARACTER__SR_ONLY
Hasonló eladó ingatlanok Pilisborosjenőn
Frissítve: 28 napja
8
120 M Ft 1 100 917 Ft/m²
Eladó családi ház, Pilisborosjenő

Frissítve: 1 hónapja
1
129,9 M Ft 562 338 Ft/m²
Eladó családi ház, Pilisborosjenő, Tücsök utca
Feltöltve: 8 hónapja
1
125 M Ft 657 895 Ft/m²
Eladó családi ház, Pilisborosjenő

Fedezd fel a
hasonló házakat!Még további házak Pest megyében 124,9 M Ft körüli értékben
Tovább a hirdetésekhez Frissítve: 18 napja
20
119,99 M Ft 576 875 Ft/m²
Eladó családi ház, Pilisborosjenő
Frissítve: 29 napja
20
129,9 M Ft 562 338 Ft/m²
Eladó családi ház, Pilisborosjenő, Tücsök utca

Frissítve: 5 napja
16
130 M Ft 562 771 Ft/m²
Eladó családi ház, Pilisborosjenő

Töltsd fel hirdetésed ingyenesen!
Egyszerű