+17 fotó
Hirdetéskód: 8867300
Referenciaszám: M320362-5134133
Feltöltve: ma
Piliscsaba eladó ikerház 4 szobás: 135 millió Ft
135 millió Ft
695 876 Ft/m²
194 m²
522 m²
4 szoba
Eladó Ház, Piliscsaba
PILISCSABA EGYIK LEGKEDVELTEBB RÉSZÉN, CSABAGYÖNGYÉN, A TERMÉSZETVÉDELMI ÖVEZET KÖZVETLEN HATÁRÁN KÍNÁLUNK MEGVÉTELRE EGY NAPFÉNYES, KÖRPANORÁMÁS, 2003-BAN ÉPÜLT IKERHÁZ EGYIK FELÉT.
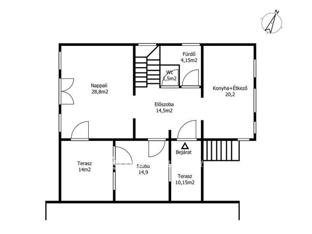
Az ingatlan nappali + 3 szobás kialakítású, mediterrán stílusban épült, egy 566 m?-es telken helyezkedik el.
A ház lakóterülete 133 m?, ehhez tartozik egy 36 m?-es, kétállásos fűthető garázs, valamint összesen 38 m? terasz.
A bejárati szinten előszoba, tágas nappali, konyha?étkező, egy hálószoba, fürdőszoba és külön WC található. A nappaliból és a hálószobából nyíló teraszról, valamint a konyhából is lenyűgöző kilátás nyílik a pilisi tájra.
Az alsó szinten két hálószoba, kádas fürdőszoba, háztartási helyiség, valamint a két autó befogadására alkalmas, fűthető garázs kapott helyet. Erről a szintről közvetlen kijárat nyílik a nagy fedett teraszra és a szépen parkosított kertbe.
A ház fűtését és melegvíz-ellátását cirkó kazán biztosítja, a nappaliban klíma gondoskodik a komfortérzetről.
A gondos tulajdonosnak köszönhetően az ingatlan újszerű állapotú, a konyhabútort és a beépített gépeket néhány éve cserélték.
További információért és megtekintés egyeztetéséhez várom hívását ? akár hétvégén is!
Az OTP Bankcsoport teljes körű ügyintézéssel áll az eladók és a vevők rendelkezésére! A kínálatunkból választott ingatlan finanszírozásához kedvezményes hitelkonstrukciókat kínálunk.
Referencia szám: M320362
Tulajdonságok
Ikerház
Jó állapotú
Gázkazán
2003
D
Vedd fel a kapcsolatot a hirdetővel
Ágoston Bernadett OTPip - Budapest III. kerület Lajos utca 74-76 - OTP Ingatlanpont Iroda Az iroda összes hirdetése
+36 30 932 3
Hitelkalkulátor
Második évtől
580 978 Ft A 13. hónaptól
7,99%
Végig fix Futamidő: 20 év Banki visszahívás
Az OTP Bank munkatársai a neked megfelelő napszakban veszik fel veled a kapcsolatot. A becslés a hirdető által megadott adatokon alapul. A jelen tájékoztatás nem minősül ajánlattételnek és nem teljes körű, az egyes feltételek a hitelbírálat eredményétől függően változhatnak. Kérjük, a részletekről tájékozódj az OTP Bank fiókjaiban vagy az OTP Bank honlapján közzétett vonatkozó Üzletszabályzatokból és Hirdetményekből.
Vedd fel a kapcsolatot a hirdetővel
Ágoston Bernadett OTPip - Budapest III. kerület Lajos utca 74-76 - OTP Ingatlanpont Iroda Az iroda összes hirdetése
+36 30 932 3
Vedd fel a kapcsolatot a hirdetővel
Ágoston Bernadett OTPip - Budapest III. kerület Lajos utca 74-76 - OTP Ingatlanpont Iroda Az iroda összes hirdetése
+36 30 932 3
UI_KIT.CHARACTER_COUNTER__COMPONENT.REMAINING_SPACE__SR_ONLYUI_KIT.CHARACTER_COUNTER__COMPONENT.MAXIMUM_CHARACTER__SR_ONLY
Hasonló eladó ingatlanok Csabagyöngye városrészben
Frissítve: 2 napja
20
135 M Ft 695 877 Ft/m²
Eladó ikerház, Piliscsaba, Csabagyöngye

Frissítve: 8 napja
18
144,9 M Ft 787 500 Ft/m²
Eladó családi ház, Piliscsaba

Frissítve: 3 napja
17
144,9 M Ft 787 500 Ft/m²
Eladó családi ház, Piliscsaba


Fedezd fel a
hasonló házakat!Még további házak Piliscsabán 135 M Ft körüli értékben
Tovább a hirdetésekhez Frissítve: 2 napja
20
139 M Ft 992 857 Ft/m²
Eladó családi ház, Piliscsaba

Frissítve: 10 hónapja
1
125 M Ft 954 198 Ft/m²
Eladó sorház, Piliscsaba, Fényesliget
Frissítve: 27 napja
19
124,9 M Ft 811 039 Ft/m²
Eladó családi ház, Piliscsaba, Klotildliget

