+17 fotó
Hirdetéskód: 8923898
Referenciaszám: M320362-5168886
Frissítve: ma
Piliscsaba eladó ikerház 4 szobás: 135 millió Ft
135 millió Ft
695 876 Ft/m²
194 m²
522 m²
4 szoba
Eladó Ház, Piliscsaba
ÚJSZERŰ IKERHÁZ, SZÉP TERMÉSZETI KÖRNYZETBEN, PANORÁMÁVAL - PILISCSABÁN
Kizárólag nálunk! Piliscsaba egyik legkedveltebb részén, Csabagyöngyén eladó egy 2003-ban épült, mediterrán stílusú, kitűnő állapotú ikerház egyik fele, amely kétszintes, nappali + 3 szobás és összesen133 nm lakóterületű. Az alsó szinten hozzá tartozik egy 36 nm-es, kétállásos fűthető garázs, valamint összesen 38 nm terasz is.
Az ikerház egy délkeleti tájolású, szépen parkosított, 522 nm-es telken helyezkedik el.
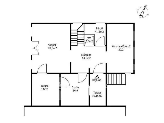
A bejárati szinten előszoba, tágas nappali, konyha, étkező, egy hálószoba, fürdőszoba és külön WC található. A nappaliból, hálószobából nyíló teraszról, valamint a konyhából is lenyűgöző kilátás nyílik a Pilis tájaira.
Az alsó szinten két hálószoba, fürdőszoba, háztartási helyiség, valamint a két gépkocsi befogadására alkalmas garázs kapott helyet. Erről a szintről közvetlen kijárat nyílik a nagy, fedett teraszra és a kertbe.
A ház fűtését és melegvíz-ellátását cirkó kazán biztosítja, a nappaliban pedig klíma gondoskodik a megfelelő komfortérzetről.
A gondos tulajdonosnak köszönhetően az ingatlan állapota újszerű, a konyhabútort és a beépített gépeket pedig néhány éve cserélték.
Az ingatlan a fix 3%-os Otthon Start Hitelprogramra alkalmas. Megvásárlásához, vevői igény és alkalmasság esetén, az OTP Bank kedvezményes hitellehetőségét is biztosítani tudjuk.
További információkért és megtekintéssel kapcsolatban keressen bizalommal a hét bármely napján, akár hétvégén is.
Tulajdonságok
Ikerház
Jó állapotú
Gázkazán
2003
D
Vedd fel a kapcsolatot a hirdetővel
Molnár Tamás OTPip - Budapest XI. kerület Bartók Béla út 62 - OTP Ingatlanpont Iroda Az iroda összes hirdetése
+36 30 966 8
Hitelkalkulátor
Második évtől
580 978 Ft A 13. hónaptól
7,99%
Végig fix Futamidő: 20 év Banki visszahívás
Az OTP Bank munkatársai a neked megfelelő napszakban veszik fel veled a kapcsolatot. A becslés a hirdető által megadott adatokon alapul. A jelen tájékoztatás nem minősül ajánlattételnek és nem teljes körű, az egyes feltételek a hitelbírálat eredményétől függően változhatnak. Kérjük, a részletekről tájékozódj az OTP Bank fiókjaiban vagy az OTP Bank honlapján közzétett vonatkozó Üzletszabályzatokból és Hirdetményekből.
Vedd fel a kapcsolatot a hirdetővel
Molnár Tamás OTPip - Budapest XI. kerület Bartók Béla út 62 - OTP Ingatlanpont Iroda Az iroda összes hirdetése
+36 30 966 8
Vedd fel a kapcsolatot a hirdetővel
Molnár Tamás OTPip - Budapest XI. kerület Bartók Béla út 62 - OTP Ingatlanpont Iroda Az iroda összes hirdetése
+36 30 966 8
UI_KIT.CHARACTER_COUNTER__COMPONENT.ACTUAL_CHARACTER__SR_ONLY UI_KIT.CHARACTER_COUNTER__COMPONENT.MAXIMUM_CHARACTER__SR_ONLY
Hasonló eladó ingatlanok Piliscsabán
Frissítve: 10 napja
20
139 M Ft 992 857 Ft/m²
Eladó családi ház, Piliscsaba

Frissítve: 10 napja
20
134,9 M Ft 299 778 Ft/m²
Eladó családi ház, Piliscsaba
Frissítve: 6 hónapja
1
145 M Ft 966 667 Ft/m²
Eladó családi ház, Piliscsaba

Fedezd fel a
hasonló házakat!Még további házak Piliscsabán 135 M Ft körüli értékben
Tovább a hirdetésekhez Frissítve: 10 napja
15
135 M Ft 597 345 Ft/m²
Eladó családi ház, Piliscsaba

Frissítve: ma
15
135 M Ft 597 345 Ft/m²
Eladó családi ház, Piliscsaba

Frissítve: 10 napja
15
135 M Ft 597 345 Ft/m²
Eladó családi ház, Piliscsaba


