+3 fotó
Hirdetéskód: 8900169
Frissítve: 1 hónapja
Sárkeresztes eladó ikerház 4 szobás: 122 millió Ft
122 millió Ft
1 millió Ft/m²
122 m²
550 m²
4 szoba
Új építésű otthon Fehérvár kapujában
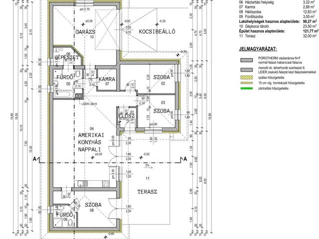
Székesfehérvár közkedvelt agglomerációjában, Sárkeresztesen kínáljuk megvételre ezt az új építésű, 3 szoba + nappalis, kiváló elrendezésű ikerházat.
Az 1168 m²-es telken épülő két otthon különálló családi házként valósul meg, saját kerttel és privát bejárattal. A tágas szobák, a napfényes nappali, a két fürdőszoba, a házból közvetlenül elérhető garázs, valamint a kamra és a mosókonyha kényelmes életteret biztosít a család minden tagja számára. A nappaliból nyíló nagy terasz és a mintegy 400 m²-es, kizárólagos használatú kert ideális helyszín pihenéshez, közös programokhoz.
Csendes, kertvárosias környezetben, Székesfehérvár könnyű elérhetőségével teremt stabil, hosszú távon is értékálló otthont.
Szerkezeti jellemzők:
- 30-as Porotherm tégla falazat
- 10-es Porotherm válaszfalak
- hőszigetelt, 3 rétegű, műanyag nyílászárók, redőnyökkel (kívül antracit, belül fehér színben)
- nyíló-bukó nyílászárók (fehér színben)
- belül műanyag, kívül fémlemez ablakpárkányok
- fenyőfa beltéri ajtók
- minőségi, kezelt fa tetőszerkezet antracit színű, Bramac cserép fedéssel
- tetőcseréphez színben illő ereszcsatorna (eloxált alumínium), föld feletti vízelvezetéssel
- vajszínű, világos Dryvit homlokzati vakolat
Szigetelés:
- 15 cm-es homlokzati hőszigetelés
- 10 cm-es vízálló lábazat szigetelés
- 30 cm-es lépésálló szigetelés a padlózatban
Gépészet:
- Bosch kondenzációs gázkazán által üzemeltetett padlófűtés
- 1 db hűtő-fűtő klíma
- 3 x 20 A túlfeszültség elleni védelemmel, életvédelmi fi-relével
- Schneider kapcsolók és konnektorok bézs színben
Kulcsrakész vételár tartalmazza:
- választható hidegburkolatok 5 000 Ft/nm árig
- választható meleg burkolatok 5 000 Ft/nm árig
- 1 db garázs, előtte térkövezett kocsibeálló
- bejárati ajtó
- riasztórendszer fogadásának kiépítése
- spot világítás kiépítése
- antracit színű, részben automatizált redőnyök
Kulcsrakész átadás a szerződéskötéstől számított 12 hónap.
Sárkeresztes kedvelt, rendezett településén bolt, bölcsőde, óvoda, iskola, orvos, gyógyszertár egyaránt elérhető. Székesfehérvár autóval 10 perc alatt megközelíthető, a tömegközlekedés a város irányába kiváló!
Bővebb információért keressen minket bizalommal, segítünk megtalálni új otthonát.
Tulajdonságok
Ikerház
1
Új építésű
Gázkazán
2026
Nem adta meg a hirdető
Vedd fel a kapcsolatot a hirdetővel
+36 70 429 3
Hitelkalkulátor
Második évtől
525 032 Ft A 13. hónaptól
7,99% 8,49%
Végig fix Futamidő: 20 év Banki visszahívás
Az OTP Bank munkatársai a neked megfelelő napszakban veszik fel veled a kapcsolatot. A becslés a hirdető által megadott adatokon alapul. A jelen tájékoztatás nem minősül ajánlattételnek és nem teljes körű, az egyes feltételek a hitelbírálat eredményétől függően változhatnak. Kérjük, a részletekről tájékozódj az OTP Bank fiókjaiban vagy az OTP Bank honlapján közzétett vonatkozó Üzletszabályzatokból és Hirdetményekből.
Vedd fel a kapcsolatot a hirdetővel
+36 70 429 3
Vedd fel a kapcsolatot a hirdetővel
+36 70 429 3
UI_KIT.CHARACTER_COUNTER__COMPONENT.ACTUAL_CHARACTER__SR_ONLY UI_KIT.CHARACTER_COUNTER__COMPONENT.MAXIMUM_CHARACTER__SR_ONLY
Hasonló eladó ingatlanok Sárkeresztesen
Feltöltve: 7 hónapja
1
122 millió Ft 991,9 ezer Ft/m²
Eladó családi ház, Sárkeresztes, Móra Ferenc utca
Frissítve: 21 napja
12
122 millió Ft 991,9 ezer Ft/m²
Eladó családi ház, Sárkeresztes

Frissítve: ma
20
119,9 millió Ft 409,2 ezer Ft/m²
Eladó családi ház, Dunaújváros


Fedezd fel a
hasonló házakat!Még további házak Fejér megyében 122 M Ft körüli értékben
Tovább a hirdetésekhez Frissítve: 17 napja
20
132,99 millió Ft 801,1 ezer Ft/m²
Eladó családi ház, Kőszárhegy

Frissítve: 11 napja
20
125 millió Ft 833,3 ezer Ft/m²
Eladó családi ház, Kápolnásnyék

Frissítve: 4 napja
20
132,99 millió Ft 800,5 ezer Ft/m²
Eladó családi ház, Kőszárhegy

