

+18 fotó
Hirdetéskód: 8719855
Referenciaszám: M313282
Frissítve: 5 napja
Seregélyes eladó ikerház 4 szobás: 94,9 millió Ft
94,9 millió Ft
886 916 Ft/m² *
* A m² árat a hirdető adta meg.
107 m²
470 m²
4 szoba
Leírás
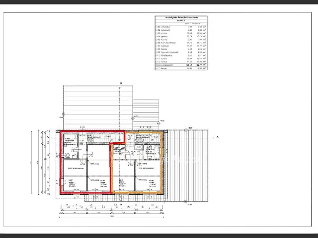
Fejér megye, Seregélyes 107 nm-es új építésű ikerház 1-es lakása eladó. Az ingatlan kulcsrakész állapotban 2025. október végén kerül átadásra. A belső kétszintes 107 nm hasznos alapterületű ingatlanhoz 470nm-es saját kert, 17,73 nm-es garázs, ezenfelül két autó számára kocsibeálló, 4 nm-es tároló és 12 nm-es terasz tartozik. A lakóegységek a garázsnál csatlakoznak. A meghirdetett ingatlan az alaprajzon a pirossal jelölt. A tégla (B30) építésű, szigetelt ingatlanban tágas amerikai konyhás nappali, 3 szoba, 2 fürdőszoba és kamra található. Beszerelésre került az új és modern konyhabútor és az előszoba bútor is. Az ikerház 15 cm-es külső, a födém 25 cm-es szigetelést kapott. A külső nyílászárók 3 rétegű műanyagok elektromos redőnnyel és szúnyoghálóval felszereltek. A házban még minden belső falszín választható. Fűtése környezetbarát,energiatakarékos hőszivattyús rendszer, padlófűtéses hőleadással, valamint minden hálószobába és a nappaliba hűtő fűtő klíma kerül. A vételár tartalmazza a külső-belső vakolást, külső-belső ablakpárkányokat, belső fehér készre festést, villany alapszerelést, padlófűtést, gépészeti alapszereléseket, az elektromos kaput, kerítést, a riasztó és a kamera rendszert, konyhabútort, előszobabútort, belső dekorfóliás ajtókat tokkal, kilinccsel, kapcsolók és dugaljakat, burkolást, szanitereket, alumínium redőnyöket,térkövezést, tereprendezést, parkosítást és a füvesítést is. A meghirdetett ingatlan az alaprajzon a pirossal jelölt.Jól átgondolt, élhető terekkel megálmodott, a legújabb rendszerek felhasználásával készülő ingatlan megvásárlásával egyszerre teremthet egy igényes, stílusos és barátságos otthont. Teljes körű ügyintézésben segítjük ügyfeleinket díjtalanul: Falusi CSOK, CSOK igénylése, kedvezményes hitel mobil bankári szolgáltatással, adásvétel teljes lebonyolításával. Bővebb információkért, kérem keressen bizalommal, akár hétvégén is.
Tulajdonságok
Ikerház
2
Új építésű
2024
Nem adta meg a hirdető
Vedd fel a kapcsolatot a hirdetővel
+36 20 487 4
Hitelkalkulátor
Második évtől
408 406 Ft A 13. hónaptól
7,99% 8,49%
Végig fix Futamidő: 20 év Banki visszahívás
Az OTP Bank munkatársai a neked megfelelő napszakban veszik fel veled a kapcsolatot. A becslés a hirdető által megadott adatokon alapul. A jelen tájékoztatás nem minősül ajánlattételnek és nem teljes körű, az egyes feltételek a hitelbírálat eredményétől függően változhatnak. Kérjük, a részletekről tájékozódj az OTP Bank fiókjaiban vagy az OTP Bank honlapján közzétett vonatkozó Üzletszabályzatokból és Hirdetményekből.
Vedd fel a kapcsolatot a hirdetővel
+36 20 487 4
Vedd fel a kapcsolatot a hirdetővel
+36 20 487 4
UI_KIT.CHARACTER_COUNTER__COMPONENT.REMAINING_SPACE__SR_ONLYUI_KIT.CHARACTER_COUNTER__COMPONENT.MAXIMUM_CHARACTER__SR_ONLY
Hasonló eladó ingatlanok Seregélyesen
Frissítve: 5 napja

9
97 M Ft 1 077 778 Ft/m²
Eladó családi ház, Seregélyes

Feltöltve: 7 napja

20
94,9 M Ft 886 916 Ft/m²
Eladó ikerház, Seregélyes

Feltöltve: 6 napja

20
94,9 M Ft 886 916 Ft/m²
Eladó ikerház, Seregélyes


Fedezd fel a
hasonló házakat!Még további házak Fejér megyében 94,9 M Ft körüli értékben
Tovább a hirdetésekhez Feltöltve: ma

20
94,9 M Ft 886 916 Ft/m²
Eladó ikerház, Seregélyes

Frissítve: 3 napja

4
86,91 M Ft
Eladó családi ház, Vál
Frissítve: 10 napja

1
92 M Ft 493 827 Ft/m²
Eladó sorház, Gárdony, Keszeg utca


Töltsd fel hirdetésed ingyenesen!
Egyszerű