+7 fotó
Hirdetéskód: 8846692
Referenciaszám: 5081
Frissítve: 1 hónapja
Százhalombatta eladó ikerház 3 szobás: 89,9 millió Ft
89,9 millió Ft
1 473 770 Ft/m²
61 m²
255 m²
3 szoba
Kód: 5081SZR Új építésű N+2 szobás ikerházi lakás, tárolóval, saját utcafronti bejárattal
Hivatkozzon erre, kód: 5081SZR
ÁRCSÖKKENÉS! 91.9mFt helyett 89.9mFt!
- ÚJ ÉPÍTÉS
- SAJÁT UTCAFRONTI BEJÁRAT, SAJÁT KERT
- NINCS KÖZÖS ÖSSZEÉRŐ LAKÓFAL
- NAPPALI + 2 SZOBA, TERASZ, GK. BEÁLLÓ
- HŐSZIVATTYÚS FŰTÉS
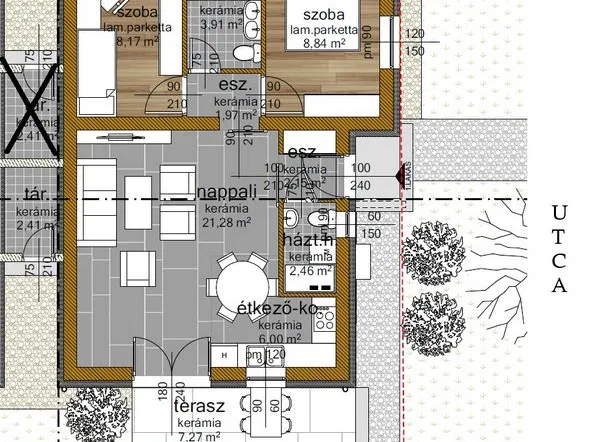
Százhalombatta Dunafüredi részén csendes, családi házas övezetben kb. 255m2-es saját kerttel rendelkező nappali + 2 szobás + tároló, összesen 60.82m2-es (terasz felével) új építésű ikerházi lakás (1-es épület) leköthető igény szerinti befejezéssel.
Várható átadás: 2026. nyár.
Az ingatlan felosztása a következő (nettó 57.19m2 + terasz 7.27m2): előszoba (2.15m2), háztartási helyiség + wc (2.46m2), nappali (21.28m2), konyha (6m2), előtér (1.97m2), fürdőszoba + wc (3.91m2), 2 szoba (8.17m2, 8.84m2).
Szerkezeti leírás: Beton alap. Tégla főfalak + 15cm dryvit szigetelés. Tégla válaszfalak. A külső nyílászárók műanyag szerkezetűek, fokozott hőszigetelésű üvegezéssel ellátva. A belső nyílászárók dekorfóliás ajtók. Cserép fedésű tető.
Az igény szerinti befejezésnek köszönhetően a hideg-meleg burkolatok, valamint a beltéri ajtók kiválaszthatóak a műszaki tartalomban rögzített árak szerint.
Fűtés: A lakások fűtését hőszivattyús rendszer látja el, minden helyiségben padlófűtésen keresztül.
Parkolás: saját udvaron belül fedetlen-felsízni beálló áll rendelkezésre.
Megközelíthetőség és infrastruktúra jó! Buszmegálló kb. 10 perc sétatávolságra található. Óvoda, iskola, bevásárlási lehetőségek szintén hamar elérhetőek.
További hasonló ingatlanok találhatók még a kínálatunkban!
Szüksége van hitelre? SEGÍTÜNK!
Bankfüggetlen hitel tanácsadónk díjmentesen áll az Ön rendelkezésére! Keressen bizalommal!
A hirdetésben szereplő adatok, információk, képek, alaprajzok stb... tájékoztató jellegűek! Irodánk az esetleges elírásokért felelősséget nem tud vállalni!
Tájékoztatjuk a Tisztelt Érdeklődőket, hogy az ingatlan hirdetésében szereplő telefonszám felhívásával Önök hozzájárulnak személyes adataik (név, telefonszám), a hirdetést feladó -Otthonplusz.hu Kft. - által a bizalmas kezeléshez és nyilvántartáshoz.
Tulajdonságok
Ikerház
1
Új építésű
Hőszivattyú
2026
Nem adta meg a hirdető
Vedd fel a kapcsolatot a hirdetővel
+36 20 953 1
Hitelkalkulátor
Második évtől
386 889 Ft A 13. hónaptól
7,99% 8,49%
Végig fix Futamidő: 20 év Banki visszahívás
Az OTP Bank munkatársai a neked megfelelő napszakban veszik fel veled a kapcsolatot. A becslés a hirdető által megadott adatokon alapul. A jelen tájékoztatás nem minősül ajánlattételnek és nem teljes körű, az egyes feltételek a hitelbírálat eredményétől függően változhatnak. Kérjük, a részletekről tájékozódj az OTP Bank fiókjaiban vagy az OTP Bank honlapján közzétett vonatkozó Üzletszabályzatokból és Hirdetményekből.
Vedd fel a kapcsolatot a hirdetővel
+36 20 953 1
Vedd fel a kapcsolatot a hirdetővel
+36 20 953 1
UI_KIT.CHARACTER_COUNTER__COMPONENT.ACTUAL_CHARACTER__SR_ONLY UI_KIT.CHARACTER_COUNTER__COMPONENT.MAXIMUM_CHARACTER__SR_ONLY
Hasonló eladó ingatlanok Százhalombattán
Frissítve: 6 napja
12
85 M Ft 3 035 714 Ft/m²
Eladó családi ház, Százhalombatta, Dózsa György utca

Frissítve: 1 napja
12
85 M Ft 3 035 714 Ft/m²
Eladó családi ház, Százhalombatta

Frissítve: ma
12
85 M Ft 3 035 714 Ft/m²
Eladó családi ház, Százhalombatta


Fedezd fel a
hasonló házakat!Még további házak Pest megyében 89,9 M Ft körüli értékben
Tovább a hirdetésekhez Frissítve: 6 napja
5
89,9 M Ft 1 473 770 Ft/m²
Eladó ikerház, Százhalombatta
Frissítve: 6 napja
13
89,9 M Ft 1 422 468 Ft/m²
Eladó ikerház, Százhalombatta

Frissítve: ma
20
89,9 M Ft 1 473 770 Ft/m²
Eladó ikerház, Százhalombatta

