

+7 fotó
Hirdetéskód: 8716488
Referenciaszám: 66aec789-4b1e-46ea-bf56-4d2458094a07
Frissítve: 7 napja
Eladó 5 szobás ikerház 144,6 millió Ft értékben Szegeden - Újszeged Holt Maros környéke lakóparkban
144,6 millió Ft
964 000 Ft/m²
150 m²
929 m²
5 szoba
Újszeged kedvelt részén nappali + 4 szobás ikerház KULCSRAKÉSZ állapotban megvásárolható. Az alapozási munkálatok...
Újszeged kedvelt részén nappali + 4 szobás ikerház KULCSRAKÉSZ állapotban megvásárolható.
Az alapozási munkálatok elkészültek, és elkezdődtek a falazási munkálatok.
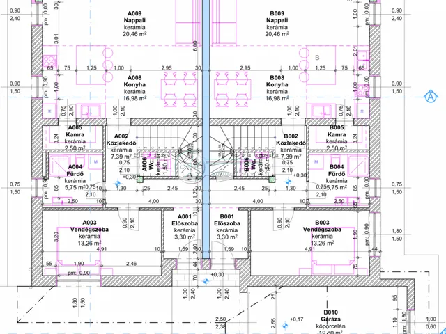
A 929 nm-s telken egy 2 lakásos ikerház épül. Mind a két ingatlanhoz saját telekrész, garázs és autóbeálló tartozik.
A 150 nm-s hasznos alapterület mellett a földszinten egy 21,12 nm-s terasz, az emeleten pedig egy 10,56 nm-s erkély található. A garázsok alapterülete 19,8 nm.
Az épület 44-s téglából épül, vasbeton födémszerkezettel, korszerű háromrétegű nyílászárókkal. A ház fűtését és melegvíz ellátását hőszivattyús rendszer vagy kondenzációs kazán biztosítja. Napelemes rendszer, elektromos redőnykiállások és riasztórendszer előkészítése megtörténik.
Jelenleg a belső terek kialakítása még variálható, igény esetén még plusz szoba vagy akár gardrób is kialakítható.
A kivitelező megbízható, és számtalan referenciával rendelkezik, melyek Szeged különböző pontjain megtalálhatóak.
Az ingatlan igény esetén szerkezetkészen is megvásárolható, ebben az esetben a vételára: 128,9M Ft.
CSOK Plusz és illetékmentesség igényelhető az épületre.
A tervdokumentáció az irodánkban a Csongrádi sgt. 41. szám alatt előzetes egyeztetés után megtekinthető.
Bővebb információ miatt hívjon bizalommal.
Tulajdonságok
2
2025
Nem adta meg a hirdető
Vedd fel a kapcsolatot a hirdetővel
+36 30 821 5
Hitelkalkulátor
Második évtől
622 292 Ft A 13. hónaptól
7,99% 8,49%
Végig fix Futamidő: 20 év Banki visszahívás
Az OTP Bank munkatársai a neked megfelelő napszakban veszik fel veled a kapcsolatot. A becslés a hirdető által megadott adatokon alapul. A jelen tájékoztatás nem minősül ajánlattételnek és nem teljes körű, az egyes feltételek a hitelbírálat eredményétől függően változhatnak. Kérjük, a részletekről tájékozódj az OTP Bank fiókjaiban vagy az OTP Bank honlapján közzétett vonatkozó Üzletszabályzatokból és Hirdetményekből.
Vedd fel a kapcsolatot a hirdetővel
+36 30 821 5
Vedd fel a kapcsolatot a hirdetővel
+36 30 821 5
UI_KIT.CHARACTER_COUNTER__COMPONENT.REMAINING_SPACE__SR_ONLYUI_KIT.CHARACTER_COUNTER__COMPONENT.MAXIMUM_CHARACTER__SR_ONLY
Hasonló eladó ingatlanok Szegeden
Frissítve: 2 napja

20
150 M Ft 937 500 Ft/m²
Eladó ikerház, Szeged
Frissítve: 9 napja

20
147,9 M Ft 734 688 Ft/m²
Eladó ikerház, Szeged

Frissítve: 1 éve

16
150 M Ft 721 154 Ft/m²
Eladó családi ház, Szeged


Fedezd fel a
hasonló házakat!Még további házak Szegeden 144,6 M Ft körüli értékben
Tovább a hirdetésekhez Frissítve: 9 napja

12
144 M Ft 757 895 Ft/m²
Eladó ikerház, Szeged

Frissítve: 15 napja

12
144 M Ft 757 895 Ft/m²
Eladó ikerház, Szeged

Frissítve: 15 napja

20
147,9 M Ft 735 821 Ft/m²
Eladó ikerház, Szeged


Töltsd fel hirdetésed ingyenesen!
Egyszerű