+9 fotó
Hirdetéskód: 8786291
Referenciaszám: HZ093902-5084020
Feltöltve: 5 napja
Szeged eladó ikerház 2+3 fél szobás: 144 millió Ft
144 millió Ft
757 895 Ft/m²
190 m²
452 m²
2+3 fél szoba
Eladó ház, Szeged
EXKLUZÍV KÖRNYEZET, MINIMÁL STÍLUS!
Újszeged dinamikusan fejlődő, kedvelt kertvárosi övezetében EMELT SZINTŰ SZERKEZETKÉSZ, belső kétszintes, saját kertkapcsolatos, prémium kategóriájú, minimál stílusú, család ház jellegű ikerház egyik fele eladó.
Az ingatlan korszerű technológiával, műszaki tartalommal épült. Kivitelezését az igényesség és a modern stílus jellemzi.
Az ikerház egymással érintkező falfelülete külön fallal rendelkezik, közte dupla szigeteléssel. Az épület kertre néző 452 m2-es telken épült, ahol amerikai konyha+nappali, 4 szoba, gardrób szoba, tágas, fedett terasz, erkély és dupla garázs kerül kialakításra.
A lépcsőház felett felülvilágító kupola (lapostető) gondoskodik a természetes megvilágításról.
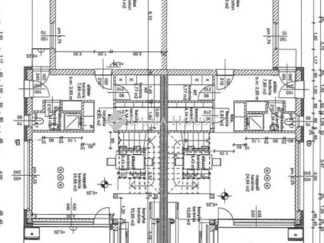
Térfelosztása az alábbi:
Földszint: amerikai konyha+nappali, innen nyílik a terasz, kamra, háztartási helyiség, fürdő, közlekedő, előtér, garázs (lakótér - 65,72 m2, fedett terasz 23,58 m2, garázs 36,68 m2).
Emelet: 4 szoba, gardrób, fürdő, wc, közlekedő, erkély ( lakótér - 71,17 m2, erkély 9,97 m2).
Össz terület: 153,655 m2 (1/2-1/2 terasz és erkély) + 36,68 m2 garázs = 190,335 m2.
Műszaki jellemzők
- Falazáshoz felhasznált anyagok: Wienerberger Porotherm X-Therm okostégla, gipszes vakolat
- Két rétegben glettelt és festett falak
- 22 cm-es monolit vasbeton födém ( záró szintes is)
- Homlokzati nyílászárók: 76 mm-es, 6 kamrás, antracit színű (belső oldalán fehér) műanyag nyílászárók 3 rétegű üvegezéssel (üveg: U 0,6 W/m2K)
- Homlokzatburkolat: 15 cm-es EPS homlokzati hőszigetelés 1,5 mm-es fehér műgyantás nemesvakolat ill. Travertin mészkő burkolattal
- Travertin mészkő burkolat, mészkő könyöklő
- Üvegkorlát: két rétegű, edzett üvegkorlát a teraszon és az emeleti nyílászárókon (franciaerkélyeken)
- Kamera -és riasztórendszer kiépítése (3 db kamera és mozgásérzékelő rendszer)
- Video kaputelefon, TV internet előkészítés
- Elektromos rendszer: elektromos vezetékek védőcsövekben, Split klíma előszerelése a nappaliban és az emeleti hálószobában, elektromos redőny előkészítés.
- Fűtésrendszer: 24 kW-os tározós, kondenzációs gázkazán, melegvíz cirkulációs vezeték, padlófűtés minden helyiségben (kivéve kamrában). Fürdőszobában törölköző szárító radiátor. Gázterv engedélyeztetés.
- Napelem: 5 kW-os napelem rendszer (várható éves termelés: 5.140 kWh, kiváltott havi áramszála összege: 16.277,- Ft)
- Garázs: kétállásos, padlófűtéssel és vízvételi lehetőséggel ellátott garázs
- Garázskapu: elektromos, hőszigetelt Hörmann RenoMatic Planar garázskapu 40 mm PIR hőszigeteléssel, matt Delux antracit színű borítással, (RAL 7016), ugrókódos rádiós rendszer, Bluetooth
Minőségi anyagok, minőségi kivitelezés.
Ajánlom azoknak, akik elegáns, modern álomotthont szeretnének ahol minden a magas színvonalat és letisztultságot sugározza.
Ha felkeltette érdeklődését bővebb információért forduljon hozzám, keressen a hét bármely napján bizalommal!
Tulajdonságok
Ikerház
Új építésű
Gázkazán
2022
Nem adta meg a hirdető
Vedd fel a kapcsolatot a hirdetővel
+36 62 770 7
Hitelkalkulátor
Második évtől
619 710 Ft A 13. hónaptól
7,99% 8,49%
Végig fix Futamidő: 20 év Banki visszahívás
Az OTP Bank munkatársai a neked megfelelő napszakban veszik fel veled a kapcsolatot. A becslés a hirdető által megadott adatokon alapul. A jelen tájékoztatás nem minősül ajánlattételnek és nem teljes körű, az egyes feltételek a hitelbírálat eredményétől függően változhatnak. Kérjük, a részletekről tájékozódj az OTP Bank fiókjaiban vagy az OTP Bank honlapján közzétett vonatkozó Üzletszabályzatokból és Hirdetményekből.
Vedd fel a kapcsolatot a hirdetővel
+36 62 770 7
Vedd fel a kapcsolatot a hirdetővel
+36 62 770 7
UI_KIT.CHARACTER_COUNTER__COMPONENT.REMAINING_SPACE__SR_ONLYUI_KIT.CHARACTER_COUNTER__COMPONENT.MAXIMUM_CHARACTER__SR_ONLY
Hasonló eladó ingatlanok Szegeden
Frissítve: 12 napja
12
144 M Ft 757 895 Ft/m²
Eladó ikerház, Szeged

Frissítve: 6 napja
20
148 M Ft 1 000 000 Ft/m²
Eladó ikerház, Szeged

Frissítve: 15 napja
20
147,9 M Ft 735 821 Ft/m²
Eladó ikerház, Szeged


Fedezd fel a
hasonló házakat!Még további házak Szegeden 144 M Ft körüli értékben
Tovább a hirdetésekhez Frissítve: 15 napja
12
144 M Ft 757 895 Ft/m²
Eladó ikerház, Szeged

Frissítve: 22 napja
7
154,6 M Ft 1 073 611 Ft/m²
Eladó családi ház, Szeged

Frissítve: 12 napja
20
147,9 M Ft 735 821 Ft/m²
Eladó ikerház, Szeged


Töltsd fel hirdetésed ingyenesen!
Egyszerű