Hirdetéskód: 8579171
Frissítve: 7 napja
Vácrátót eladó ikerház 3 szobás: 51,5 millió Ft
51,5 millió Ft
1 009 804 Ft/m²
51 m²
200 m²
3 szoba
Vácrátóton ikerházak eladók!!!
Vácrátóton eladó ikerház mind két oldala!!!
Új építésű ingatlanokra vonatkozó kedvezmények igénybe vehetők!!!
A vállalkozó számos referenciával rendelkező cég építi, így a közelben több referencia ház megtekinthető.
Panel lakás áráért, kis kertes ikerház!!!
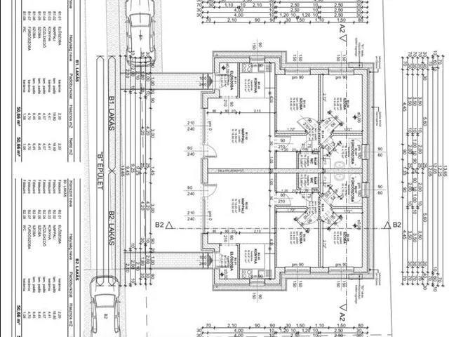
A ház nettó: 50,66 nm
Terasz: 5 nm
Telek: 189 nm
A lakás elosztása:
előszoba 2,20 nm
nappali 16,80 nm
konyha 4,41 nm
közlekedő 4,57 nm
szoba 8,45 nm
szoba 8,45 nm
fürdőszoba 4,70 nm
wc 1,08 nm
terasz 5,00 nm
Parkolás: zárt udvaron belül
Műszaki tartalma:
-30 pth tégla
-10 cm Porotherm válaszfal
-12 cm dryvit szigetelés
-a ház külső színe fehér
-25 cm tetőtéri szigetelés
-LEIRER beton cserép
Nyílászáró:
-5 légkamrás, 3 rétegű hőszigetelt nyílászáró
Bejárati ajtó: 150.000.-Ft/db
Belső ajtók: 60.000.-Ft/db , kilinccsel
Szaniterek, csaptelepek: összesen 250.000.-Ft
Meleg burkolat 5.000.-Ft/nm
Hideg burkolat 6.000.-Ft/nm
Fűtés: -hőszivattyú
-padlófűtéssel
-fürdőszobában törölköző szárítós radiátor
2 db GREE inverteres 3,5 KW-os klíma
/Gáz nem lesz bekötve a házba/
Festés: belső falak vakolás után kétszeri glettelés, kétszeri festés, fehér színben.
Villamos:
-3x15 Amper
-55 db kapcsolók és aljzatok /további kiállás 20.000.-FT/db/
-1 db internet csatlakozás
-1 db alap riasztó kiállás
-elektromos tűzhely kiállás
-páraelszívó kiállás
-kaputelefon kiállás
-kapu elektromos kiállás
Kerítés:
-2 sor zsalukő
-léckerítés
-ház körül 50 cm-es betonjárda
-1 db kerti csap
Udvar:
-durva tereprendezés
Parkolás: zárt udvaron belül
Kulcsrakész átadás: 2026. Június
Tulajdonságok
Ikerház
1
Új építésű
Hőszivattyú
2025
5 m²
Nem adta meg a hirdető
Vedd fel a kapcsolatot a hirdetővel
Bene Kriszti Az iroda összes hirdetése
+36 20 231 6
Hitelkalkulátor
Második évtől
221 633 Ft A 13. hónaptól
7,99% 8,49%
Végig fix Futamidő: 20 év Banki visszahívás
Az OTP Bank munkatársai a neked megfelelő napszakban veszik fel veled a kapcsolatot. A becslés a hirdető által megadott adatokon alapul. A jelen tájékoztatás nem minősül ajánlattételnek és nem teljes körű, az egyes feltételek a hitelbírálat eredményétől függően változhatnak. Kérjük, a részletekről tájékozódj az OTP Bank fiókjaiban vagy az OTP Bank honlapján közzétett vonatkozó Üzletszabályzatokból és Hirdetményekből.
Vedd fel a kapcsolatot a hirdetővel
Bene Kriszti Az iroda összes hirdetése
+36 20 231 6
Vedd fel a kapcsolatot a hirdetővel
Bene Kriszti Az iroda összes hirdetése
+36 20 231 6
UI_KIT.CHARACTER_COUNTER__COMPONENT.REMAINING_SPACE__SR_ONLYUI_KIT.CHARACTER_COUNTER__COMPONENT.MAXIMUM_CHARACTER__SR_ONLY
Hasonló eladó ingatlanok Vácrátóton
Frissítve: 2 hónapja
2
51,5 M Ft 1 009 804 Ft/m²
Eladó ikerház, Vácrátót
Frissítve: 18 napja
20
54,99 M Ft 423 000 Ft/m²
Eladó családi ház, Vácrátót
Feltöltve: 7 napja
2
51,5 M Ft 1 030 000 Ft/m²
Eladó ikerház, Vácrátót

Fedezd fel a
hasonló házakat!Még további házak Pest megyében 51,5 M Ft körüli értékben
Tovább a hirdetésekhez Frissítve: 5 napja
20
Rezsi nélküli, tégla építésű, prémium családi házak, akár 6 hónap alatt - Ár-garancia / Kötbér-garancia / Előfinanszírozás
54,5 M Ft 545 000 Ft/m²
Eladó családi ház, Cegléd

Frissítve: 5 napja
20
48 M Ft 592 593 Ft/m²
Eladó családi ház, Pilis

Frissítve: 5 napja
6
53 M Ft 530 000 Ft/m²
Eladó családi ház, Gyömrő, Csokonai utca


Töltsd fel hirdetésed ingyenesen!
Egyszerű