+14 fotó
Hirdetéskód: 8840573
Referenciaszám: 729500075
Feltöltve: 3 napja
Vácrátót eladó ikerház 4 szobás: 89,9 millió Ft
89,9 millió Ft
832 407 Ft/m²
108 m²
508 m²
4 szoba
4662: Vácrátóton a Szent István lakóparkban épülő ikerház jobb oldali lakása eladó!
Vácrátóton a Szent István lakóparkban épülő ikerház jobb oldali lakása eladó!
CÉGES ÉPÍTKEZÉS, a 2024-től aktuális állami támogatások valamint kedvezményes, kamattámogatott hitelek felvehetőek – akár a 3%-os OTTHON START hitel, CSOK PLUS, babaváró is igényelhető, az ügyintézésben díjmentesen segítünk!
Az építő munkájára jellemző a megbízhatóság és igényesség, leinformálható, referencia házai megtekinthetők.
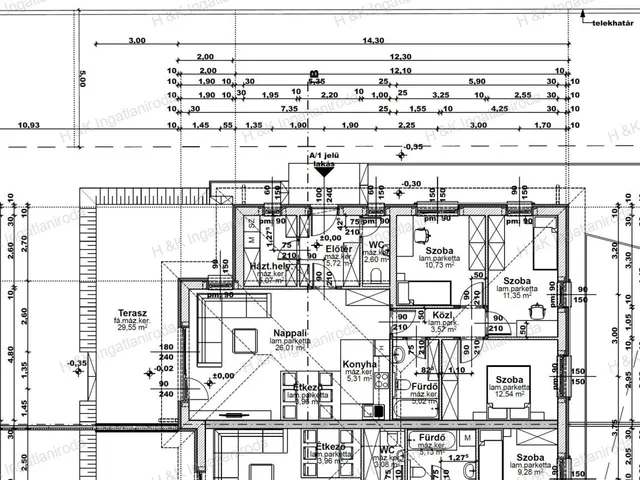
A lakás bruttó területe 108 nm, nettó lakóterülete 93,08 nm + 29,55 nm terasz, amerikai-konyhás nappali + 3 szobával, 508 nm-es kizárólagos használatú telekrésszel.
Rövid műszaki tartalom:
Az épület 30-as Porotherm tégla falazattal, 15 cm-es külső dryvit szigeteléssel épül.
A födém 20 cm-es üveggyapot szigeteléssel, a tető Bramac cserépfedéssel készül.
Az ablakok fehér színű, műanyag szerkezetű, meleg peremes, 3 rétegű üvegezéssel ellátva kerülnek beépítésre.
Az ingatlan fűtéséről és meleg víz ellátásáról hőszivattyú gondoskodik, hőátadás padlófűtésen keresztül történik.
A vételár ezen felül tartalmazza:
A nappaliban klímakiállás előkészítés.
Az udvar kitakarított állapotban alap tereprendezéssel kerül átadásra.
Kerítés a bejárat felőli utcafrontnál, zsalukő pilléres deszkázott, toló kapuval és kiskapuval.
A házkörül szegélykő 50 cm szélességben, murvával feltöltve.
A kocsi beálló (3 x 5 m) és a járda (1 m széles) ami a kocsibejárótól a bejárati ajtóig vezet betonsáv lesz.
A belső burkolatok, beltéri ajtók igény szerint választhatók, a belső műszaki tartalomban vállalt összeghatárig a vételár részét képezve.
Ára: 89.900.000.- Ft
Azonosító: 4662
Tulajdonságok
Ikerház
1
Új építésű
Hőszivattyú
2026
Nem adta meg a hirdető
Vedd fel a kapcsolatot a hirdetővel
+36 70 418 1
Hitelkalkulátor
Második évtől
386 889 Ft A 13. hónaptól
7,99% 8,49%
Végig fix Futamidő: 20 év Banki visszahívás
Az OTP Bank munkatársai a neked megfelelő napszakban veszik fel veled a kapcsolatot. A becslés a hirdető által megadott adatokon alapul. A jelen tájékoztatás nem minősül ajánlattételnek és nem teljes körű, az egyes feltételek a hitelbírálat eredményétől függően változhatnak. Kérjük, a részletekről tájékozódj az OTP Bank fiókjaiban vagy az OTP Bank honlapján közzétett vonatkozó Üzletszabályzatokból és Hirdetményekből.
Vedd fel a kapcsolatot a hirdetővel
+36 70 418 1
Vedd fel a kapcsolatot a hirdetővel
+36 70 418 1
UI_KIT.CHARACTER_COUNTER__COMPONENT.REMAINING_SPACE__SR_ONLYUI_KIT.CHARACTER_COUNTER__COMPONENT.MAXIMUM_CHARACTER__SR_ONLY
Hasonló eladó ingatlanok Vácrátóton
Frissítve: 18 napja
8
86,5 M Ft 994 253 Ft/m²
Eladó ikerház, Vácrátót

Frissítve: 5 napja
13
89,9 M Ft 926 804 Ft/m²
Eladó családi ház, Vácrátót
Frissítve: 18 napja
8
86,5 M Ft 994 253 Ft/m²
Eladó családi ház, Vácrátót


Fedezd fel a
hasonló házakat!Még további házak Vácrátóton 89,9 M Ft körüli értékben
Tovább a hirdetésekhez Frissítve: 18 napja
9
89,9 M Ft 1 021 591 Ft/m²
Eladó ikerház, Vácrátót

Frissítve: 18 napja
9
94,9 M Ft 878 704 Ft/m²
Eladó ikerház, Vácrátót
Frissítve: 18 napja
8
89,9 M Ft 987 912 Ft/m²
Eladó családi ház, Vácrátót

