

+18 fotó
Hirdetéskód: 8731103
Referenciaszám: HZ060440-5051554
Feltöltve: 2 napja
Vecsés eladó ikerház 5 szobás: 149 millió Ft
149 millió Ft
931 250 Ft/m²
160 m²
460 m²
5 szoba
Eladó ház, Vecsés
Vecsés csendes családias részén
Vecsés Krakkón barátságos utcában eladó új építésű családi házak.
A kivitelező sok éves múlttal és rengeteg elégedett ügyféllel rendelkezik, referenciák Vecsési lakóparkokban és a 18.kerületben is megtekinthetőek.
Költözzön egy privát zárt lakóparkba melyet saját magánúton zárt kapuk mögött lehet megközelíteni. 4 ház épül a lakópark területén, a privát kerteken kívül közös kertrész is kialakításra kerül, melyre a kivitelező privát játszóteret és sütögetőt alakít ki.
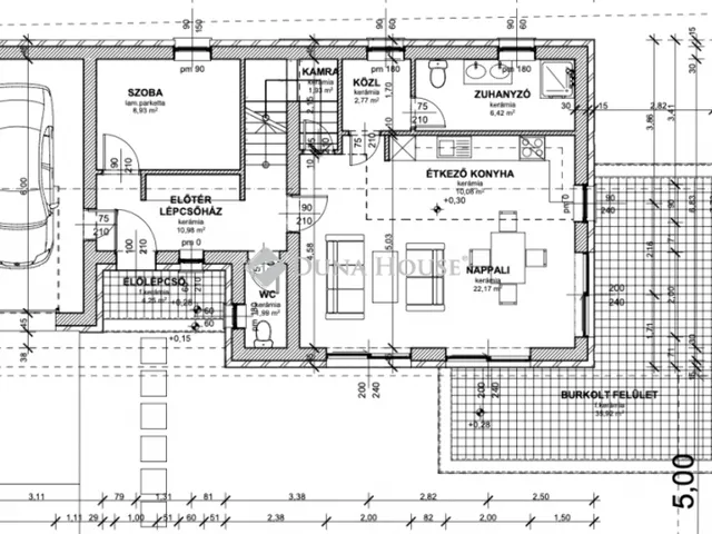
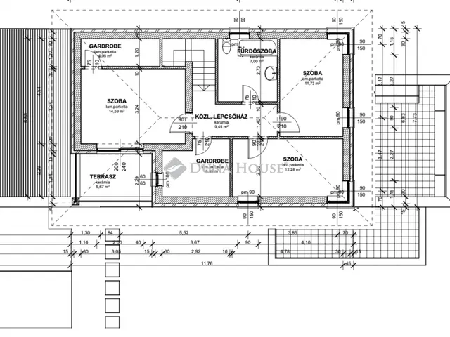
Az otthonok 160.88 négyzetméter hasznos lakótérrel rendelkeznek, mely két szinten fekszik és 460 négyzetméter kert tartozik hozzá. A földszinten egy kényelmes méretű 32 négyzetméteres amerikai konyhás nappalival rendelkezik melyre egy L alakú 35.92 négyzetméteres részben fedett teraszon keresztül jutunk a saját kertünkbe. 4 nagyobb méretű hálószobával, 2 gardróbbal és 2 fürdőszobával+1 illemhelyiséggel rendelkezik.
Műszaki adatok:
-30-as Prototherm tégla falazat
-15 cm-es homlokzati szigetelés
-25 cm-es szigetelés az aljzat felől
-25 cm-es szigetelés a födém felől
-3 rétegű műanyag nyílászárók kívülről antracit belülről fehér színűek
-elektromos garázskapu antracit színnel
-Hőszivattyús fűtés/hűtés
-2 fürdőszoba
-kamra
-riasztó
-elektromos redőny
-térkövezett autóbeálló
-kétállásos garázs
-napelem/kamera kiállás
Burkolatok/beltéri ajtók/szaniterek még választhatóak.
A HÁZAK CSAK A DUPLAGARÁZSNÁL ÉRINTKEZNEK, UTCAFRONTJA MINDEGYIK INGATLANNAK VAN!
A lakópark teljesen új modern környezet, játszótérrel, fákkal. Közlekedést tekintve autóval a Gyorsforgalmi út, Üllői út, Gyömrői út az M0-ás és a 4-es út 3 perc alatt megközelíthető.
Tömegközlekedés 3 perc sétára Volánbuszmegálló Kőbánya Kispest vasútállomásig közlekedik, 15 perc sétára Vecsési vonatállomás, melyről a Nyugati pályaudvarig közlekednek a vonatok.
Felkeltette érdeklődését keressen bizalommal a hét bármely napján!
Átadás: 2026.július
Tulajdonságok
Ikerház
Új építésű
Hőszivattyú
2025
A+
Vedd fel a kapcsolatot a hirdetővel
+36 1 444 74
Hitelkalkulátor
Második évtől
641 228 Ft A 13. hónaptól
7,99% 8,49%
Végig fix Futamidő: 20 év Banki visszahívás
Az OTP Bank munkatársai a neked megfelelő napszakban veszik fel veled a kapcsolatot. A becslés a hirdető által megadott adatokon alapul. A jelen tájékoztatás nem minősül ajánlattételnek és nem teljes körű, az egyes feltételek a hitelbírálat eredményétől függően változhatnak. Kérjük, a részletekről tájékozódj az OTP Bank fiókjaiban vagy az OTP Bank honlapján közzétett vonatkozó Üzletszabályzatokból és Hirdetményekből.
Vedd fel a kapcsolatot a hirdetővel
+36 1 444 74
Vedd fel a kapcsolatot a hirdetővel
+36 1 444 74
UI_KIT.CHARACTER_COUNTER__COMPONENT.REMAINING_SPACE__SR_ONLYUI_KIT.CHARACTER_COUNTER__COMPONENT.MAXIMUM_CHARACTER__SR_ONLY
Hasonló eladó ingatlanok Vecsésen
Frissítve: 16 napja

20
155 M Ft 484 375 Ft/m²
Eladó családi ház, Vecsés, Telepi utcánál
Frissítve: 11 napja

18
159 M Ft 504 762 Ft/m²
Eladó családi ház, Vecsés, Küküllői utca

Frissítve: 7 hónapja

17
155 M Ft 635 246 Ft/m²
Eladó családi ház, Vecsés

Fedezd fel a
hasonló házakat!Még további házak Vecsésen 149 M Ft körüli értékben
Tovább a hirdetésekhez Frissítve: 15 napja

18
159,9 M Ft 726 818 Ft/m²
Eladó családi ház, Vecsés, Budai Nagy Antal
Frissítve: 11 napja

19
162,9 M Ft 839 691 Ft/m²
Eladó családi ház, Vecsés, Teréz utca

Frissítve: 6 napja

20
149,9 M Ft 772 680 Ft/m²
Eladó családi ház, Vecsés

Töltsd fel hirdetésed ingyenesen!
Egyszerű