

+14 fotó
Hirdetéskód: 8739893
Referenciaszám: HZ051663
Frissítve: 2 napja
Vecsés eladó ikerház 4 szobás: 120 millió Ft
120 millió Ft
1 025 378 Ft/m² *
* A m² árat a hirdető adta meg.
117 m²
307 m²
4 szoba
Leírás
Vecsés legmodernebb fiatalos, családias részén
Vecsésen modern környezetben eladó új építésű családi házak.
A kivitelező sok éves múlttal és rengeteg elégedett ügyféllel rendelkezik, referenciák akár itt a lakóparkban is megtekinthetőek.
1-es ház
127 négyzetméter hasznos lakótérrel rendelkezik, mely egy 307 négyzetméteres telken fekszik. A földszinten a nappaliból egy 8 négyzetméteres teraszon keresztül juthatunk ki a saját privát kertünkbe, továbbá az emeleten egy 8,19 négyzetméteres tetőterasz is tartozik hozzá.
Nappali+4 hálószoba+ gardrób, 21nm garázs, szülőiháló.
22 méter saját utcafront!
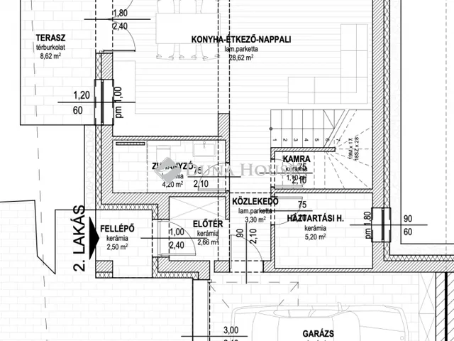
2-es ház
117,03 négyzetméter hasznos lakótérrel rendelkezik, mely egy 307 négyzetméteres telken fekszik. A földszinten a nappaliból egy 8,62 négyzetméteres teraszon keresztül juthatunk ki a saját privát kertünkbe, továbbá az emeleten egy 6,20 négyzetméteres erkély is tartozik hozzá.
Nappali+3hálószoba+gardrób, 21nm garázs, szülőiháló.
3-as ház
117,03 négyzetméter hasznos lakótérrel rendelkezik, mely egy 307 négyzetméteres telken fekszik. A földszinten a nappaliból egy 8,62 négyzetméteres teraszon keresztül juthatunk ki a saját privát kertünkbe, továbbá az emeleten egy 6,20 négyzetméteres erkély is tartozik hozzá.
Nappali+3hálószoba+gardrób, 21nm garázs, szülői háló.
Műszaki adatok:
-30as Prototherm tégla falazat
-15cm-es homlokzati szigetelés
-18-cm-es szigetelés az aljzat felől
-8cm-es szigetelés a födém felől
-3 rétegű műanyag nyílászárók kívülről antracit belülről fehér színűek
-elektromos garázskapu antracit színnel
-Hőszivattyús fűtés/hűtés (fan coil)
-2 fürdőszoba
-mosókonyha
-riasztó és kaputelefon kiállás
-térkövezett autóbeálló
Burkolatok/beltéri ajtók/szaniterek még választhatóak.
A lakópark teljesen új modern környezet, játszótérrel, fákkal. Közlekedést tekintve autóval a Gyorsforgalmi út, Üllői út, Gyömrői út az M0ás és a 4-es út 3perc alatt megközelíthető.
Tömegközlekedés 3perc sétára Volánbusz Kőbánya Kispest vasútállomásig közlekedik, 10perc sétára Vecsési vonatállomás, melyről a Nyugati pályaudvarig közlekednek a vonatok.
Felkeltette érdeklődését keressen bizalommal a hét bármely napján!
Átadás: 2026.IV. negyedév
Tulajdonságok
2025
8,6 m²
Nem adta meg a hirdető
Vedd fel a kapcsolatot a hirdetővel
+36 1 690 05
Hitelkalkulátor
Második évtől
516 425 Ft A 13. hónaptól
7,99% 8,49%
Végig fix Futamidő: 20 év Banki visszahívás
Az OTP Bank munkatársai a neked megfelelő napszakban veszik fel veled a kapcsolatot. A becslés a hirdető által megadott adatokon alapul. A jelen tájékoztatás nem minősül ajánlattételnek és nem teljes körű, az egyes feltételek a hitelbírálat eredményétől függően változhatnak. Kérjük, a részletekről tájékozódj az OTP Bank fiókjaiban vagy az OTP Bank honlapján közzétett vonatkozó Üzletszabályzatokból és Hirdetményekből.
Vedd fel a kapcsolatot a hirdetővel
+36 1 690 05
Vedd fel a kapcsolatot a hirdetővel
+36 1 690 05
UI_KIT.CHARACTER_COUNTER__COMPONENT.REMAINING_SPACE__SR_ONLYUI_KIT.CHARACTER_COUNTER__COMPONENT.MAXIMUM_CHARACTER__SR_ONLY
Hasonló eladó ingatlanok Vecsésen
Frissítve: 11 napja

20
110 M Ft 758 621 Ft/m²
Eladó családi ház, Vecsés

Frissítve: 12 napja

19
119,9 M Ft
Eladó családi ház, Vecsés, Jó befektetés

Frissítve: 17 napja

20
125 M Ft 390 625 Ft/m²
Eladó családi ház, Vecsés


Fedezd fel a
hasonló házakat!Még további házak Vecsésen 120 M Ft körüli értékben
Tovább a hirdetésekhez Frissítve: ma

20
110 M Ft 758 621 Ft/m²
Eladó családi ház, Vecsés

Frissítve: 5 napja

20
125 M Ft 390 625 Ft/m²
Eladó családi ház, Vecsés

Frissítve: 10 napja

20
110 M Ft 758 621 Ft/m²
Eladó családi ház, Vecsés


Töltsd fel hirdetésed ingyenesen!
Egyszerű