

+5 fotó
Hirdetéskód: 8752150
Referenciaszám: HZ025077-5064356
Feltöltve: 4 napja
Vecsés eladó ikerház 5 szobás: 140 millió Ft
140 millió Ft
939 597 Ft/m²
149 m²
505 m²
5 szoba
Eladó ház, Vecsés
Vecsés legmodernebb fiatalos, családias részén
Vecsésen modern környezetben eladó új építésű családi házak.
A kivitelező sok éves múlttal és rengeteg elégedett ügyféllel rendelkezik, referenciák akár itt a lakóparkban is megtekinthetőek.
Az ikerház mindkét feléhez egy kétállásos garázs tartozik (36nm), a két ingatlan kizárólag itt érintkezik!
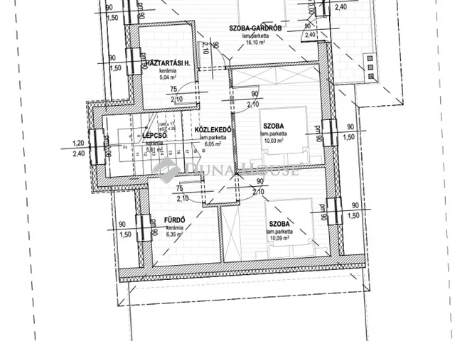
Nappali+4hálószoba+gardrób található az otthokban melyből egy szülőihálószobaként funkcionál, mely 16,10nm.
A földszinten van egy nagy 13.57 nm-es részben fedett terasz, az emeleten pedig egy 6,12nm-es erkély mely szintén a szülői hálószobához tartozik.
Az otthonok 149,58 négyzetméteresek mellyekhez saját, privát önálló 505 négyzetméter kertrész tartozik.
Műszaki adatok:
-30as Prototherm tégla falazat
-15cm-es homlokzati szigetelés
-18-cm-es szigetelés az aljzat felől
-8cm-es szigetelés a födém felől
-3 rétegű műanyag nyílászárók kívülről antracit belülről fehér színűek
-elektromos garázskapu antracit színnel
-Hőszivattyús fűtés/hűtés (fan coil)
-2 fürdőszoba
-mosókonyha
-elektromos redőny
-riasztó és kaputelefon kiállás
-térkövezett autóbeálló
Burkolatok/beltéri ajtók/szaniterek még választhatóak.
A lakópark teljesen új modern környezet, játszótérrel, fákkal. Közlekedést tekintve autóval a Gyorsforgalmi út, Üllői út, Gyömrői út az M0ás és a 4-es út 3perc alatt megközelíthető.
Tömegközlekedés 3perc sétára Volánbusz Kőbánya Kispest vasútállomásig közlekedik, 10perc sétára Vecsési vonatállomás, melyről a Nyugati pályaudvarig közlekednek a vonatok.
Felkeltette érdeklődését keressen bizalommal a hét bármely napján!
Átadás: 2026.IV. negyedév.
Tulajdonságok
Ikerház
Új építésű
Hőszivattyú
2025
A+
Vedd fel a kapcsolatot a hirdetővel
+36 1 444 74
Hitelkalkulátor
Második évtől
602 496 Ft A 13. hónaptól
7,99% 8,49%
Végig fix Futamidő: 20 év Banki visszahívás
Az OTP Bank munkatársai a neked megfelelő napszakban veszik fel veled a kapcsolatot. A becslés a hirdető által megadott adatokon alapul. A jelen tájékoztatás nem minősül ajánlattételnek és nem teljes körű, az egyes feltételek a hitelbírálat eredményétől függően változhatnak. Kérjük, a részletekről tájékozódj az OTP Bank fiókjaiban vagy az OTP Bank honlapján közzétett vonatkozó Üzletszabályzatokból és Hirdetményekből.
Vedd fel a kapcsolatot a hirdetővel
+36 1 444 74
Vedd fel a kapcsolatot a hirdetővel
+36 1 444 74
UI_KIT.CHARACTER_COUNTER__COMPONENT.REMAINING_SPACE__SR_ONLYUI_KIT.CHARACTER_COUNTER__COMPONENT.MAXIMUM_CHARACTER__SR_ONLY
Hasonló eladó ingatlanok Vecsésen
Frissítve: 23 napja

20
149,9 M Ft 772 680 Ft/m²
Eladó családi ház, Vecsés
Frissítve: ma

8
139 M Ft 1 349 515 Ft/m²
Eladó ikerház, Vecsés
Frissítve: 9 napja

18
149,9 M Ft 599 600 Ft/m²
Eladó családi ház, Vecsés


Fedezd fel a
hasonló házakat!Még további házak Vecsésen 140 M Ft körüli értékben
Tovább a hirdetésekhez Frissítve: 28 napja

20
150 M Ft 1 250 000 Ft/m²
Eladó családi ház, Vecsés, Lőrinci utca

Frissítve: ma

20
150 M Ft 1 250 000 Ft/m²
Eladó családi ház, Vecsés

Frissítve: 9 napja

20
150 M Ft 1 250 000 Ft/m²
Eladó családi ház, Vecsés


Töltsd fel hirdetésed ingyenesen!
Egyszerű