+15 fotó
Hirdetéskód: 8828739
Referenciaszám: HZ065083-5108646
Frissítve: ma
Vecsés eladó ikerház 5 szobás: 140 millió Ft
140 millió Ft
875 000 Ft/m²
160 m²
460 m²
5 szoba
Eladó ház, Vecsés
Vecsés csendes családias részén
Vecsés Krakkón barátságos utcában eladó új építésű családi házak.
A kivitelező sok éves múlttal és rengeteg elégedett ügyféllel rendelkezik, referenciák Vecsési lakóparkokban és a 18.kerületben is megtekinthetőek.
Költözzön egy privát zárt lakóparkba melyet saját magánúton zárt kapuk mögött lehet megközelíteni. 4 ház épül a lakópark területén, a privát kerteken kívül közös kertrész is kialakításra kerül, melyre a kivitelező privát játszóteret és sütögetőt alakít ki.
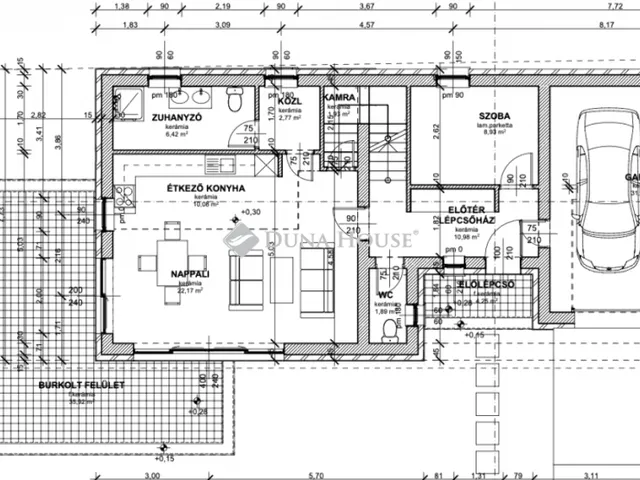
Az otthonok 160.88 négyzetméter hasznos lakótérrel rendelkeznek, mely két szinten fekszik és 460 négyzetméter kert tartozik hozzá. A földszinten egy kényelmes méretű 32 négyzetméteres amerikai konyhás nappalival rendelkezik melyre egy L alakú 35.92 négyzetméteres részben fedett teraszon keresztül jutunk a saját kertünkbe. 4 nagyobb méretű hálószobával, 2 gardróbbal és 2 fürdőszobával+1 illemhelyiséggel rendelkezik.
Műszaki adatok:
-30-as Prototherm tégla falazat
-15 cm-es homlokzati szigetelés
-25 cm-es szigetelés az aljzat felől
-25 cm-es szigetelés a födém felől
-3 rétegű műanyag nyílászárók kívülről antracit belülről fehér színűek
-elektromos garázskapu antracit színnel
-Hőszivattyús fűtés/hűtés
-2 fürdőszoba
-kamra
-riasztó
-elektromos redőny
-térkövezett autóbeálló
-kétállásos garázs
-napelem/kamera kiállás
Burkolatok/beltéri ajtók/szaniterek még választhatóak.
A HÁZAK CSAK A DUPLAGARÁZSNÁL ÉRINTKEZNEK, UTCAFRONTJA MINDEGYIK INGATLANNAK VAN!
A lakópark teljesen új modern környezet, játszótérrel, fákkal. Közlekedést tekintve autóval a Gyorsforgalmi út, Üllői út, Gyömrői út az M0-ás és a 4-es út 3 perc alatt megközelíthető.
Tömegközlekedés 3 perc sétára Volánbuszmegálló Kőbánya Kispest vasútállomásig közlekedik, 15 perc sétára Vecsési vonatállomás, melyről a Nyugati pályaudvarig közlekednek a vonatok.
Felkeltette érdeklődését keressen bizalommal a hét bármely napján!
Irányár: 140000000 Ft
Érd.: Szabó-Lévai Annamária, +36 70 307 7503
Referencia szám: HZ065083-ZE
Tulajdonságok
Ikerház
Új építésű
Hőszivattyú
2025
Nem adta meg a hirdető
Van
Vedd fel a kapcsolatot a hirdetővel
+36 1 690 17
Hitelkalkulátor
Második évtől
602 496 Ft A 13. hónaptól
7,99% 8,49%
Végig fix Futamidő: 20 év Banki visszahívás
Az OTP Bank munkatársai a neked megfelelő napszakban veszik fel veled a kapcsolatot. A becslés a hirdető által megadott adatokon alapul. A jelen tájékoztatás nem minősül ajánlattételnek és nem teljes körű, az egyes feltételek a hitelbírálat eredményétől függően változhatnak. Kérjük, a részletekről tájékozódj az OTP Bank fiókjaiban vagy az OTP Bank honlapján közzétett vonatkozó Üzletszabályzatokból és Hirdetményekből.
Vedd fel a kapcsolatot a hirdetővel
+36 1 690 17
Vedd fel a kapcsolatot a hirdetővel
+36 1 690 17
UI_KIT.CHARACTER_COUNTER__COMPONENT.REMAINING_SPACE__SR_ONLYUI_KIT.CHARACTER_COUNTER__COMPONENT.MAXIMUM_CHARACTER__SR_ONLY
Hasonló eladó ingatlanok Vecsésen
Frissítve: ma
20
140 M Ft 437 500 Ft/m²
Eladó családi ház, Vecsés

Feltöltve: 1 napja
20
150 M Ft 892 851 Ft/m²
Eladó családi ház, Vecsés

Frissítve: 2 napja
16
145 M Ft 863 095 Ft/m²
Eladó ikerház, Vecsés


Fedezd fel a
hasonló házakat!Még további házak Vecsésen 140 M Ft körüli értékben
Tovább a hirdetésekhez Frissítve: ma
16
145 M Ft 863 095 Ft/m²
Eladó ikerház, Vecsés

Frissítve: 3 napja
15
139,9 M Ft 1 371 569 Ft/m²
Eladó sorház, Vecsés

Feltöltve: ma
20
150 M Ft 892 851 Ft/m²
Eladó családi ház, Vecsés

