+6 fotó
Hirdetéskód: 8831799
Referenciaszám: M319289-5111625
Frissítve: ma
Velence eladó ikerház 4+1 fél szobás: 74,9 millió Ft
74,9 millió Ft
851 136 Ft/m²
88 m²
518 m²
4+1 fél szoba
Eladó Ház, Velence
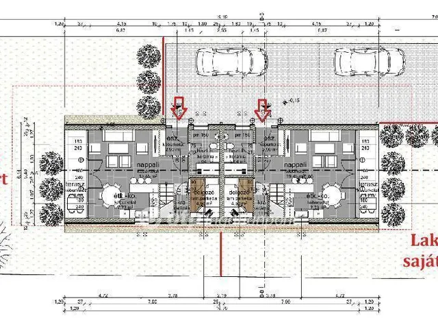
Velencén, Budapesttől mindössze 47 km-re modern ikerházi lakások eladók saját kerttel!
Fejér vármegyében, Velence csendes, zöldövezeti részén, a számozott utcákban kínálok megvételre 88 m? hasznos alapterületű, új építésű ikerházi lakásokat. A nappali+ 3,5 szobás ingatlanok kamrával, háztartási helyiséggel, saját kertrésszel, két terasszal és felszíni gépkocsibeállóval rendelkeznek, így magas komfortfokozatot biztosítanak leendő tulajdonosaik számára.
Lakás 1.: 74.900.000 Ft
Lakás 2.: 79.900.000 Ft
Műszaki tartalom és felszereltség:
Fűtés: levegő víz hőszivattyú, padlófűtés
Hűtés: 1 db klímaberendezés
Alapozás: beton sávalap
Vízszigetelés: 1 réteg BITUBIT GV 4,5 hegeszthető bitumenes lemez talajnedvesség ellen
Teherhordó falak: 25 cm YTONG
Födém: 20 cm monolit vasbeton lemez (statikai terv szerint)
Válaszfalak: 10 cm Porotherm válaszfallap
Homlokzati hőszigetelés: 12 cm grafitos EPS
Zárófödém szigetelés: 2×15 cm Rockwool Multirock
Földszinti födém szigetelés: 12 cm Austrotherm AT L2
Külső nyílászárók: 3 rétegű üvegezés, argongáz töltés, dupla gumitömítés, 5 légkamrás műanyag szerkezet
Tetőfedés: betoncserép
Burkolatok: ragasztott kerámia és laminált padló választható színben, a teraszokon kőlap
Falburkolatok:
Fürdőszobában mennyezetig csempe,
Konyhában a munkapult fölötti rész csempézve
Homlokzat: törtfehér vékonyvakolat szürke díszítő elemekkel
Csapadékvíz-elvezetés: tározóba vezetve
A lakások elrendezése praktikus, tágas és világos tereket biztosít, a korszerű építészeti megoldások pedig alacsony fenntartási költséget eredményeznek. A környék nyugodt, családbarát, a Velencei-tó közelsége pedig különleges életminőséget kínál.
Ingatlanjogász ügyvédi iroda vagyunk 25 éve.
CSOK-Hitel és jogi ügyintézés az irodában. Az OTP Csoport teljes körű ügyintézéssel áll az eladók és a vevők rendelkezésére! Cégünk digitális rendszerrel dolgozik már közel 6 éve, így akár online, személyes találkozó nélkül is zökkenőmentesen vásárolhatja meg a kiválasztott ingatlant! A kínálatunkból választott ingatlan finanszírozásához kedvezményes hitel- és lízing konstrukciót, állami támogatásokat, lakás-takarékpénztári megoldásokat kínálunk. Az adásvételi szerződés megkötéséhez igény szerint megbízható ügyvédi közreműködést biztosítunk, és segítséget nyújtunk az adásvételhez kapcsolódó ügyek intézésében is. Bővebb tájékoztatásért hívjon bizalommal akár hétvégén is!
FONTOS: Ha még nem volt ingatlan a nevén, vagy gyermekeinek szeretné megvásárolni ezt a kiváló adottságokkal rendelkező lakást, az új kedvezményes 3%! kamatozású hitelt az OTP Bank hátterével 22 napon belül tudjuk biztosítani!
Amennyiben modern, energiahatékony otthont keres természetközeli környezetben, ezek a velencei ikerházi lakások kiváló választást jelentenek.
Referencia szám: M319289-ZE
Tulajdonságok
Ikerház
Új építésű
Hőszivattyú
2026
Nem adta meg a hirdető
Vedd fel a kapcsolatot a hirdetővel
Hegedűs Tibor OTPip - Budapest I. kerület Fő utca 7 - OTP Ingatlanpont Iroda Az iroda összes hirdetése
+36 70 329 4
Hitelkalkulátor
Második évtől
322 335 Ft A 13. hónaptól
7,99% 8,49%
Végig fix Futamidő: 20 év Banki visszahívás
Az OTP Bank munkatársai a neked megfelelő napszakban veszik fel veled a kapcsolatot. A becslés a hirdető által megadott adatokon alapul. A jelen tájékoztatás nem minősül ajánlattételnek és nem teljes körű, az egyes feltételek a hitelbírálat eredményétől függően változhatnak. Kérjük, a részletekről tájékozódj az OTP Bank fiókjaiban vagy az OTP Bank honlapján közzétett vonatkozó Üzletszabályzatokból és Hirdetményekből.
Vedd fel a kapcsolatot a hirdetővel
Hegedűs Tibor OTPip - Budapest I. kerület Fő utca 7 - OTP Ingatlanpont Iroda Az iroda összes hirdetése
+36 70 329 4
Vedd fel a kapcsolatot a hirdetővel
Hegedűs Tibor OTPip - Budapest I. kerület Fő utca 7 - OTP Ingatlanpont Iroda Az iroda összes hirdetése
+36 70 329 4
UI_KIT.CHARACTER_COUNTER__COMPONENT.ACTUAL_CHARACTER__SR_ONLY UI_KIT.CHARACTER_COUNTER__COMPONENT.MAXIMUM_CHARACTER__SR_ONLY
Hasonló eladó ingatlanok Velencén
Frissítve: 1 hónapja
6
81,5 M Ft 679 167 Ft/m²
Eladó családi ház, Velence

Frissítve: 1 hónapja
10
80 M Ft 400 000 Ft/m²
Eladó családi ház, Velence
Frissítve: 1 hónapja
3
82 M Ft 911 111 Ft/m²
Eladó ikerház, Velence

Fedezd fel a
hasonló házakat!Még további házak Velencén 74,9 M Ft körüli értékben
Tovább a hirdetésekhez Frissítve: 1 hónapja
20
79 M Ft 395 000 Ft/m²
Eladó családi ház, Velence

Frissítve: 1 hónapja
20
79 M Ft 417 989 Ft/m²
Eladó családi ház, Velence

Frissítve: 25 napja
20
79 M Ft 417 989 Ft/m²
Eladó családi ház, Velence

