+6 fotó
Hirdetéskód: 8961705
Referenciaszám: M306827-5196037
Feltöltve: ma
Velence eladó ikerház 4 szobás: 114,9 millió Ft
114,9 millió Ft
1 007 895 Ft/m²
114 m²
1340 m²
4 szoba
Eladó Ház, Velence
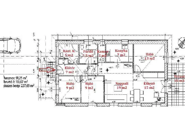
Foglalható Velence közkedvelt részén minőségi kivitelezésű, nappali+3 szobás nettó 91 m2-es, tégla építésű ikerház fél saját 650 m2-es telekrésszel, külön bejárattal, felszíni kocsibeállóval!
Az ingatlan családi házas környezeteben fog megépülni, 1,5 km-re a Velencei-tó partjától! Séta távolságra található bevásárlási lehetőség, néhány perc autóútra: iskola, gyógyszertár és orvosi rendelő érhető el!
KULCSRAKÉSZ állapot várható ideje: 2026. év vége.
A feltüntetett ár a kulcsrakész állapotra vonatkozik tereprendezéssel!
Az ingatlan CSAK 1 m-es falszakaszon érintkezik a másik ingatlan háztartási helyiségével!
Az összközműves, összesen 1300 nm-es telken 2 lakásos társasházként épül a projekt, külön helyrajziszámmal fognak rendelkezni az ingatlanok, 3 %-os Otthon Start hitel felvehető rá!
Műszaki leírás:
-30-as POROTHERM Téglafal
-10 cm-es tégla válaszfalak
-12 cm homlokzati szigetelés
-FÜTÉS: padlófűtés 10 KW-os Fischer Hőszivattyúval
- 200 l-es hmv tartály
- Fürdőszobában + törölköző szárítós radiátor
- 3 rétegű üvegezésű, fehér műanyag nyílászárók
- FÖDÉM: betongerendás
- TETŐ: fekete terrán cserép színezett bádogozással
- Belső BURKOLATOK: választható hideg- és meleg burkolat 5.000 Ft/m2-ig
- kis kapu és elektromos úszókapu
A Hirdetésben szereplő KÉPEK REFERENCIA MUNKÁK, az épülő projekt ugyanígy fog kinézni!
Az OTP Ingatlanpont teljeskörű ügyintézéssel áll az eladók és a vevők rendelkezésére! A választott ingatlan finanszírozásához kedvezményes hitel- és pénzügyi konstrukciókat kínálunk. Az adásvétel teljes folyamatát végigkísérjük és ügyvédi közreműködést biztosítunk!
Amennyiben felkeltett érdeklődését az ingatlan, várom megtisztelő hívását akár hétvégén is
Tulajdonságok
Ikerház
Újszerű
Hőszivattyú
2026
A+++
Vedd fel a kapcsolatot a hirdetővel
+36 70 433 3
Hitelkalkulátor
Második évtől
494 477 Ft A 13. hónaptól
7,99%
Végig fix Futamidő: 20 év Banki visszahívás
Az OTP Bank munkatársai a neked megfelelő napszakban veszik fel veled a kapcsolatot. A becslés a hirdető által megadott adatokon alapul. A jelen tájékoztatás nem minősül ajánlattételnek és nem teljes körű, az egyes feltételek a hitelbírálat eredményétől függően változhatnak. Kérjük, a részletekről tájékozódj az OTP Bank fiókjaiban vagy az OTP Bank honlapján közzétett vonatkozó Üzletszabályzatokból és Hirdetményekből.
Vedd fel a kapcsolatot a hirdetővel
+36 70 433 3
Vedd fel a kapcsolatot a hirdetővel
+36 70 433 3
UI_KIT.CHARACTER_COUNTER__COMPONENT.ACTUAL_CHARACTER__SR_ONLY UI_KIT.CHARACTER_COUNTER__COMPONENT.MAXIMUM_CHARACTER__SR_ONLY
Hasonló eladó ingatlanok Velencén
Frissítve: ma
12
114,9 M Ft 1 436 250 Ft/m²
Eladó ikerház, Velence

Frissítve: 2 napja
9
114,9 M Ft 1 007 895 Ft/m²
Eladó ikerház, Velence

Frissítve: 2 napja
12
114,9 M Ft 1 262 637 Ft/m²
Eladó ikerház, Velence


Fedezd fel a
hasonló házakat!Még további házak Velencén 114,9 M Ft körüli értékben
Tovább a hirdetésekhez Frissítve: 2 napja
20
119,5 M Ft 746 875 Ft/m²
Eladó ikerház, Velence

Frissítve: 2 napja
12
114,9 M Ft 1 436 250 Ft/m²
Eladó ikerház, Velence

Frissítve: 2 napja
12
114,9 M Ft 1 262 637 Ft/m²
Eladó ikerház, Velence

