

+11 fotó
Hirdetéskód: 8738929
Referenciaszám: 388196
Feltöltve: ma
Veresegyház eladó ikerház 5 szobás: 147,25 millió Ft
147,25 millió Ft
1 132 692 Ft/m²
130 m²
500 m²
5 szoba
Eladó ikerház Veresegyház, 130nm, 147.250.000Ft - Harmatok
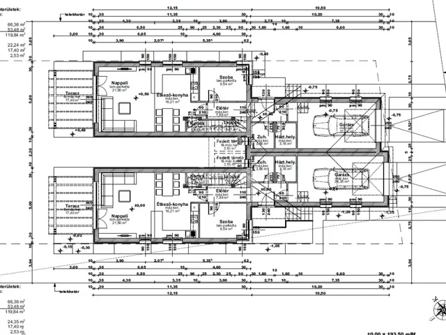
Eladásra kínáljuk egy új építésű projetben, 980 nm-es telken épülő ikerház mindkét felét Veresegyház kertvárosi részén, a Harmatok városrészben, gyönyörű természeti környezetban, aszfaltozott utcában.
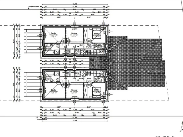
Mindkét ikerház fél nettó 120 nm hasznos alapterületű két szintes épület + mindegyikhez tartozik egy-egy garázs és tároló. A házrészek itt kapcsolódnak egymáshoz.
Az ingatlanok 5 szobával rendelkeznek, mindkettőhöz majd 500 nm-es telekrész tartozik.
HELYISÉGEK:
A lakótér nettó 120 m2 + 22 m2 garázs + 17,4 m2 terasz + 2,53 m2 fedett tároló.
Nappali+ 4 hálószoba, dupla komfort!
MŰSZAKI TARTALOM:
Az épület PTH 30-as falazóelemből, 12cm-es aljzatszigeteléssel, 10cm-es grafitos EPS homlokzati és 25cm-es födém hőszigeteléssel, beton födémmel, Bramac betoncserép fedéssel épül. Korszerű 5-légkamrás műanyag nyílászárók kerülnek beépítésre 3 rétegű üvegezéssel, elektromos redőny előkészítéssel.
A fűtést, hűtést és melegvíz ellátást a legkorszerűbb hőszivattyús rendszer működteti beépített puffertartállyal kiegészítve, padlófűtéses hőleadással, H-tarifás villanyórával. Napelem és riasztó rendszer előkészítést valamint minden szobában klíma kiállást tartalmazza az ár.
KÖRNYEZET:
Veresegyház egyik legszebb városrészében, kertvárosi környezetben épül az ingatlan.
Ajánlom mindenkinek, akik nyugodt, zöldövezeti környezetben szeretnének élni.
Veresegyház rendekezik minden olyan infrastruktúrával, amely a mindennapi élethez elengedhetetlen: iskolák, óvodák, bevásárlási lehetőségek széles választéka, sportcentrumok, színház, egészségügyi központ.
Helyi és kistérségi buszok könnyítik a közlekedést.
Budapest mind tömegközlekedéssel, mind autóval 20-45 perc alatt elérhető.
A beruházó több évtizedes tapasztalattal rendelkező, tőke erős cég, referenciáik a környéken igény esetén megtekinthetőek.
Az építkezés 2025. október végén indul, tervezett átadás. 2026.II. negyedévben.
Az ingatlanok 10% -al leköthetők!
TÁMOGATOTT ÉS PIACI HITELEKBEN KOLLÉGÁINK OTTHON VANNAK.
EBBEN IS ÁLLUNK VEVŐINK RENDELKEZÉSÉRE.
Várom megtisztelő hívását.
id:388196 ...TOVÁBBI, TÖBBEZRES INGATLAN KÍNÁLAT: www.gdn-ingatlan.hu - GDN azonosító: 388196
Tulajdonságok
Ikerház
2
Új építésű
Hőszivattyú
2026
18 m²
Nem adta meg a hirdető
Vedd fel a kapcsolatot a hirdetővel
+36 30 960 7
Hitelkalkulátor
Második évtől
633 697 Ft A 13. hónaptól
7,99% 8,49%
Végig fix Futamidő: 20 év Banki visszahívás
Az OTP Bank munkatársai a neked megfelelő napszakban veszik fel veled a kapcsolatot. A becslés a hirdető által megadott adatokon alapul. A jelen tájékoztatás nem minősül ajánlattételnek és nem teljes körű, az egyes feltételek a hitelbírálat eredményétől függően változhatnak. Kérjük, a részletekről tájékozódj az OTP Bank fiókjaiban vagy az OTP Bank honlapján közzétett vonatkozó Üzletszabályzatokból és Hirdetményekből.
Vedd fel a kapcsolatot a hirdetővel
+36 30 960 7
Vedd fel a kapcsolatot a hirdetővel
+36 30 960 7
UI_KIT.CHARACTER_COUNTER__COMPONENT.REMAINING_SPACE__SR_ONLYUI_KIT.CHARACTER_COUNTER__COMPONENT.MAXIMUM_CHARACTER__SR_ONLY
Hasonló eladó ingatlanok Harmatok városrészben
Frissítve: 1 napja

9
146,8 M Ft 1 174 400 Ft/m²
Eladó családi ház, Veresegyház, Harmatok
Frissítve: 1 napja

9
145,8 M Ft 952 941 Ft/m²
Eladó ikerház, Veresegyház, Harmatok
Frissítve: 1 napja

7
159,9 M Ft 1 134 043 Ft/m²
Eladó családi ház, Veresegyház, Harmatok

Fedezd fel a
hasonló házakat!Még további házak Veresegyházon 147,25 M Ft körüli értékben
Tovább a hirdetésekhez Frissítve: 1 napja

9
159,99 M Ft 1 391 217 Ft/m²
Eladó családi ház, Veresegyház, Harmatok
Frissítve: 7 napja

6
148,5 M Ft 1 237 500 Ft/m²
Eladó ikerház, Veresegyház, Harmatok

Frissítve: 7 napja

6
148,5 M Ft 1 237 500 Ft/m²
Eladó ikerház, Veresegyház, Harmatok


Töltsd fel hirdetésed ingyenesen!
Egyszerű