

+11 fotó
Hirdetéskód: 8745625
Referenciaszám: 691297
Feltöltve: 9 napja
Veresegyház eladó ikerház 5 szobás: 147 millió Ft
147 millió Ft
1 013 793 Ft/m²
145 m²
500 m²
5 szoba
Tágas, kétszintes otthon Veresegyház legszebb részén a Hegyekben – új építésű, garázzsal, saját kerttel
Tágas, kétszintes otthon Veresegyház legszebb részén a Hegyekben– új építésű, garázzsal, saját kerttel!
3% Otthon Start Hitel
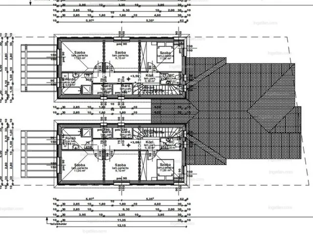
Eladó Veresegyház Hegyek részén egy 150 m²-es, nappali + 4 szobás új építésű ikerház, garázzsal és 500 m²-es saját telekkel.Csak a garázsoknál érintkezik!
A ház nappali + 4 szobás, saját 495 m²-es telekrésszel és garázzsal – ideális választás többgyermekes családnak vagy azoknak, akik értékelik a kényelmet és a jól átgondolt tereket.
Az alsó szinten minden a közös élményekről és kényelemről szól:
• amerikai konyhás, napfényes nappali 38 m²
• közvetlen kapcsolattal a 18 m²-es teraszra
• egy külön nyíló hálószoba (9,54 m²)
• zuhanyzós fürdőszoba (3,66 m²)
• háztartási helyiség
• előszoba (7,98 m²)
• kamra
• 23 m²-es GARÁZS – közvetlen házkapcsolattal
A felső szint a nyugalom szigete:
• 3 jól szeparált, világos hálószoba
• kádas fürdőszoba (5,98 m²)
• külön WC (2 m²)
• tágas gardrób, amely segít rendben tartani a mindennapokat
Az ikerház kulcsrakész állapotban, szaniterekkel és burkolatokkal együtt (konyhabútor nélkül) 2026 áprilisában kerül átadásra.
Miért érdemes Veresegyház legszebb részén élni?
Ez a barátságos, dinamikusan fejlődő város Budapesttől mindössze egy karnyújtásnyira található, mégis a természet közelségét és a kisvárosi nyugalmat kínálja. A rendezett, zöld környezet, a helyi szolgáltatások sokszínűsége (iskolák, óvodák, boltok, piac, orvosi rendelők), valamint a környék nevezetességei – tavak, parkok, a híres Medveotthon – mind hozzájárulnak ahhoz, hogy itt igazán otthon érezhesd magad.
Tulajdonságok
Ikerház
2025
Nem adta meg a hirdető
Vedd fel a kapcsolatot a hirdetővel
+36 30 316 5
Hitelkalkulátor
Második évtől
632 621 Ft A 13. hónaptól
7,99%
Végig fix Futamidő: 20 év Banki visszahívás
Az OTP Bank munkatársai a neked megfelelő napszakban veszik fel veled a kapcsolatot. A becslés a hirdető által megadott adatokon alapul. A jelen tájékoztatás nem minősül ajánlattételnek és nem teljes körű, az egyes feltételek a hitelbírálat eredményétől függően változhatnak. Kérjük, a részletekről tájékozódj az OTP Bank fiókjaiban vagy az OTP Bank honlapján közzétett vonatkozó Üzletszabályzatokból és Hirdetményekből.
Vedd fel a kapcsolatot a hirdetővel
+36 30 316 5
Vedd fel a kapcsolatot a hirdetővel
+36 30 316 5
UI_KIT.CHARACTER_COUNTER__COMPONENT.REMAINING_SPACE__SR_ONLYUI_KIT.CHARACTER_COUNTER__COMPONENT.MAXIMUM_CHARACTER__SR_ONLY
Hasonló eladó ingatlanok Veresegyházon
Frissítve: 27 napja

11
145,5 M Ft 1 299 107 Ft/m²
Eladó családi ház, Veresegyház

Frissítve: 24 napja

7
145 M Ft 1 208 333 Ft/m²
Eladó ikerház, Veresegyház
Frissítve: 28 napja

6
149,9 M Ft 1 338 393 Ft/m²
Eladó családi ház, Veresegyház

Fedezd fel a
hasonló házakat!Még további házak Veresegyházon 147 M Ft körüli értékben
Tovább a hirdetésekhez Frissítve: 29 napja

20
136,8 M Ft 755 801 Ft/m²
Eladó családi ház, Veresegyház
Frissítve: 28 napja

20
139,9 M Ft 874 375 Ft/m²
Eladó családi ház, Veresegyház
Frissítve: 29 napja

20
149 M Ft 993 333 Ft/m²
Eladó ikerház, Veresegyház


Töltsd fel hirdetésed ingyenesen!
Egyszerű