+14 fotó
Hirdetéskód: 8844935
Referenciaszám: M318687-5119900
Feltöltve: 1 napja
Veresegyház eladó ikerház 3 szobás: 119,9 millió Ft
119,9 millió Ft
1 175 490 Ft/m²
102 m²
350 m²
3 szoba
Eladó Ház, Veresegyház
Eladó Veresegyház egyik legszebb részén, a Hegyalja utcában egy 102 nm-es, 3 szobás, kiváló állapotú ikerház, amelyhez egy 350 nm-es, gondozott kert tartozik.
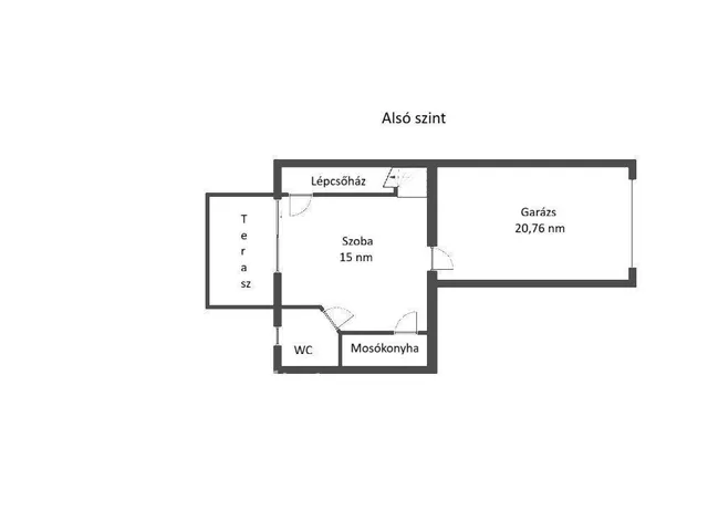
A házba lépve azonnal otthon érezzük magunkat: a felső szinten tágas, napfényben úszó amerikai konyhás nappali fogad, ahonnan a saját fürdővel és gardróbbal rendelkező privát háló külön kis lakrészként szolgál. A nappaliból nyíló terasz a délutáni pihenések tökéletes helyszíne, a mosdó pedig tovább növeli a kényelmet. Innen vezet a lépcső az alsó szintre, ahol egy tágas szoba, külön mosdó (igény esetén zuhanyzó is kialakítható), mosókonyha, valamint a 20 nm-es garázs is megtalálható.
A nyugati tájolású kert rendezett, automata locsolórendszerrel felszerelt. Külön értéket képvisel a 21 m-es, fedett, árammal ellátott nyári konyha, amely kiváló helyszín családi és baráti összejövetelekhez.
A ház műszakilag is megbízható: padlófűtés, cirkó gázkazán, 4,24 kWp napelemrendszer. További extrák: klíma, riasztórendszer, elektromos redőnyök, locsolórendszer.
Ez az ingatlan tökéletes választás mindazoknak, akik modern, energiatakarékos otthont keresnek zöld környezetben, Veresegyház egyik legjobb utcájában. Költözzön ide, ahol a hétköznap is élmény!
ingatlanséta:
Tulajdonságok
Ikerház
Jó állapotú
Gázkazán
2007
Nem adta meg a hirdető
Vedd fel a kapcsolatot a hirdetővel
Keszthelyi László OTPip - Szigetszentmiklós Tököli út 19.B - OTP Ingatlanpont Iroda Az iroda összes hirdetése
+36 30 989 1
Hitelkalkulátor
Második évtől
515 995 Ft A 13. hónaptól
7,99%
Végig fix Futamidő: 20 év Banki visszahívás
Az OTP Bank munkatársai a neked megfelelő napszakban veszik fel veled a kapcsolatot. A becslés a hirdető által megadott adatokon alapul. A jelen tájékoztatás nem minősül ajánlattételnek és nem teljes körű, az egyes feltételek a hitelbírálat eredményétől függően változhatnak. Kérjük, a részletekről tájékozódj az OTP Bank fiókjaiban vagy az OTP Bank honlapján közzétett vonatkozó Üzletszabályzatokból és Hirdetményekből.
Vedd fel a kapcsolatot a hirdetővel
Keszthelyi László OTPip - Szigetszentmiklós Tököli út 19.B - OTP Ingatlanpont Iroda Az iroda összes hirdetése
+36 30 989 1
Vedd fel a kapcsolatot a hirdetővel
Keszthelyi László OTPip - Szigetszentmiklós Tököli út 19.B - OTP Ingatlanpont Iroda Az iroda összes hirdetése
+36 30 989 1
UI_KIT.CHARACTER_COUNTER__COMPONENT.REMAINING_SPACE__SR_ONLYUI_KIT.CHARACTER_COUNTER__COMPONENT.MAXIMUM_CHARACTER__SR_ONLY
Hasonló eladó ingatlanok Veresegyházon
Frissítve: 15 napja
5
109,99 M Ft 1 182 688 Ft/m²
Eladó ikerház, Veresegyház
Frissítve: 19 napja
11
119,99 M Ft 470 549 Ft/m²
Eladó ikerház, Veresegyház
Frissítve: 16 napja
11
115 M Ft 1 197 917 Ft/m²
Eladó családi ház, Veresegyház


Fedezd fel a
hasonló házakat!Még további házak Veresegyházon 119,9 M Ft körüli értékben
Tovább a hirdetésekhez Frissítve: 20 napja
10
129,9 M Ft 877 703 Ft/m²
Eladó családi ház, Veresegyház

Frissítve: 6 napja
5
120 M Ft 1 100 917 Ft/m²
Eladó ikerház, Veresegyház
Frissítve: 14 napja
10
109,9 M Ft 1 156 842 Ft/m²
Eladó családi ház, Veresegyház

